Данная лекция представляет собой методическое пособие по дисциплине «Архитектурное проектирование» для студентов направления 07.03.01 «Архитектура». В материале подробно рассматриваются основные понятия градостроительства, иерархическая структура жилой застройки, нормативы плотности, система культурно-бытового обслуживания, требования к транспортным связям, озеленению и организации жилых групп. Лекция содержит актуальные ссылки на СНиП и СП, а также требования к курсовому проекту.
- Вводная лекция по дисциплине «Архитектурное проектирование»
- 1. Общие положения
- 1.1 Определение объекта проектирования. Основные понятия
- 1.2 Основные планировочные элементы жилой застройки города
- 1.3 Система ступенчатого культурно-бытового обслуживания в городе
- 1.4 Нормативные показатели плотности жилой застройки
- 1.5 Структура жилищного фонда и плотность населения
- 2. Основные структурные элементы микрорайона
- 2.1 Взаимодействие структурных элементов в составе микрорайона
- 2.2 Система транспортных и пешеходных связей. Планировочный каркас
- 2.3 Система культурно-бытового обслуживания микрорайона
- 2.4 Система озеленения и функциональные зоны
- 2.5 Жилые группы микрорайона
- 2.5.1 Нормативные требования к планировке территории жилой группы. Организация сети проездов и пожарные нормативы (СП 4.13130.2013)
- 2.5.2 Организация дворовой территории
- 2.5.3 Организация парковочных мест
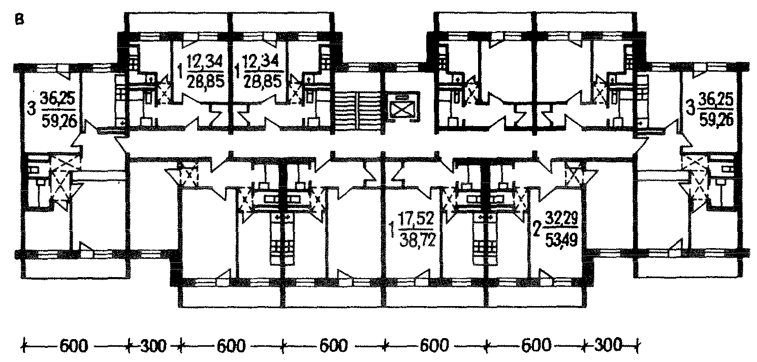
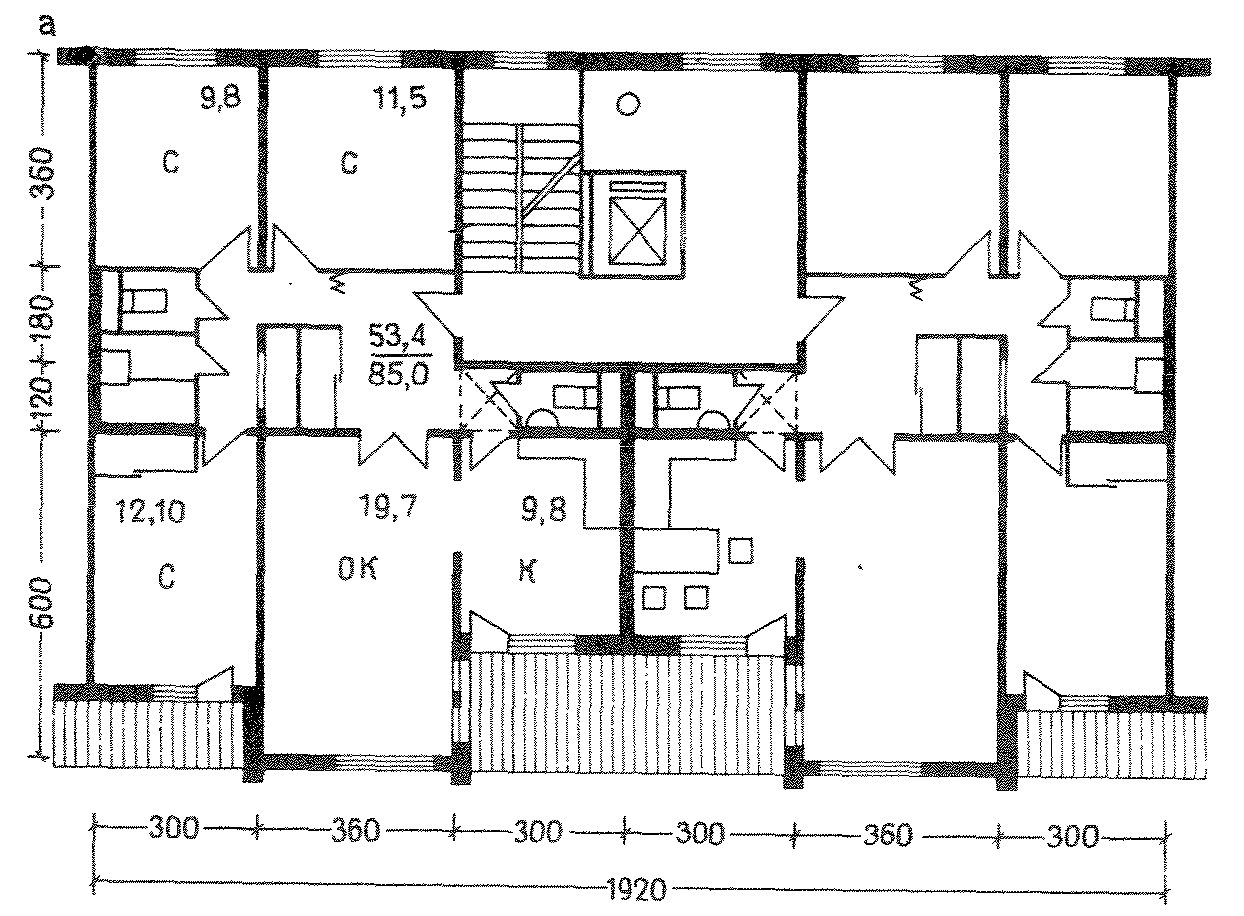
- 2.5.4 Блочно-секционный принцип формирования жилой группы
- 2.5.5 Природно-климатические факторы
- 2.5.6 Нормативные требования к размещению встроенных помещений
- 3. Основы формирования композиции микрорайона
- 3.1 Приемы формирования многоэтажной жилой застройки
- 4. Задание на разработку курсового проекта
- 4.4 Состав курсового проекта
- 5. Список литературы
Вводная лекция по дисциплине «Архитектурное проектирование»
Направление подготовки: 07.03.01 Архитектура
Автор: Мурунов А.Ю.
Год: 2020
Учреждение: Нижегородский государственный архитектурно-строительный университет (ННГАСУ)

1. Общие положения
1.1 Определение объекта проектирования. Основные понятия
Микрорайон:
- Структурный элемент жилой застройки площадью, как правило, 10-60 га, но не более 80 га, не расчлененный магистральными улицами и дорогами, в пределах которого размещаются учреждения и предприятия повседневного пользования с радиусом обслуживания не более 500 м; границами, как правило, являются магистральные или жилые улицы, проезды, пешеходные пути, естественные рубежи. (СНиП 2.07.01-89* Градостроительство. Планировка и застройка городских и сельских поселений)
- Планировочная единица застройки в границах красных линий, ограниченная магистральными или жилыми улицами. (СП 42.13330.2016 Свод правил. Градостроительство. Планировка и застройка городских и сельских поселений)
Жилой район:
- Структурный элемент селитебной территории площадью, как правило, от 80 до 250 га, в пределах которого размещаются учреждения и предприятия с радиусом обслуживания не более 1500 м, а также часть объектов городского значения; границами, как правило, являются труднопреодолимые естественные и искусственные рубежи, магистральные улицы и дороги общегородского значения. (СНиП 2.07.01-89*)
- Архитектурно-планировочный структурный элемент жилой застройки, состоящий из нескольких микрорайонов, объединенных общественным центром, ограниченный магистральными улицами общегородского и районного значения. (СП 42.13330.2016)

1.2 Основные планировочные элементы жилой застройки города
Селитебная территория города имеет иерархическую структуру организации, кроме жилых зон включающую в себя систему центров обслуживания и планировочный каркас улично-дорожной сети. Селитебная территория города, как правило, структурируется на планировочные жилые районы. Территория планировочных жилых районов делится на микрорайоны. Микрорайоны включают в себя жилые группы, состоящие из жилых домов.
Иерархия:
- ГОРОД
- ЖИЛОЙ РАЙОН
- МИКРОРАЙОН
- ЖИЛАЯ ГРУППА
- ЖИЛОЙ ДОМ
- КВАРТИРА
- ЖИЛАЯ КОМНАТА

1.3 Система ступенчатого культурно-бытового обслуживания в городе
- Центр микрорайона (повседневное обслуживание, 1-я ступень): радиус обслуживания — 500 м. Включает: детские сады, школы, магазины ежедневного обслуживания, аптеки, предприятия общепита, бытового обслуживания, отделения связи, филиалы банков, помещения культурно-досуговой деятельности.
- Центр жилого района (периодическое обслуживание, 2-я ступень): радиус обслуживания — 1 500 м. Включает: специализированные школы, организации доп. образования, поликлиники, больницы, ТРЦ, филиалы банков, ФОК, универсальные залы, кинотеатры.
- Центр города (эпизодическое обслуживание, 3-я ступень): в пределах транспортной доступности. Включает: театры, музеи, крупные ТРК, крупные спортивные сооружения, кино-концертные комплексы.

1.4 Нормативные показатели плотности жилой застройки
Основными показателями являются:
- Коэффициент застройки: отношение площади, занятой под зданиями и сооружениями, к площади участка (квартала).
- Коэффициент плотности застройки: отношение площади всех этажей зданий и сооружений к площади участка (квартала).
При подсчете коэффициентов плотности площадь этажей определяется по внешним размерам зданий. Учитываются только надземные этажи, включая мансардные. Подземные этажи не учитываются, если поверхность земли над ними используется под озеленение, площадки или автостоянки. Границами кварталов являются красные линии.

1.5 Структура жилищного фонда и плотность населения
Расчетная плотность населения микрорайона при многоэтажной комплексной застройке и средней жилищной обеспеченности 20 м² на 1 чел. не должна превышать 450 чел/га.

2. Основные структурные элементы микрорайона
2.1 Взаимодействие структурных элементов в составе микрорайона
Основные элементы:
- Жилые группы (здания различной структуры и этажности).
- Системы культурно-бытового обслуживания (общественные здания, встроенные блоки).
- Система озеленения и функциональные зоны благоустройства.
- Системы транспортных и пешеходных связей, планировочный каркас.

2.2 Система транспортных и пешеходных связей. Планировочный каркас
Въезды на территорию микрорайонов предусматриваются на расстоянии не более 300 м друг от друга и не менее 50 м от перекрестков магистральных улиц. Тупиковые проезды должны заканчиваться площадками для разворота пожарной техники (не менее 15×15 м). Максимальная длина тупикового проезда — 150 м.

2.3 Система культурно-бытового обслуживания микрорайона
Учреждения 1-й ступени (радиус 500 м, доступность 5-7 мин):
- Общеобразовательные школы (100 учеников на 1 тыс. жителей, 35-40 кв.м/уч).
- Детские дошкольные учреждения (70 детей на 1 тыс. жителей, 35 кв.м/место, радиус 300 м).
- Учреждения бытового обслуживания.
Размещение возможно в виде отдельных зданий, общественно-торговых центров или встроенных помещений в первых этажах жилых домов.

2.4 Система озеленения и функциональные зоны
Площадь озеленения микрорайона — не менее 6 кв.м на 1 человека (без учета школ и детских садов). Общая площадь озеленения — не менее 25% территории. Уровень озелененности участков детских садов — 55-60%, школ — 45-50%.

2.5 Жилые группы микрорайона
2.5.1 Нормативные требования к планировке территории жилой группы. Организация сети проездов и пожарные нормативы (СП 4.13130.2013)
Ширина проездов для пожарной техники:
- 3,5 м — при высоте зданий до 13 м.
- 4,2 м — при высоте от 13 до 46 м.
- 6,0 м — при высоте более 46 м.
Расстояние от края подъезда до стен зданий: 5-8 м (до 28 м высоты) и 8-10 м (выше 28 м). Местные нормативы Нижнего Новгорода требуют проезды шириной 7 м для обеспечения парковки.


2.5.2 Организация дворовой территории
На дворовой территории размещаются детские, спортивные, хозяйственные площадки и площадки отдыха. Нормативы (кв.м/чел):
- Детские площадки (ПД): 0,7
- Площадки отдыха (ПО): 0,3
- Спортивные площадки (ПФ): 2,0
- Хозяйственные площадки (ПХ): 0,1


2.5.3 Организация парковочных мест
Требуемое количество мест постоянного хранения:
- Бизнес-класс (от 40 кв.м/чел): не менее 1 места на квартиру.
- Социальное/стандартное жилье (менее 40 кв.м/чел): 70% от количества квартир.
- Гостевые парковки: 30% от расчетного количества мест постоянного хранения.
Габариты места: 5,3 х 2,5 м (для инвалидов — 6,0 х 3,6 м).


2.5.4 Блочно-секционный принцип формирования жилой группы
Метод позволяет формировать разнообразные по форме и пространственной организации жилые образования, используя рядовые, угловые, поворотные и торцевые секции.



2.5.5 Природно-климатические факторы
Важнейший фактор — инсоляция. Согласно СанПиН 2.2.1/2.1.1.1076-01, для центральной зоны (Нижний Новгород) норма — не менее 2 часов непрерывной инсоляции в день с 22 апреля по 22 августа в одной комнате (для 1-3 комнатных квартир) или двух комнатах (для 4+ комнатных).


2.5.6 Нормативные требования к размещению встроенных помещений
В цокольном, 1-м и 2-м этажах допускается размещение встроенных помещений общественного назначения (кроме вредных производств). Входы должны быть изолированы от жилой части. Загрузка осуществляется с торцов зданий, из подземных туннелей или со стороны магистралей.

3. Основы формирования композиции микрорайона
3.1 Приемы формирования многоэтажной жилой застройки
- Квартальная застройка: высокая плотность, четкое различие функций.
- Застройка из домов-пластин: большая длина и высота, отсутствие дифференциации пространств.
- Застройка точечными домами: свободное расположение, градостроительные доминанты.
- Строчная застройка: группировка одинаковых домов.
- Застройка домами сложной формы: формирование крупных пространств.

4. Задание на разработку курсового проекта



4.4 Состав курсового проекта
Материалы на планшете 1м х 1м:
- Ситуационный план М 1:10 000
- Схема функционального зонирования М 1:5000
- Схема организации движения М 1:5000
- Схема озеленения М 1:5000
- Генеральный план М 1:1000
- Архитектурные развертки М 1:1000
- Перспективы
- Технико-экономические показатели
- Пояснительная записка

5. Список литературы
- Мурунов А.Ю. Жилой комплекс: учеб.-метод. пос. — Н. Новгород: ННГАСУ, 2016.
- Гельфонд А.Л. Архитектурное проектирование общественных зданий и сооружений. — М.: Архитектура-С, 2006.
- Змеул С.Г., Маханько Б.А. Архитектурная типология зданий и сооружений. — М.: Стройиздат, 2001.
- Лисициан М.В. и др. Архитектурное проектирование жилых зданий. — М.: Стройиздат, 1990.
- СП 42.13330.2016 Градостроительство.
- СП 4.13130.2013 Системы противопожарной защиты.
- СанПиН 2.2.1/2.1.1.1076-01 Гигиенические требования к инсоляции.
- Градостроительные нормативы Н. Новгорода (Решение Городской Думы №188, 2018).
- Правила землепользования и застройки города Нижнего Новгорода.


