Данная методическая разработка содержит пошаговое руководство по выполнению лабораторной работы «Виды». В документе описана методика построения трех видов детали по наглядному изображению с использованием слоев в среде AutoCAD. Рассматриваются вопросы настройки единиц и лимитов чертежа, создания слоев с заданными параметрами линий, а также алгоритм проецирования детали на плоскости в соответствии с требованиями ГОСТ 2.305-68.
Лабораторная работа «Виды»
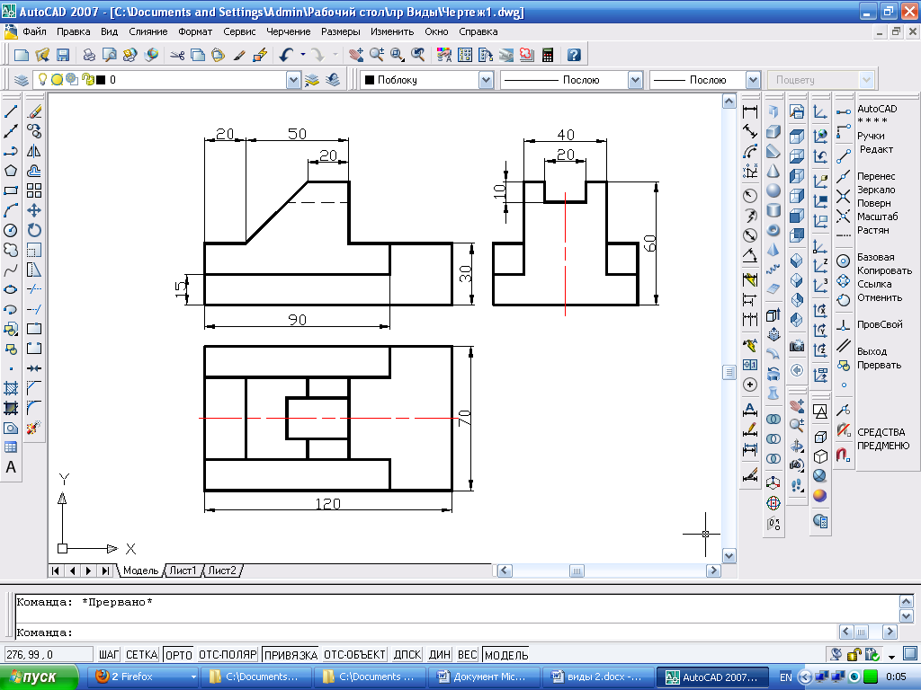
Задание: Выполнить 3 вида детали по наглядному изображению предмета, с использованием слоев.
Цель: Изучение правил изображения предметов на чертежах (ГОСТ 2.305 – 68).

Последовательность выполнения работы:
1. Выполнить необходимые установки:
- единицы;
- лимиты;
- создать 4 слоя:
- осевой – красного цвета – с типом линий ACADISO10W100;
- вспомогательный – зеленого цвета – с типом линий Continius;
- основной – черный/белый цвет – тип линий Continius.
- установить режимы объектной привязки:
- конточка, пересечение, нормаль, середина.

2. Вычертить главный вид:
Учитывая, что он должен давать максимальную информацию о детали. Проецируем на плоскость деталь, согласно выбранному направлению взгляда.
- на вспомогательном слое построить необходимые построения, используя команду бесконечная прямая.
- команда: прямая – опция смещение(отступ) – задать величину смещения – указать от какой линии смещать – указать в какую сторону смещать.
- построить все необходимые вспомогательные линии.
- контуры изображения обвести сплошной линией на основном слое, используя команду полилиния. Линии невидимого контура обвести невидимой линией используя команду отрезок.
3. Аналогично вычертить вид сверху и вид слева
Спроецировав деталь на горизонтальную и профильную плоскость проекций в проекционной связи.

4. Провести линии симметрии
На осевом слое, где есть симметрия.
5. Выключить вспомогательный слой.
6. Проставить размеры
Распределив их равномерно на все три вида.
