Учебное пособие содержит теоретические основы технического черчения и компьютерной графики, а также условия и этапы решения задач для студентов заочной формы обучения по направлению «Электроэнергетика и электротехника». В пособии подробно изложены стандарты ЕСКД, правила оформления чертежей, методы проецирования точек, прямых и плоскостей, а также практические задания по выполнению контрольных работ в системе AutoCAD и на бумажных носителях.
- Министерство образования и науки России
- Учебное пособие для студентов заочной формы обучения по направлению «Электроэнергетика и электротехника»
- Выходные данные
- ВВЕДЕНИЕ
- ГЛАВА 1. ОБЩИЕ ПОЛОЖЕНИЯ
- 1.1. ФОРМАТЫ
- 1.2. ОСНОВНАЯ НАДПИСЬ
- 1.3. МАСШТАБЫ
- 1.4. ТИПЫ ЛИНИИ
- 1.5. ШРИФТЫ ЧЕРТЕЖНЫЕ
- ГЛАВА 2. КОНТРОЛЬНАЯ РАБОТА №1
- 2.1. ОФОРМЛЕНИЕ И СОДЕРЖАНИЕ РАБОТЫ
- 2.2. ТЕОРИЯ
- 2.2.1. ПРОЕЦИРОВАНИЕ ТОЧКИ
- 2.2.2. ПРОЕЦИРОВАНИЕ ПРЯМОЙ
Министерство образования и науки России
Федеральное государственное бюджетное образовательное учреждение высшего образования «Ивановский государственный энергетический университет имени В.И. Ленина»
Е.В. Егорычева
Учебное пособие для студентов заочной формы обучения по направлению «Электроэнергетика и электротехника»
Иваново 2020
Выходные данные
УДК 744.3 Е 30
Егорычева Е.В. Инженерная и компьютерная графика: контрольные работы: Учеб. пособие для студентов заочной формы обучения по направлению «Электроэнергетика и электротехника» / ФГБОУВО «Ивановский государственный энергетический университет имени В. И. Ленина». – Иваново, 2020. – 140 с.
Учебное пособие содержит теоретические основы технического черчения и компьютерной графики, условия и этапы решения задач. Предназначено для студентов заочной формы обучения по направлениям «Электроэнергетика и электротехника» первого курса при изучении дисциплины «Инженерная и компьютерная графика».
Табл. 27. Ил. 95. Библиогр.: 6 назв.
Печатается по решению редакционно-издательского совета ФГБОУВО «Ивановский государственный энергетический университет имени В.И. Ленина».
НАУЧНЫЙ РЕДАКТОР канд. техн. наук, доцент Е.П. Милосердов
РЕЦЕНЗЕНТ канд. техн. наук, зав. кафедрой ЭС А.Е. Аржанникова (ФГБОУВО «Ивановский государственный энергетический университет имени В.И. Ленина»)
© Е.В. Егорычева, 2020
ВВЕДЕНИЕ
«Инженерная и компьютерная графика» представляет собой учебную дисциплину, включающую в себя элементы начертательной геометрии, инженерной графики и технического черчения в системах автоматизированного построения.
В результате изучения дисциплины «Инженерная и компьютерная графика» студент должен овладеть следующими навыками:
- строить изображения пространственных форм на плоскости;
- решать графическим способом пространственные задачи;
- определять форму и размеры детали по аксонометрической проекции и выполнять чертеж этой детали в трех видах с необходимыми разрезами;
- выполнять третий вид с необходимыми разрезами по двум видам;
- выполнять чертежи деталей, входящих в состав разъемных соединений;
- выполнять чертежи деталей в системах автоматизированного проектирования.
ГЛАВА 1. ОБЩИЕ ПОЛОЖЕНИЯ
Прежде чем приступить к выполнению чертежей, необходимо изучить основные стандарты Единой Системы Конструкторской Документации. ЕСКД включает в себя более ста тридцати стандартов, вводящих единые правила оформления конструкторской документации (чертежей, спецификаций и др.), устанавливает единую терминологию, используемую при проектировании. Стандарты ЕСКД обязательны для всех проектных организаций и учебных заведений.
Начинать надо со стандартов на графическое оформление чертежей: ГОСТ 2.301–68 «Форматы»; ГОСТ 2.302–68 «Масштабы»; ГОСТ 2.303–68 «Линии»; ГОСТ 2.304–81 «Шрифты чертежные»; ГОСТ 2.305–2008 «Изображения – виды, разрезы, сечения»; ГОСТ 2.306–68 «Обозначения графических материалов и правила их нанесения на чертежах»; ГОСТ 2.307–2011 «Нанесение размеров и предельных отклонений»; ГОСТ 2.311–68 «Изображение резьбы»; ГОСТ 2.316–2008 «Правила нанесения на чертежах надписей, технических требований и таблиц»; ГОСТ 2.317–2011 «Аксонометрические проекции».
1.1. ФОРМАТЫ
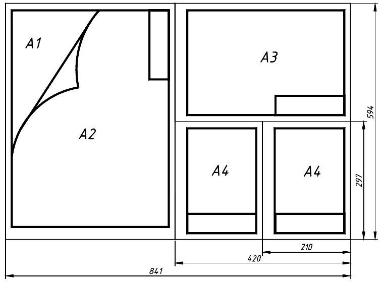
Стандарт 2.301–68 устанавливает форматы листов при выполнении чертежей (эскизов) и других документов конструкторской документации всех отраслей промышленности и строительства. Форматы листов определяются размерами внешней рамки.
Стандартом предусмотрено выполнение чертежей на отдельных листах или на общем листе с выделением в нем форматов для каждого чертежа. Обозначения и размеры основных пяти форматов приведены в табл. 1.1 и на рис. 1.1. Как видно из таблицы, все они кратны формату А4.

| Обозначение | Размеры, мм |
|---|---|
| А0 | 841× 1189 |
| А1 | 594 × 841 |
| А2 | 420 × 594 |
| А3 | 297 × 420 |
| А4 | 210× 297 |
На каждом листе выполняется рамка, ограничивающая рабочее поле чертежа. Рамка выполняется сплошной толстой основной линией. Расстояние от верхней, правой и нижней сторон внешней рамки – 5 мм. Расстояние от левой стороны – 20 мм (для подшивки листа).
В правом нижнем углу чертежа должна находиться основная надпись, которая на формате А4 располагается только вдоль короткой стороны, а для всех остальных форматов как вдоль короткой стороны, так и вдоль длинной.
1.2. ОСНОВНАЯ НАДПИСЬ
В соответствии с ГОСТ 2.104–2006 на всех конструкторских документах (как чертежах, так и текстовых документах, пояснительных записках и т.п.) применяется одна из трех форм основных надписей. Основные надписи выполняются линиями по ГОСТ 2.303–68.
На рис. 1.2 приведены форма и размеры основной надписи, применяемой для чертежей и схем (форма 1). В графах основной надписи (номера граф на формах показаны в скобках) указывают:
- в графе 1 – наименование изделия в именительном падеже в единственном числе (например, «деталь»);
- в графе 2 – обозначение документа по ГОСТ 2.201–80. Для учебных чертежей рекомендуется следующая структура обозначений: В128. 02 01 08. 001, где В128 – вариант (три последние цифры студенческого билета), 02 – номер семестра, 01 – номер контрольной работы в семестре, 08 – номер варианта, 001 – номер позиции детали в сборочном чертеже (номер задания в контрольной работе);
- в графе 3 – обозначение материала детали (заполняют только на чертежах деталей);
- в графе 4 – наименование предприятия (учебного заведения, кафедры и номер группы студента);
- в графе «Лист» – порядковый номер листа; если лист один, то графу не заполняют;
- в графе «Листов» – общее количество листов документа. Графа заполняется только на первом листе;
- в графе «Масштаб» – масштаб изображения (например, 1:1);
- в графе «Разработал» – фамилия студента;
- в графе «Проверил» – фамилия преподавателя, принявшего чертеж.

1.3. МАСШТАБЫ
Масштаб – отношение размеров изображения предмета к его действительным размерам. Масштабы установлены ГОСТ 2.302–68:
- масштабы уменьшения 1:2; 1:2,5; 1:4; 1:5; 1:10; 1:15; 1:20; 1:25; 1:40; 1:50; 1:100; 1:200; 1:400; 1:500; 1:800; 1:1000;
- масштабы увеличения 2:1; 2,5:1; 4:1; 5:1; 10:1; 20:1; 40:1; 50:1; 100:1.
На чертеже предмета проставляют действительные размеры независимо от масштаба изображения.
1.4. ТИПЫ ЛИНИИ
При выполнении чертежей применяются различные типы линий (табл.1.2). Их начертание и назначение определяются ГОСТ 2.303-68.
| № | Тип линии | Название линии, толщина |
|---|---|---|
| 1 |
![]() |
Сплошная толстая основная, s= 0,5… 1,4 мм |
| 2 |
![]() |
Сплошная тонкая, (1/2… 1/3) s |
| 3 |
![]() |
Сплошная волнистая, (1/2… 1/3) s |
| 4 |
![]() |
Штриховая, (1/2… 1/3) s |
| 5 |
![]() |
Штрихпунктирная тонкая, (1/2… 1/3) s |
| 6 |
![]() |
Штрихпунктирная с двумя точками тонкая, (1/2… 1/3) s |
Рекомендуемая толщина основной толстой линии 0,8 – 1,0 мм.

1.5. ШРИФТЫ ЧЕРТЕЖНЫЕ
Надписи на чертежах и других конструкторских документах, выполненных от руки, должны соответствовать ГОСТ 2.304–81. Размер шрифта h – величина, определенная высотой прописных букв в миллиметрах. Устанавливаются следующие размеры шрифта: 1,8; 2,5; 3,5; 5; 7; 10; 14; 20; 28; 40.
Этим стандартом установлены два типа шрифтов: тип А и тип Б, каждый из которых можно выполнять с наклоном или без наклона.
!!! При выполнении контрольных работ рекомендовано использовать шрифт Б с наклоном 75° к основанию строки (рис. 1.4).

ГЛАВА 2. КОНТРОЛЬНАЯ РАБОТА №1
2.1. ОФОРМЛЕНИЕ И СОДЕРЖАНИЕ РАБОТЫ
Контрольная работа состоит из 3 заданий, которые включают 6 задач и чертеж в системе AutoCAD.
Задание № 1 «Метрические задачи» состоит из 4 задач и выполняется на листе ватмана формата А3 (297×420).
Задание № 2 «Комплексные задачи» состоит из 2 задач и выполняется на листе ватмана формата А3 (297×420).
Задание № 3 «Чертеж детали в системе AutoCAD» выполняется в системе AutoCAD и распечатывается на формате А4 (297×210).
Оформление чертежей (задания №1 и №2):
- Все задания выполняются карандашом по размерам, указанным в варианте задания в масштабе 1:1. Размеры, указанные в задании, на чертеже не проставляются.
- Начальные условия для задач 1, 2, 3, 4, 5 и 6 задаются синим карандашом, промежуточные построения выполняются простым карандашом, окончательный результат – красным.
- В правом нижнем углу рамки чертежа выполняется основная надпись «Форма №1».
- При выполнении чертежей применяются различные типы линий.
- Толщина линий одного и того же типа должна быть одинаковой для всех изображений на данном чертеже.
- Размерные и выносные линии выполняются согласно ГОСТ 2.307 – 68. Рекомендуемое расстояние между параллельными размерными линиями – 7 мм и между размерной линией и параллельной ей линией контура – 10 мм. Стрелки размерных линий должны быть длиной min 2,5 мм (рис.2.1).
- На всех чертежах все надписи выполняют стандартным чертежным шрифтом типа Б с наклоном 75° по ГОСТ 2.304-81.
- Проекции точек рекомендуется изображать окружностями диаметром около 2 мм (● невидимые, ○ – видимые).

2.2. ТЕОРИЯ
Любое изображение предмета является проекцией. Аппарат проецирования – плоскость отображения и центр, через который проходят проецирующие лучи. Плоскость отображения принято называть плоскостью проекций, центр – центром проецирования.
2.2.1. ПРОЕЦИРОВАНИЕ ТОЧКИ
Рассмотрим проецирование точки на три взаимно-перпендикулярные плоскости проекций: П1 (горизонтальная), П2 (фронтальная), П3 (профильная). Для преобразования модели в комплексный чертеж необходимо оставить фронтальную плоскость П2 неподвижной, горизонтальную плоскость П1 вращать вокруг оси Х, а профильную плоскость П3 – вокруг оси Z до совмещения с плоскостью П2 (рис. 2.2).



2.2.2. ПРОЕЦИРОВАНИЕ ПРЯМОЙ
Прямая в пространстве может быть задана двумя точками или одной точкой и направлением. Точка принадлежит прямой, если ее проекции принадлежат одноименным проекциям прямой (рис. 2.4).



2.2.2.1. КЛАССИФИКАЦИЯ ПРЯМЫХ
Прямая общего положения – прямая, не параллельная ни одной из плоскостей проекций П1, П2, П3. Прямые частного положения – это прямые, которые либо параллельны, либо перпендикулярны к одной из плоскостей проекций.

| Тип линии | Определение |
|---|---|
| Прямые уровня | Прямые, параллельные какой-либо плоскости проекций (горизонталь, фронталь, профильная прямая). |
| Проецирующие прямые | Прямые, расположенные перпендикулярно к какой-либо плоскости проекций. |






