Данное методическое пособие содержит программу графических работ по дисциплине «Инженерная графика» для студентов направлений «Природообустройство и водопользование» и «Стандартизация и метрология». В документе подробно описаны требования к выполнению четырех ключевых работ: оформление чертежей по ГОСТ, создание эскизов деталей, проекционное черчение и деталирование сборочных единиц. Приведены примеры оформления основной надписи и варианты заданий для самостоятельной работы.
- Кафедра технического сервиса, механики и электротехники
- Раздел «ИНЖЕНЕРНАЯ ГРАФИКА»
- Графическая работа ИГ 01 «Стандарты оформления чертежей»
- Графическая работа ИГ 02 «Эскиз простой детали»
- Требования к выполнению ИГ 02
- Графическая работа ИГ 03 «Проекционное черчение»
- Графическая работа ИГ 04 «Деталирование чертежа сборочной единицы»
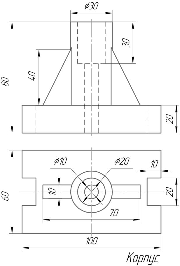
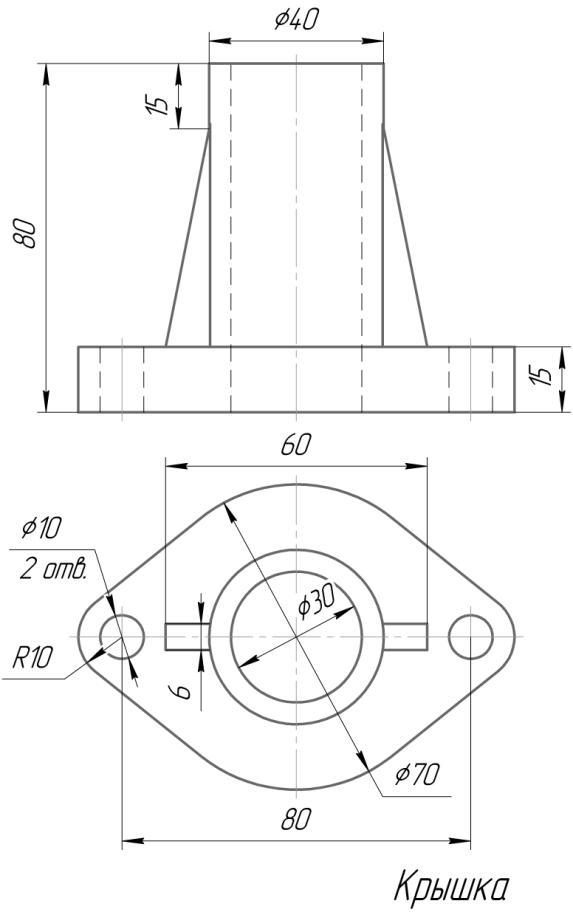
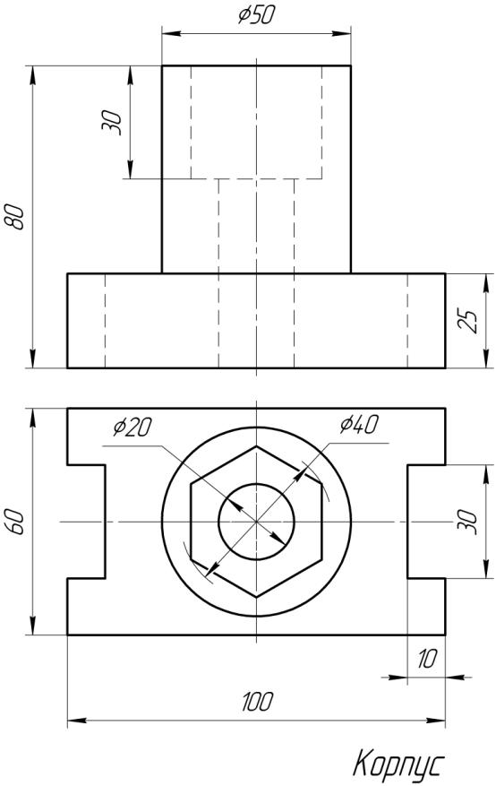
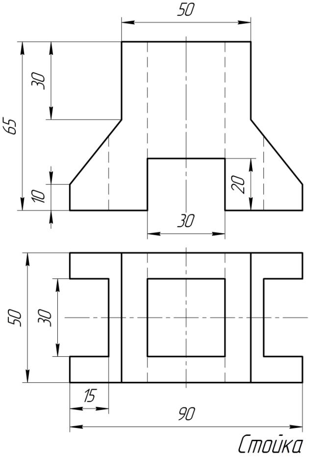
- Приложение 1. Варианты заданий для графической работы ИГ 02
- Приложение 2. Варианты заданий для графической работы ИГ 02
- Приложение 3. Варианты заданий для графической работы ИГ 02
- Приложение 4. Варианты заданий для графической работы ИГ 02
- Приложение 5. Варианты заданий для графической работы ИГ 02
- Таблица 3. Варианты заданий для графической работы ИГ 03
- Продолжение таблицы 3
- Продолжение таблицы 3
Кафедра технического сервиса, механики и электротехники
ИНЖЕНЕРНАЯ ГРАФИКА
ИНЖЕНЕРНАЯ И КОМПЬЮТЕРНАЯ ГРАФИКА
Раздел «Инженерная графика»
Объем и содержание графических работ для студентов очной и заочной формы обучения по направлениям подготовки:
20.03.02 Природообустройство и водопользование,
27.03.01 – Стандартизация и метрология
Омск 2020
Раздел «ИНЖЕНЕРНАЯ ГРАФИКА»
Объем и содержание графических работ по инженерной графике:
- ИГ 01 «Стандарты оформления чертежей» – формат А4.
- ИГ 02 «Эскиз простой детали» – на миллиметровой бумаге формата А3.
- ИГ 03 «Проекционное черчение» – формат А3.
- ИГ 04 «Деталирование чертежа сборочной единицы» – на миллиметровой бумаге два формата: А3 и А4.
Графическая работа ИГ 01 «Стандарты оформления чертежей»
Цель: изучение ГОСТов: форматы – ГОСТ 2.301-68, масштабы — ГОСТ 2.302-68, линии — ГОСТ 2.303-68, шрифты чертежные — ГОСТ 2.304-80, обозначения графические материалов — ГОСТ 2.306-68, нанесение размеров — ГОСТ 2.307-68.
Содержание: На листе формата А4 вычертить типы линий, примеры графических обозначений материала и нанесения размеров

. В основной надписи написать свою фамилию, фамилию преподавателя, заведующего кафедрой, номер группы и номер работы: ИГ 01. ХХ. 01, где ХХ – ваш номер по списку группы.
Рис.1 – Пример работы ИГ 01
Пример заполнения основной надписи представлен на рисунке 2

.
Рис.2 – Пример заполнения основной надписи
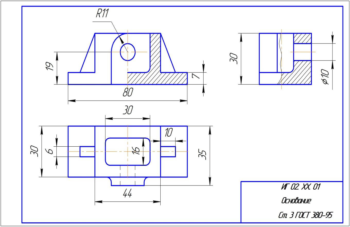
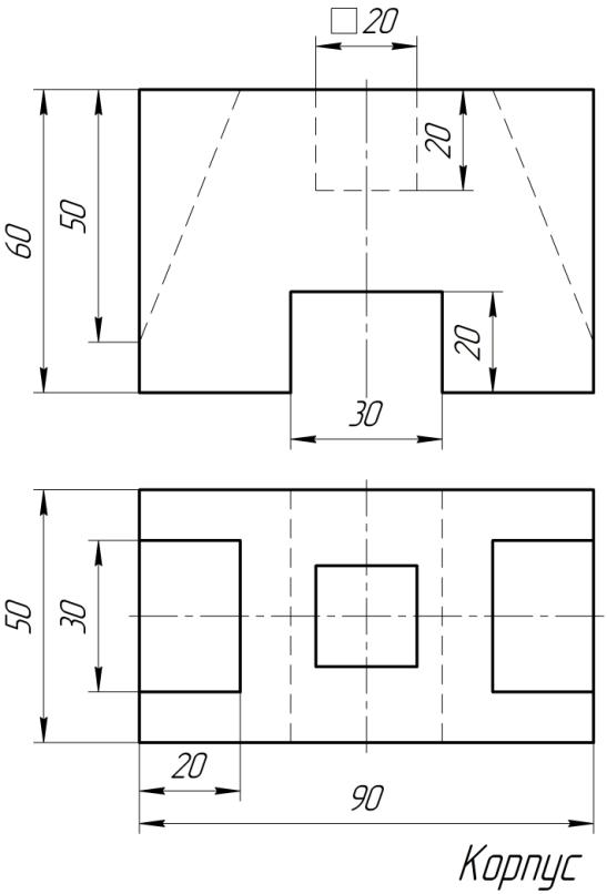
Графическая работа ИГ 02 «Эскиз простой детали»
Цель: Научиться строить виды и разрезы простой детали по ее наглядному изображению.
Содержание: Выполнить эскиз детали на миллиметровой бумаге формата А3. Эскиз выполняется обязательно в трех видах (главный, сверху и слева) с применением полезных разрезов и сечений. Для симметричных деталей выполнить половинчатые разрезы. Пример графической работы ИГ 02 представлен на рис. 3

.
Рис.3 – Пример работы ИГ 02
Требования к выполнению ИГ 02
Эскиз вычерчивается от руки, построения выполняются на глаз, но при этом соблюдаются пропорции частей детали. Изображения вместе с размерными линиями и надписями должны занимать ~ 80% поля чертежа. Эскиз должен быть выполнен аккуратно с соблюдением начертания и соотношения толщины линий. Надписи выполняются стандартным чертежным шрифтом. Все изображения располагаются в проекционной связи в соответствии с требованиями ГОСТ. На эскизе должны быть указаны все необходимые размеры. Вариант задания берется по последней цифре в зачетке из приложений 1-4.
Номер работы: ИГ 02. ХХ. 01. В основной надписи кроме фамилий написать наименование детали, марку стали, например – Ст 3 ГОСТ 380-94.
Графическая работа ИГ 03 «Проекционное черчение»
Цель: изучить основные положения ГОСТ 2.305-68 – «Изображения – виды, разрезы сечения». Научиться построению третьей проекции по двум данным изображениям.
Содержание: на формате А3 вычертить два данных вида детали и построить вид слева. Выполнить половинчатые разрезы на главном виде и слева. Начертить изометрию с вырезом ¼ части. Нанести размеры. Заполнить основную надпись. Номер работы: ИГ 03. ХХ. 01. Вариант задания берется по последней цифре в зачетке из таблицы 3.
Пример графической работы ИГ 03 представлен на рис. 4

.
Рис.4 – Пример работы ИГ 03
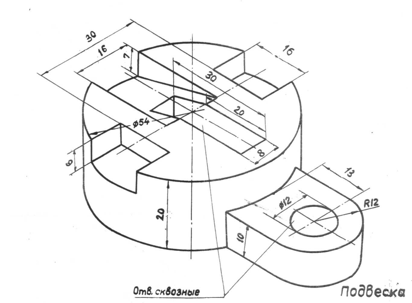
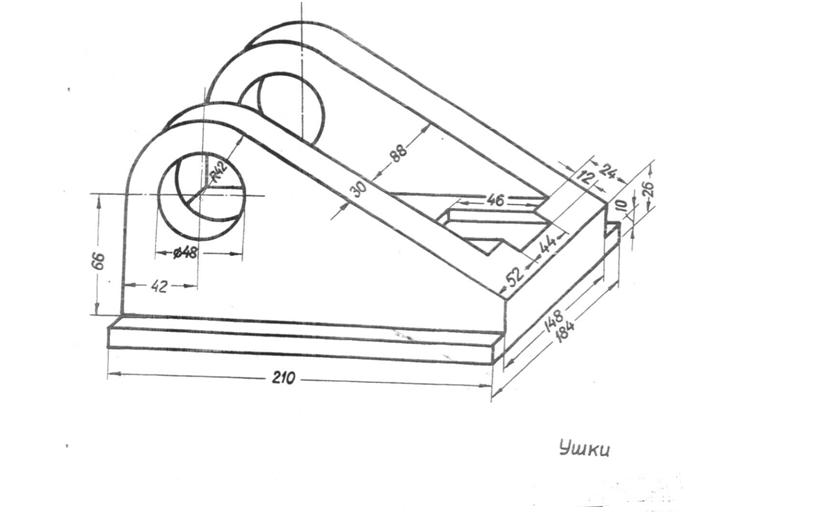
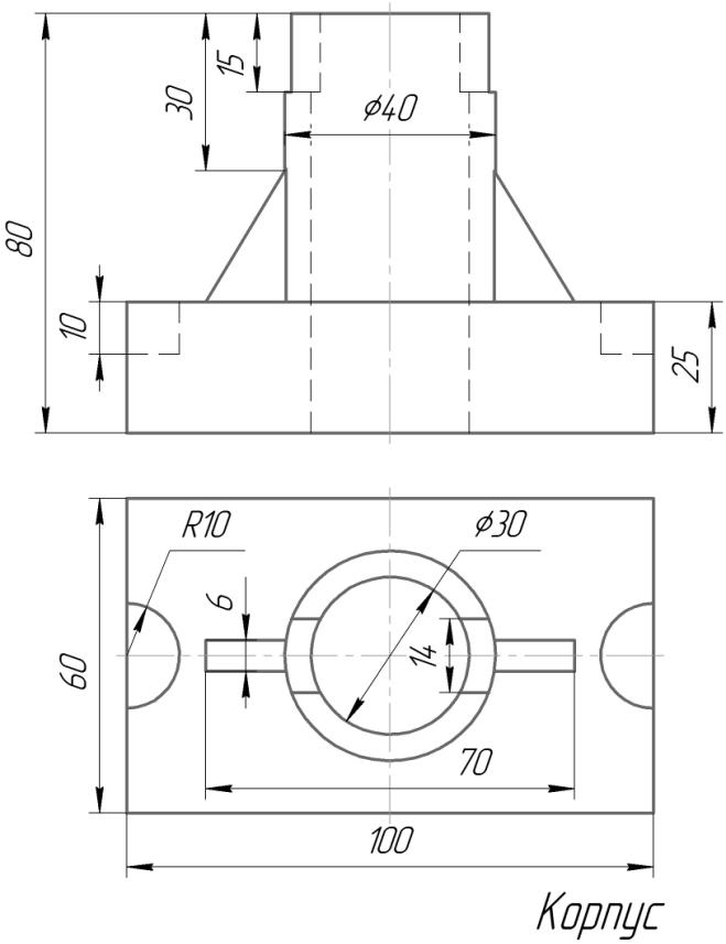
Графическая работа ИГ 04 «Деталирование чертежа сборочной единицы»
Цель: научиться читать сборочные чертежи и закрепить навыки выполнения чертежей деталей.
Содержание: по чертежу сборочной единицы выполнить эскиз двух деталей, указанных преподавателем.
Эскиз первой детали выполняется на миллиметровой бумаге формата А3, второй – на формате А4 или А3 в зависимости от сложности детали (рис. 5

). Эскиз выполняется от руки, качественно, с соблюдением глазомерного масштаба.
Количество изображений детали (видов, разрезов, сечений) студент определяет самостоятельно так, чтобы форма детали была полностью раскрыта. Вместе с тем недопустимы «лишние» изображения. На эскизе нанести размеры детали, проведя измерения по линейке со сборочного чертежа с учетом его масштаба. В основной надписи написать наименование и материал детали. Номер работы: ИГ 04. ХХ. 01 (02).
Приложение 1. Варианты заданий для графической работы ИГ 02

1

2
Приложение 2. Варианты заданий для графической работы ИГ 02

3

4
Приложение 3. Варианты заданий для графической работы ИГ 02

5

6
Приложение 4. Варианты заданий для графической работы ИГ 02

7

8
Приложение 5. Варианты заданий для графической работы ИГ 02

9

0
Таблица 3. Варианты заданий для графической работы ИГ 03

1

2

3

4
Продолжение таблицы 3

5

6

7

8
Продолжение таблицы 3

9

0
