Данное методическое пособие содержит требования к выполнению графических работ по дисциплине «Инженерная графика» для студентов очной и заочной форм обучения. В документе подробно описаны четыре ключевых задания: стандарты оформления чертежей, эскизирование простых деталей, проекционное черчение и деталирование сборочных единиц. Приведены цели работ, требования к оформлению основной надписи, примеры графических материалов и варианты заданий для самостоятельной работы.
- Кафедра технического сервиса, механики и электротехники
- Раздел «ИНЖЕНЕРНАЯ ГРАФИКА»
- Графическая работа ИГ 01 «Стандарты оформления чертежей»
- Графическая работа ИГ 02 «Эскиз простой детали»
- Требования к выполнению ИГ 02
- Графическая работа ИГ 03 «Проекционное черчение»
- Графическая работа ИГ 04 «Деталирование чертежа сборочной единицы»
- Приложение 1. Варианты заданий для графической работы ИГ 02
- Приложение 2. Варианты заданий для графической работы ИГ 02
- Приложение 3. Варианты заданий для графической работы ИГ 02
- Приложение 4. Варианты заданий для графической работы ИГ 02
- Приложение 5. Варианты заданий для графической работы ИГ 02
- Таблица 3. Варианты заданий для графической работы ИГ 03
- Продолжение таблицы 3
- Продолжение таблицы 3
Кафедра технического сервиса, механики и электротехники
ИНЖЕНЕРНАЯ ГРАФИКА
ИНЖЕНЕРНАЯ И КОМПЬЮТЕРНАЯ ГРАФИКА
Раздел «Инженерная графика»
Объем и содержание графических работ для студентов очной и заочной формы обучения по направлениям подготовки: 20.03.02 Природообустройство и водопользование, 27.03.01 – Стандартизация и метрология
Омск 2020
Раздел «ИНЖЕНЕРНАЯ ГРАФИКА»
Объем и содержание графических работ по инженерной графике:
- ИГ 01 «Стандарты оформления чертежей» – формат А4.
- ИГ 02 «Эскиз простой детали» – на миллиметровой бумаге формата А3.
- ИГ 03 «Проекционное черчение» – формат А3.
- ИГ 04 «Деталирование чертежа сборочной единицы» – на миллиметровой бумаге два формата: А3 и А4.
Графическая работа ИГ 01 «Стандарты оформления чертежей»
Цель: изучение ГОСТов: форматы – ГОСТ 2.301-68, масштабы — ГОСТ 2.302-68, линии — ГОСТ 2.303-68, шрифты чертежные — ГОСТ 2.304-80, обозначения графические материалов — ГОСТ 2.306-68, нанесение размеров — ГОСТ 2.307-68.
Содержание: На листе формата А4 вычертить типы линий, примеры графических обозначений материала и нанесения размеров

. В основной надписи написать свою фамилию, фамилию преподавателя, заведующего кафедрой, номер группы и номер работы: ИГ 01. ХХ. 01, где ХХ – ваш номер по списку группы.
Рис.1 – Пример работы ИГ 01
Пример заполнения основной надписи представлен на рисунке 2

.
Рис.2 – Пример заполнения основной надписи
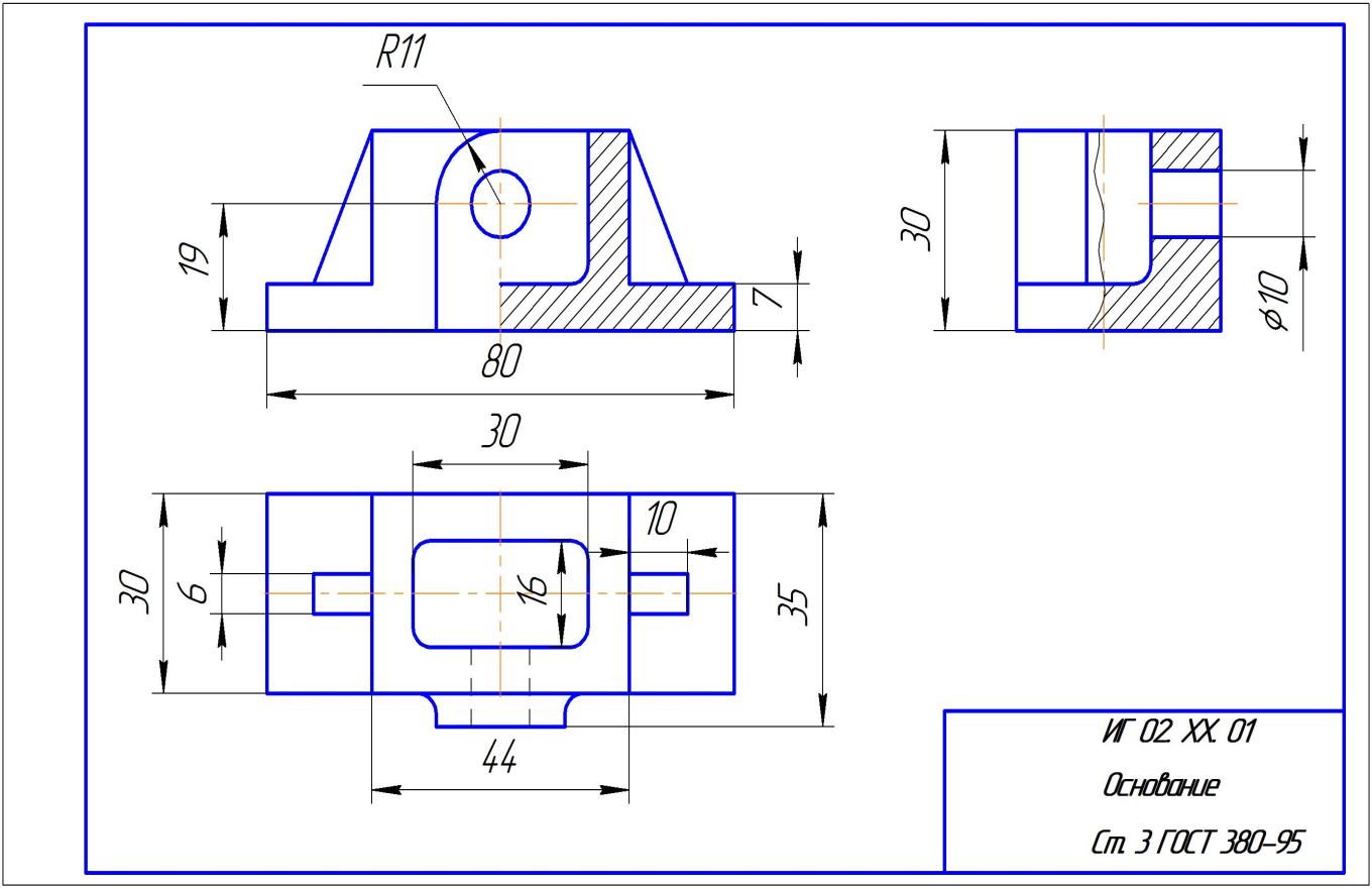
Графическая работа ИГ 02 «Эскиз простой детали»
Цель: Научиться строить виды и разрезы простой детали по ее наглядному изображению.
Содержание: Выполнить эскиз детали на миллиметровой бумаге формата А3. Эскиз выполняется обязательно в трех видах (главный, сверху и слева) с применением полезных разрезов и сечений. Для симметричных деталей выполнить половинчатые разрезы. Пример графической работы ИГ 02 представлен на рис. 3

.
Рис.3 – Пример работы ИГ 02
Требования к выполнению ИГ 02
Эскиз вычерчивается от руки, построения выполняются на глаз, но при этом соблюдаются пропорции частей детали. Изображения вместе с размерными линиями и надписями должны занимать ~ 80% поля чертежа. Эскиз должен быть выполнен аккуратно с соблюдением начертания и соотношения толщины линий. Надписи выполняются стандартным чертежным шрифтом. Все изображения располагаются в проекционной связи в соответствии с требованиями ГОСТ. На эскизе должны быть указаны все необходимые размеры. Вариант задания берется по последней цифре в зачетке из приложений 1-4.
Номер работы: ИГ 02. ХХ. 01. В основной надписи кроме фамилий написать наименование детали, марку стали, например – Ст 3 ГОСТ 380-94.
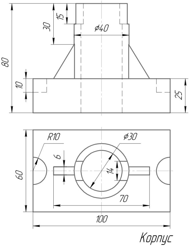
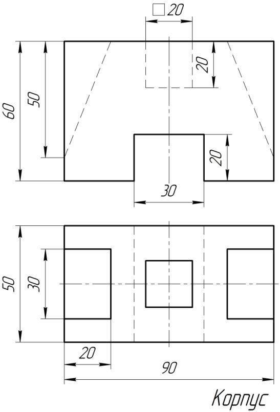
Графическая работа ИГ 03 «Проекционное черчение»
Цель: изучить основные положения ГОСТ 2.305-68 – «Изображения – виды, разрезы сечения». Научиться построению третьей проекции по двум данным изображениям.
Содержание: на формате А3 вычертить два данных вида детали и построить вид слева. Выполнить половинчатые разрезы на главном виде и слева. Начертить изометрию с вырезом ¼ части. Нанести размеры. Заполнить основную надпись. Номер работы: ИГ 03. ХХ. 01. Вариант задания берется по последней цифре в зачетке из таблицы 3.
Пример графической работы ИГ 03 представлен на рис. 4

.
Рис.4 – Пример работы ИГ 03
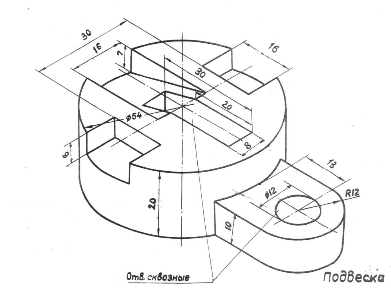
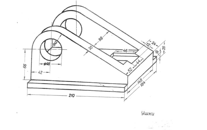
Графическая работа ИГ 04 «Деталирование чертежа сборочной единицы»
Цель: научиться читать сборочные чертежи и закрепить навыки выполнения чертежей деталей.
Содержание: по чертежу сборочной единицы выполнить эскиз двух деталей, указанных преподавателем.
Эскиз первой детали выполняется на миллиметровой бумаге формата А3, второй – на формате А4 или А3 в зависимости от сложности детали (рис. 5

). Эскиз выполняется от руки, качественно, с соблюдением глазомерного масштаба.
Количество изображений детали (видов, разрезов, сечений) студент определяет самостоятельно так, чтобы форма детали была полностью раскрыта. Вместе с тем недопустимы «лишние» изображения. На эскизе нанести размеры детали, проведя измерения по линейке со сборочного чертежа с учетом его масштаба. В основной надписи написать наименование и материал детали. Номер работы: ИГ 04. ХХ. 01 (02).
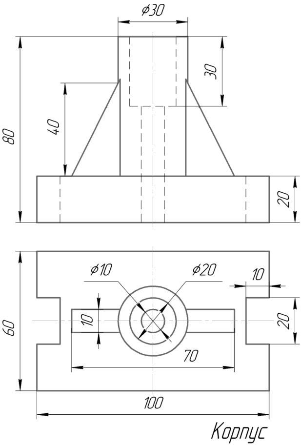
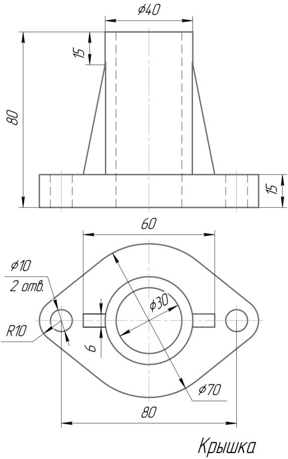
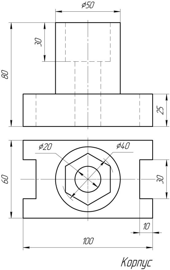
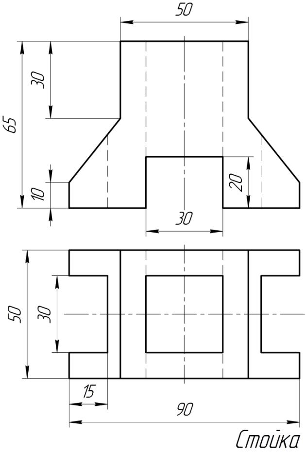
Приложение 1. Варианты заданий для графической работы ИГ 02


Приложение 2. Варианты заданий для графической работы ИГ 02


Приложение 3. Варианты заданий для графической работы ИГ 02


Приложение 4. Варианты заданий для графической работы ИГ 02


Приложение 5. Варианты заданий для графической работы ИГ 02


Таблица 3. Варианты заданий для графической работы ИГ 03




Продолжение таблицы 3




Продолжение таблицы 3


