Данный курсовой проект посвящен проектированию элементов многоэтажного каркасного здания, включая сбор нагрузок, расчет прочности нормальных и наклонных сечений, а также конструирование арматуры. В работе детально рассмотрены расчеты сборного балочного перекрытия (плиты П1, ригеля Р1), средней колонны подвала К1 и центрально нагруженного фундамента. Приведены методики определения геометрических характеристик, потерь предварительных напряжений и проверки по предельным состояниям.
- МИНИСТЕРСТВО НАУКИ И ВЫСШЕГО ОБРАЗОВАНИЯ РОССИЙСКОЙ ФЕДЕРАЦИИ
- КУРСОВОЙ ПРОЕКТ
- ЗАДАНИЕ на курсовой проект
- Оглавление
- Расчет элементов сборного балочного перекрытия
- Проектирование плиты перекрытия П1
- Сбор нагрузок на плиту
- Расчетная схема плиты, нагрузки, усилия
- Расчет прочности нормальных сечений
- Расчет прочности наклонных сечений
- Расчет по второй группе предельных состояний
- Расчѐт по раскрытию трещин и деформациям
- Проектирование ригеля среднего пролета Р1
- Расчѐт прочности нормального сечения
- Расчѐт прочности наклонных сечений
- Конструирование арматуры ригеля
- Расчет консольных свесов полки
- Проектирование средней колонны подвала К1
- Расчет прочности колонны
- Проектирование центрально нагруженного фундамента
- Расчѐт тела железобетонного фундамента
- Проектирование монолитного ребристого перекрытия
- Расчет и армирование монолитной балочной плиты
- Расчет и армирование второстепенной балки
- Расчет прочности нормальных сечений
- Расчет прочности наклонных сечений
- Список использованной литературы
МИНИСТЕРСТВО НАУКИ И ВЫСШЕГО ОБРАЗОВАНИЯ РОССИЙСКОЙ ФЕДЕРАЦИИ
Федеральное государственное автономное образовательное учреждение высшего образования «Дальневосточный федеральный университет»
ПОЛИТЕХНИЧЕСКИЙ ИНСТИТУТ (ШКОЛА)
Инженерный департамент Инженерно-строительное отделение
КУРСОВОЙ ПРОЕКТ
«ЖЕЛЕЗОБЕТОННЫЕ КОНСТРУКЦИИ МНОГОЭТАЖНОГО КАРКАСНОГО ЗДАНИЯ»
по дисциплине «Железобетонные и каменные конструкции» по специальности 08.03.01 «Строительство»
Выполнил: студент гр. Б3121-08.03.01(6) Саакян О. К. (подпись)
Руководитель: ст. преподаватель Сафронова И. А. (подпись)
Регистрационный № _________ «___» ________ 2024 г.
Оценка _________ «___» ________ 2024 г.
г. Владивосток 2024
ЗАДАНИЕ на курсовой проект
Тема проекта: «Железобетонные конструкции многоэтажного каркасного здания».

Таблица 1 – Исходные данные
| № задания | Сетка колонн lр a, м | Число пролетов, к | Ширина панели bн, м | Тип панели | Число этажей n | h эт, м | h под, м | Сопротивление грунта R, МПа | Временная нагрузка Vn,кН/м2 | Район строительства |
|---|---|---|---|---|---|---|---|---|---|---|
| 15 | 5,7 * 5,2 | 6 | 1,9 | пустотная | 6 | 4,1 | 4 | 0,21 | 6 | г. Калининград |
Пол здания: вариант № 6: Цементная стяжка 17 мм, Керамическая плитка 15 мм. Толщина ребристой монолитной плиты 8 см.
Оглавление
- Расчет элементов сборного балочного перекрытия
- Проектирование плиты перекрытия П1
- Сбор нагрузок на плиту
- Расчетная схема плиты, нагрузки, усилия
- Расчет прочности нормальных сечений
- Расчет прочности наклонных сечений
- Расчет по второй группе предельных состояний
- Проектирование ригеля среднего пролета Р1
- Расчѐтная схема ригеля, нагрузки, усилия
- Расчѐт прочности нормального сечения
- Расчѐт прочности наклонных сечений
- Конструирование арматуры ригеля
- Расчет консольных свесов полки
- Проектирование средней колонны подвала К1
- Нагрузки на колонну, расчетная схема, расчетное усилие
- Расчет прочности колонны
- Проектирование центрально нагруженного фундамента под колонну
- Расчѐт основания
- Расчѐт тела железобетонного фундамента
- Проектирование плиты перекрытия П1
- Проектирование монолитного ребристого перекрытия с балочными плитами
- Расчет и армирование монолитной балочной плиты
- Расчѐтная схема, нагрузки, усилия
- Расчеты на прочность нормальных сечений плиты
- Расчет и армирование второстепенной балки
- Расчетная схема и нагрузки
- Расчет прочности нормальных сечений
- Расчет прочности наклонных сечений
- Расчет и армирование монолитной балочной плиты
- Список использованной литературы
Расчет элементов сборного балочного перекрытия
Проектирование плиты перекрытия П1
Исходные данные: Многопустотная предварительно напряженная панель с номинальными размерами: длина lн = 5 м; ширина bн = 1,9 м. Конструктивные размеры плиты: lк = 4,95 м; bk = 1,89 м.

Рисунок 1.1 – Поперечное сечение плиты
Материалы: продольная напрягаемая арматура класса А600(A-IV) – Rs = 520 МПа; Rsn= 600 МПа; Еs = 20 104 МПа; поперечная арматура В500; бетон тяжелый В20 – Rb = 11,5 МПа; Rbt = 0,9 МПа; Rbn = 15 МПа; Rbtn = 1,35 МПа; Еb = 27,5 103 МПа.
Сбор нагрузок на плиту
Определяем нагрузки на 1 м2 перекрытия.
Таблица 1 — Нагрузки на 1м2 перекрытия
| Номер | Наименование нагрузки | Толщина, м | Удельный вес, кН/м3 | Нормативная нагрузка | Yf | Расчётная нагрузка |
|---|---|---|---|---|---|---|
| 1 | Керамическая плитка | 0,015 | 18,00 | 0,27 | 1,30 | 0,35 |
| 2 | Цементная стяжка | 0,017 | 22,00 | 0,37 | 1,30 | 0,49 |
| 3 | Плита | 0,22 | 25,00 | 5,50 | 1,10 | 6,05 |
| Итого постоянная: | 6,14 | 6,89 | ||||
| Временные нагрузки | ||||||
| Длительная | 6,00 | 1,20 | 7,20 | |||
| Кратковременная | 1,00 | 1,20 | 1,20 | |||
| Итого временная: | 7,00 | 8,40 | ||||
| Полная: | 13,14 | 15,29 |
Расчетная схема плиты, нагрузки, усилия

Рисунок 1.2 — Расчетная схема плиты
Расчетная схема плиты – балка, свободно лежащая на двух шарнирных опорах. Расчетный пролет lo – расстояние между осями опирания плиты на ригели.

Рисунок 1.3 – Опирание плиты на ригель прямоугольного сечения
Усилия: От расчетной нагрузки M0 = 83,6 кH · m; Q = 69,72 кH. От полной нормативной нагрузки: nM = 71,91 кH · m. От нормативной длительной нагрузки: Ml,n = 66,44 кH · m.
Расчет прочности нормальных сечений

Рисунок 1.4 – Расчетное сечение плиты в расчетах на прочность
Расчетное сечение плиты принимается тавровым. Размеры: полная высота h = 22 см, ширина полки bf = 1850 мм; высота полки hf = 31 мм. Ширина ребра b = 419 мм.
Определяем положение нейтральной оси: Mf = 115,087 кH · m. Так как Mf > M0, нейтральная ось проходит в полке. Сечение рассчитывается как прямоугольное.
Требуемая площадь арматуры: Asp = 7,06 см2. Принимаем 8 12 А600 с Asp = 9,05 см2.
Расчет прочности наклонных сечений
Прочность наклонных сечений проверяется на действие поперечной силы Q. Qmax = 69,72 кН.
Проверяем прочность сжатой бетонной полосы: Qceı = 274,65 кH > Qmax = 69,72 кH. Прочность достаточна.
Принимаем поперечную арматуру из стержней 4 В500, число каркасов n = 4, Asw = 0,5 см2, шаг s = 10 см.
Проверка прочности наклонного сечения: Qb + Qsw = 96130 H > Q = 53160 H. Прочность достаточна.
Расчет по второй группе предельных состояний

Рисунок 1.5 – Расчетное сечение плиты для расчетов по второй группе предельных состояний
Расчетное сечение панели принимается двутавровым. Высота h = 22 см. Площадь приведенного сечения Ared = 2293,95 см2. Статический момент Sred = 24799,23 см3.
Определяем потери предварительных напряжений: первые потери 16,2 МПа, вторые потери 88,96 МПа. Полные потери 105,16 МПа.
Расчѐт по раскрытию трещин и деформациям
Момент трещинообразования Mcrc = 73,44 кH · m. Так как Mcrc > M = 71,91 кH · m, трещины не образуются.
Расчет прогиба: fm = 1,32 см < fult = 2,325 см. Требование выполняется.



Рисунки 1.6, 1.7, 1.8 – Спецификация и конструкция пустотной плиты.
Проектирование ригеля среднего пролета Р1

Рисунок 2.1 — Ригель сборного балочного перекрытия
Расчетная схема ригеля – балка, свободно лежащая на двух шарнирных опорах. Расчетный пролет l0 = 5,1 м. Полная расчетная нагрузка q = 85,81 кH/м.
Усилия: Mmax = 278,98 кH · m; Qmax = 218,82 кH.
Расчѐт прочности нормального сечения

Рисунок 2.2 — Поперечные сечения ригеля
Сечение прямоугольное: b = 20 см, h = 60 см, h0 = 54 см. Требуемая площадь арматуры As = 16,96 см2. Принимаем 225 А400 + 222 А400 с As = 17,42 см2.
Расчѐт прочности наклонных сечений
Проверяем прочность сжатой бетонной полосы: Qceı = 631,8 кH > Qmax = 218,82 кH. Прочность достаточна.
Принимаем поперечную арматуру 8 А240, Asw = 1,006 см2, шаг s = 25 см. Проверка прочности наклонного сечения: Qb + Qsw = 397689,83 H > Q = 140732,9 H. Прочность достаточна.
Конструирование арматуры ригеля
Для экономного армирования продольные стержни верхнего ряда обрываются в пролете. Несущая способность сечения 1-1: M = 285,2 кH · m. Несущая способность сечения 2-2: M = 180 кH · m.

Рисунок 2.3 – Конструкция ригеля крайнего пролета
Расчет консольных свесов полки
Нагрузка на консольный свес ригеля Q = 69,72 кH. Изгибающий момент Mmax = 3,66 кH · m/м. Требуемая площадь арматуры As = 0,23 см2/м. Принимаем 53 В500 с шагом 20 см.
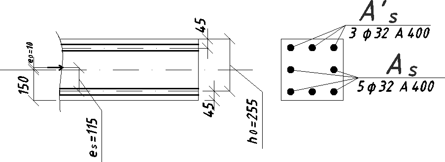
Проектирование средней колонны подвала К1

Рисунок 3.1 – Расчетная схема колонны
Сечение колонны 30 х 30 см. Расчетная длина l0 = 2,695 м. Усилия: N = 3273,86 кH.
Расчет прочности колонны

Рисунок 3.2 – Нормальное сечение колонны
Расчет как условно центрально сжатого элемента. Требуемая площадь арматуры As,tot = 64,25 см2. Принимаем 832 А400 (As,tot = 64,34 см2).

Рисунок 3.3 – Конструкция колонны подвала
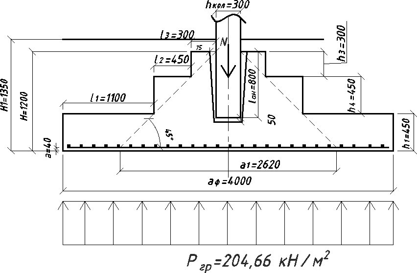
Проектирование центрально нагруженного фундамента

Рисунок 4.1 – Центрально нагруженный фундамент под колонну
Принимаем высоту фундамента H = 120 см. Сторона подошвы aф = 400 см.
Расчѐт тела железобетонного фундамента
Проверка на продавливание: Rbtbmho = 7790,56 кH > P = 739,195 кH. Прочность достаточна.

Рисунок 4.2 – Расчетная схема нормальных сечений фундамента
Расчет арматуры у подошвы: принимаем сетку С1 из 18 18 А400.

Рисунок 4.3 – Конструкция монолитного фундамента
Проектирование монолитного ребристого перекрытия

Рисунок 5.1 – Монолитное ребристое перекрытие с балочными плитами
Перекрытие состоит из плиты, второстепенных балок и главных балок. Плита толщиной 6 см.
Расчет и армирование монолитной балочной плиты

Рисунок 5.2 – Расчетная схема с эпюрой моментов и армирование
Расчетная нагрузка q = 10,89 кН/м. Моменты: M1 = 2,86 кН·м, M2 = 1,576 кН·м. Требуемая арматура: As = 1,01 см2/м.
Расчет и армирование второстепенной балки

Рисунок 5.3 — Расчетная схема второстепенной балки
Расчетная нагрузка q = 22,561 кН/м. Моменты: M1 = 50,25 кН·м, Mb = 39,49 кН·м, Mc = 34,55 кН·м.
Расчет прочности нормальных сечений

Рисунок 5.4 – Расчетное сечение в первом пролете
Требуемая арматура в крайних пролетах: 218 А400 (As = 5,09 см2). В средних пролетах: 214 А400 (As = 3,08 см2).
Расчет прочности наклонных сечений

Рисунок 5.5 – Расчетное сечение балки
Проверка прочности наклонных сечений: Qb + Qsw = 90504 H > Q = 42640,12 H. Прочность достаточна.
Список использованной литературы
- ГОСТ 2.105-95 Общие требования к текстовым документам.
- ГОСТ Р 21.1101-2013 Система проектной документации для строительства.
- ГОСТ 27751-2014 Надежность строительных конструкций.
- Пособие по проектированию бетонных и железобетонных конструкций (к СП 52-101-2003).
- Пособие по проектированию предварительно напряженных железобетонных конструкций (к СП 52-102-2003).
- СП 63.13330.2012 Бетонные и железобетонные конструкции.
- СП 52–101–2003. Бетонные и железобетонные конструкции без предварительного напряжения.
- СП 52–102–2004. Предварительно напряженные железобетонные конструкции.
- СП 20.13330.2011 Нагрузки и воздействия.
- Байков В.Н., Сигалов Э. Е. Железобетонные конструкции.
