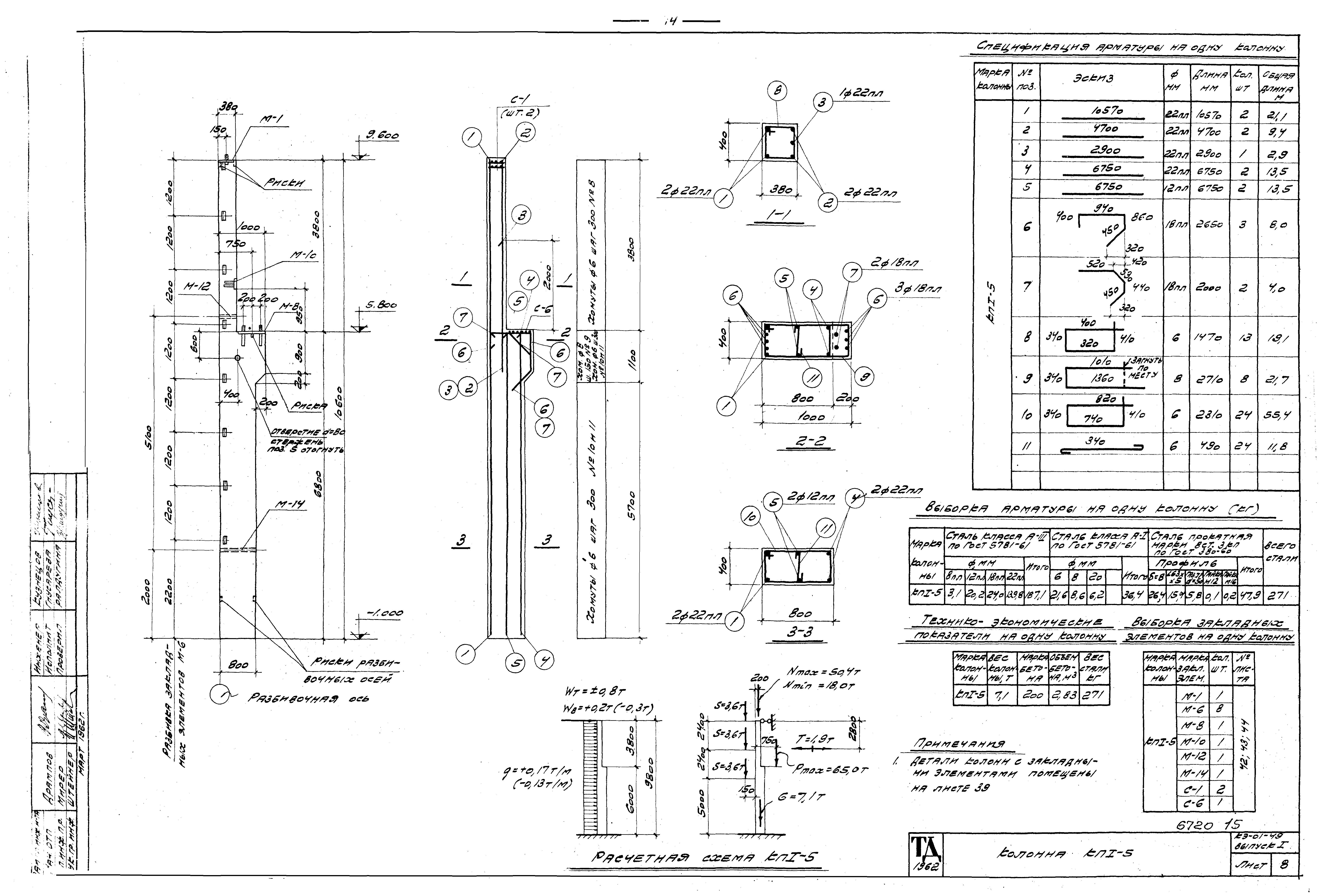
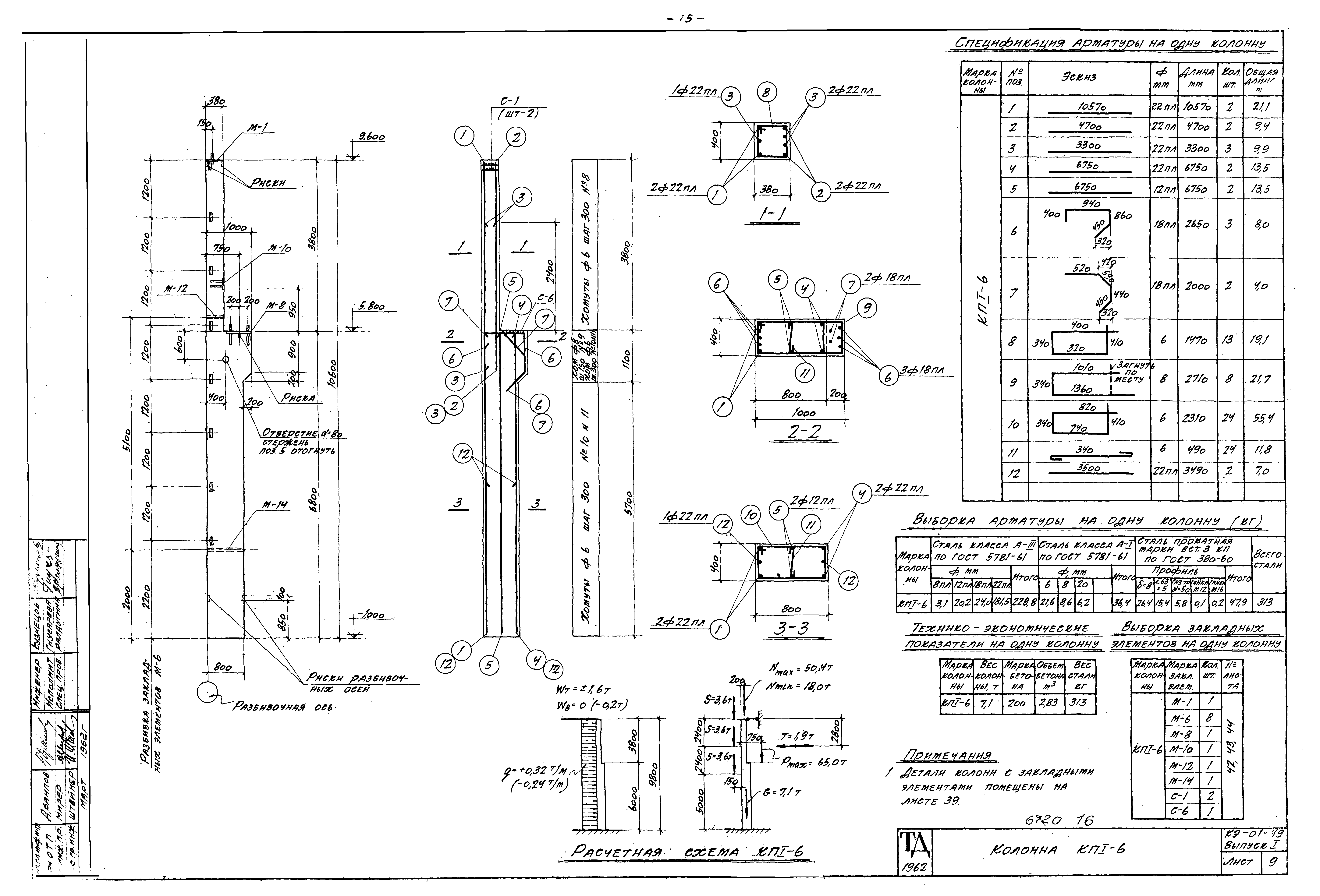
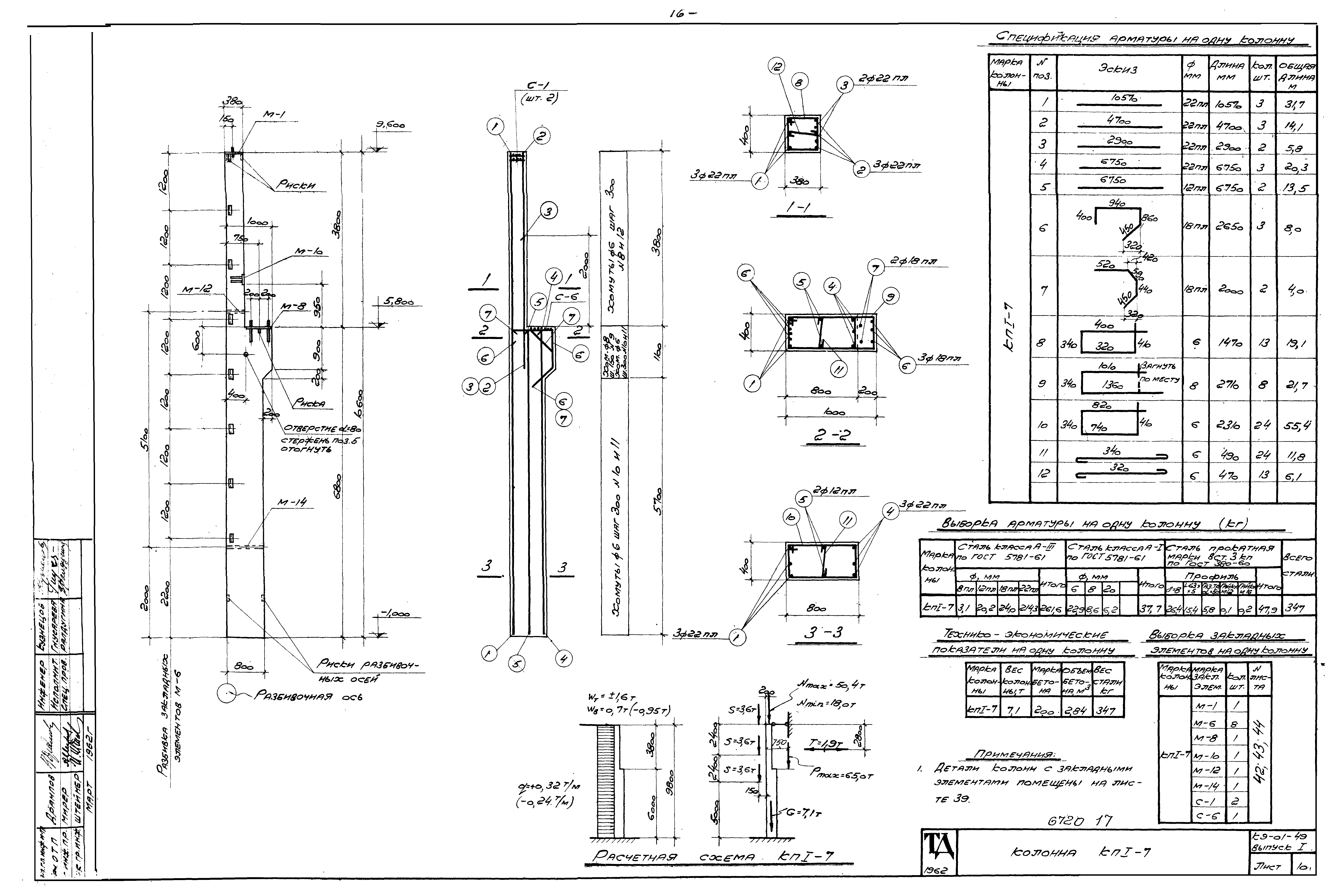
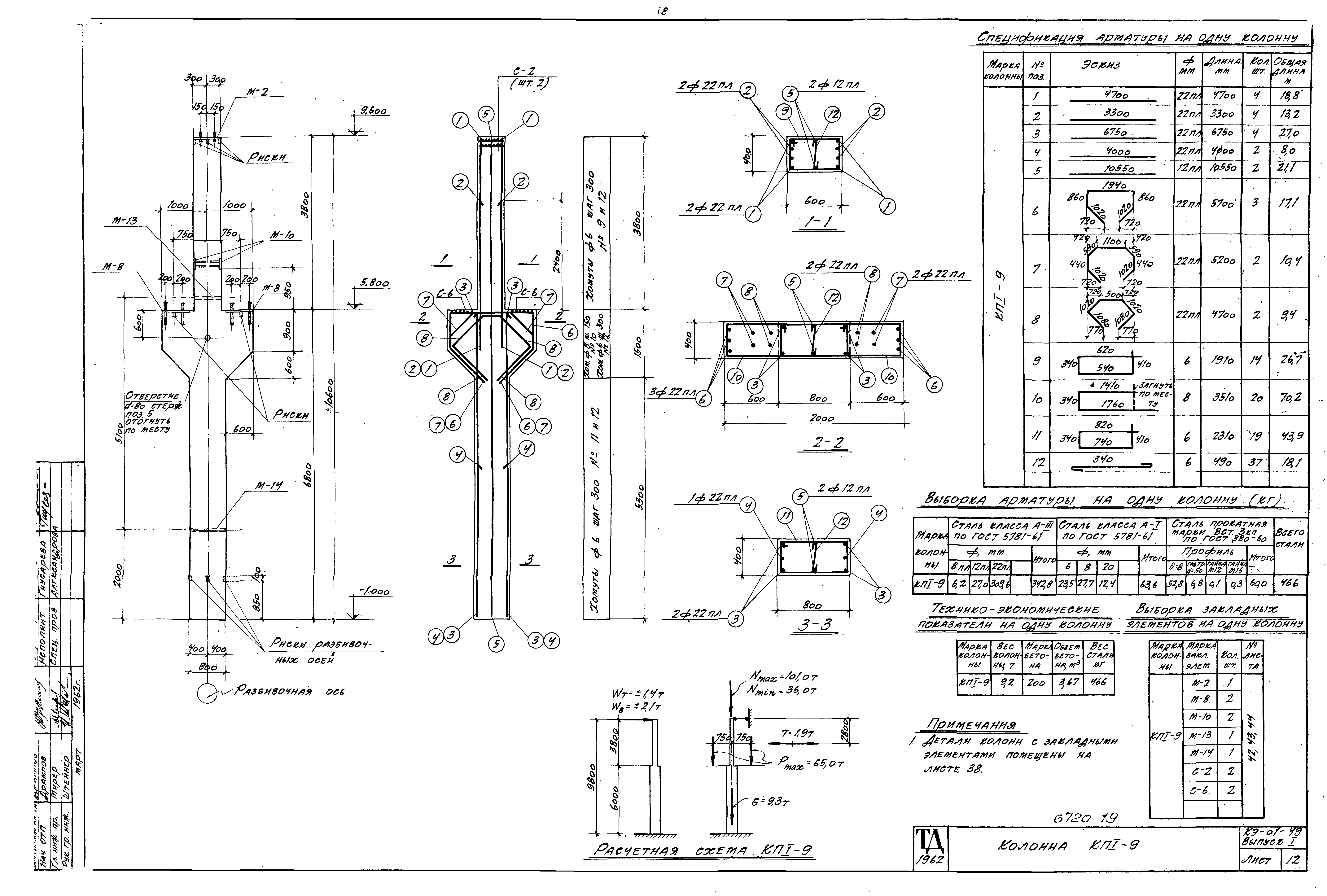
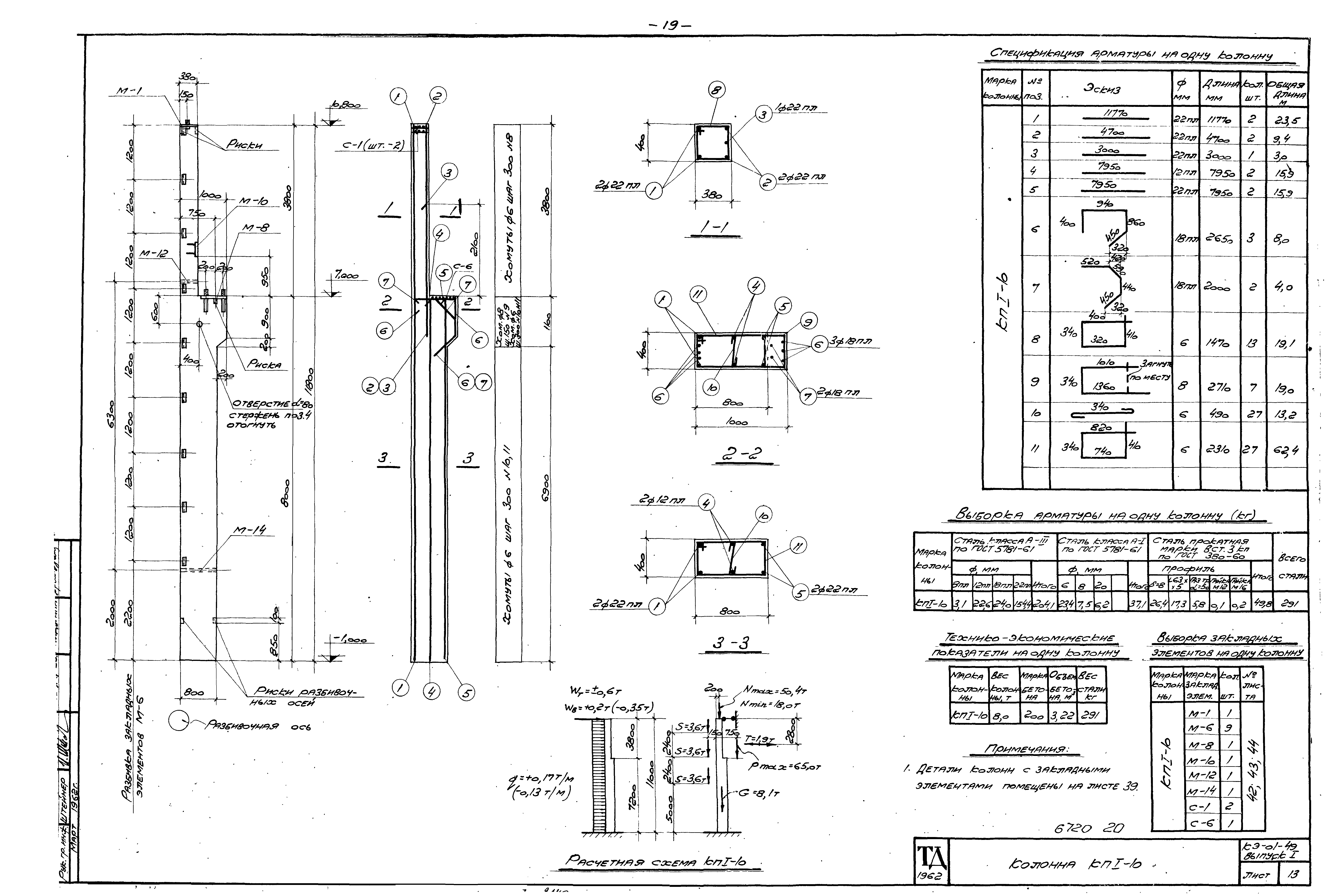
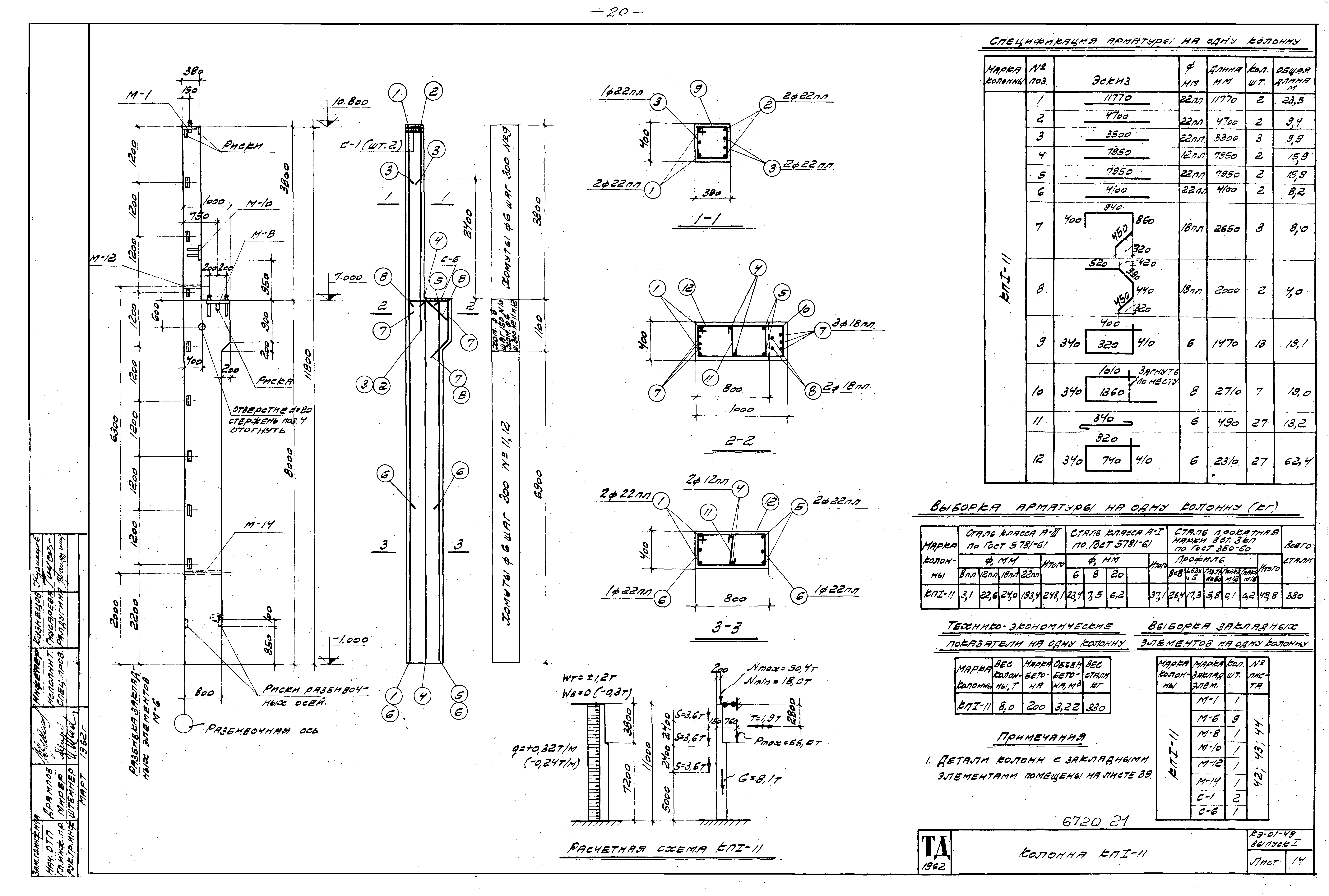
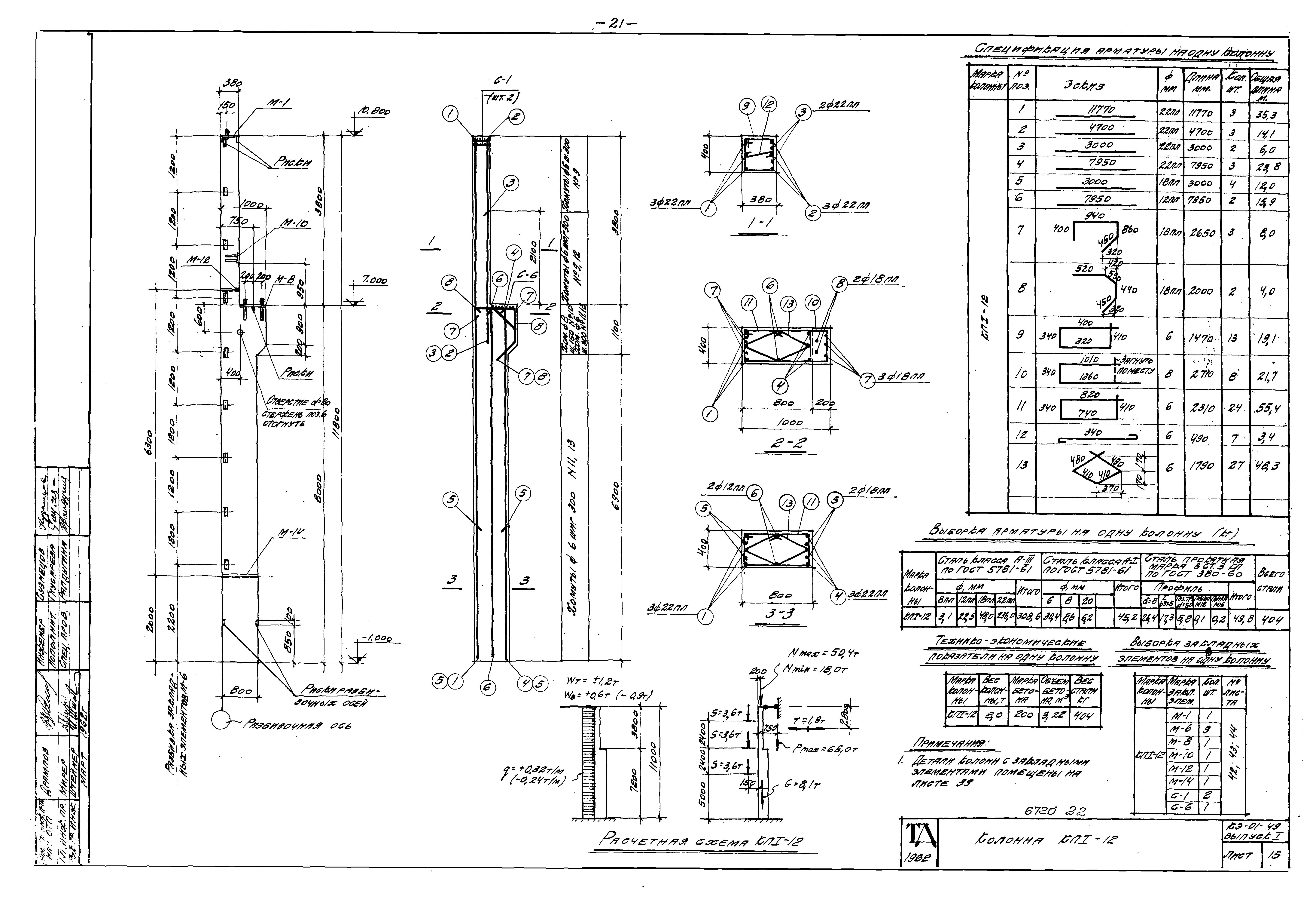
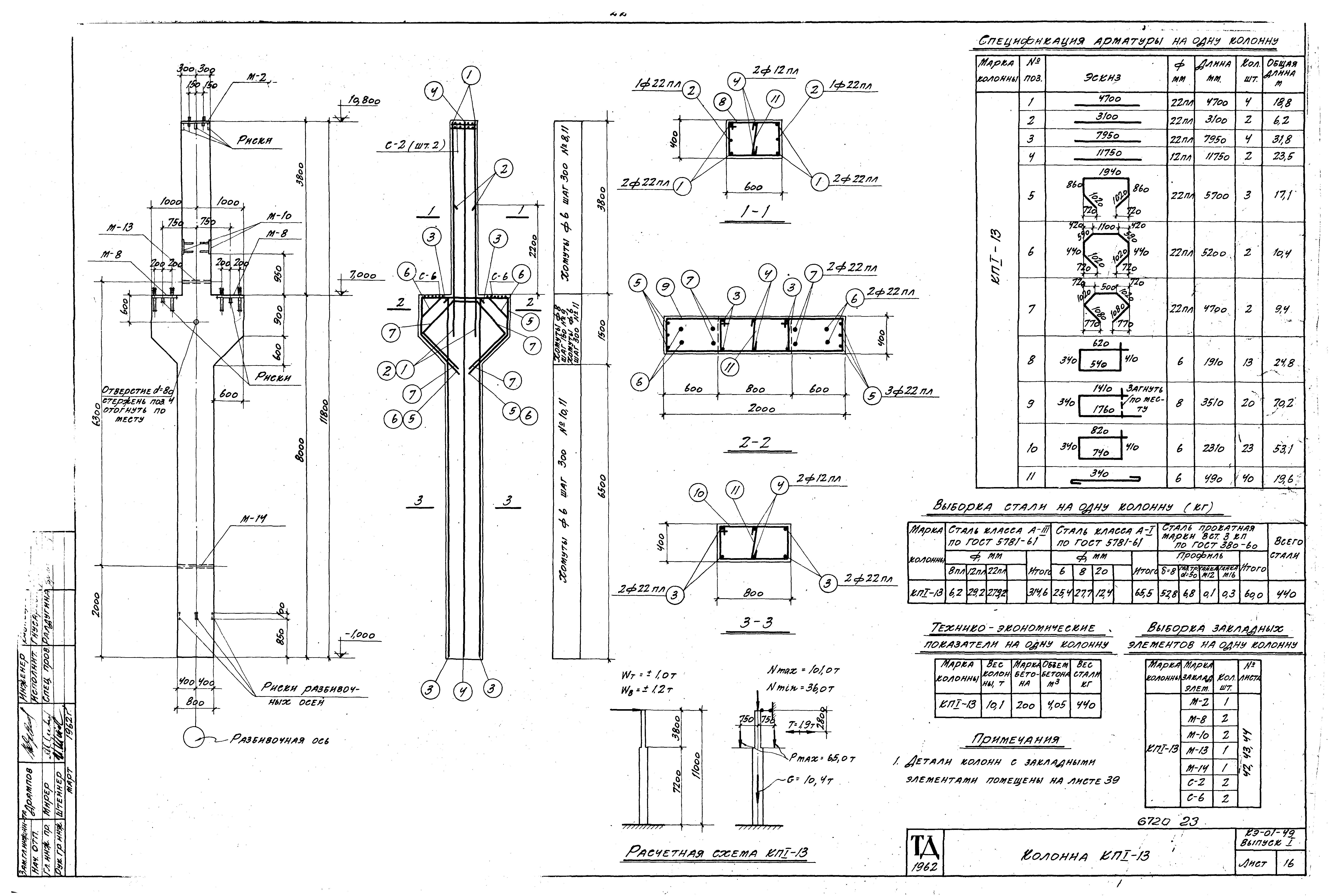
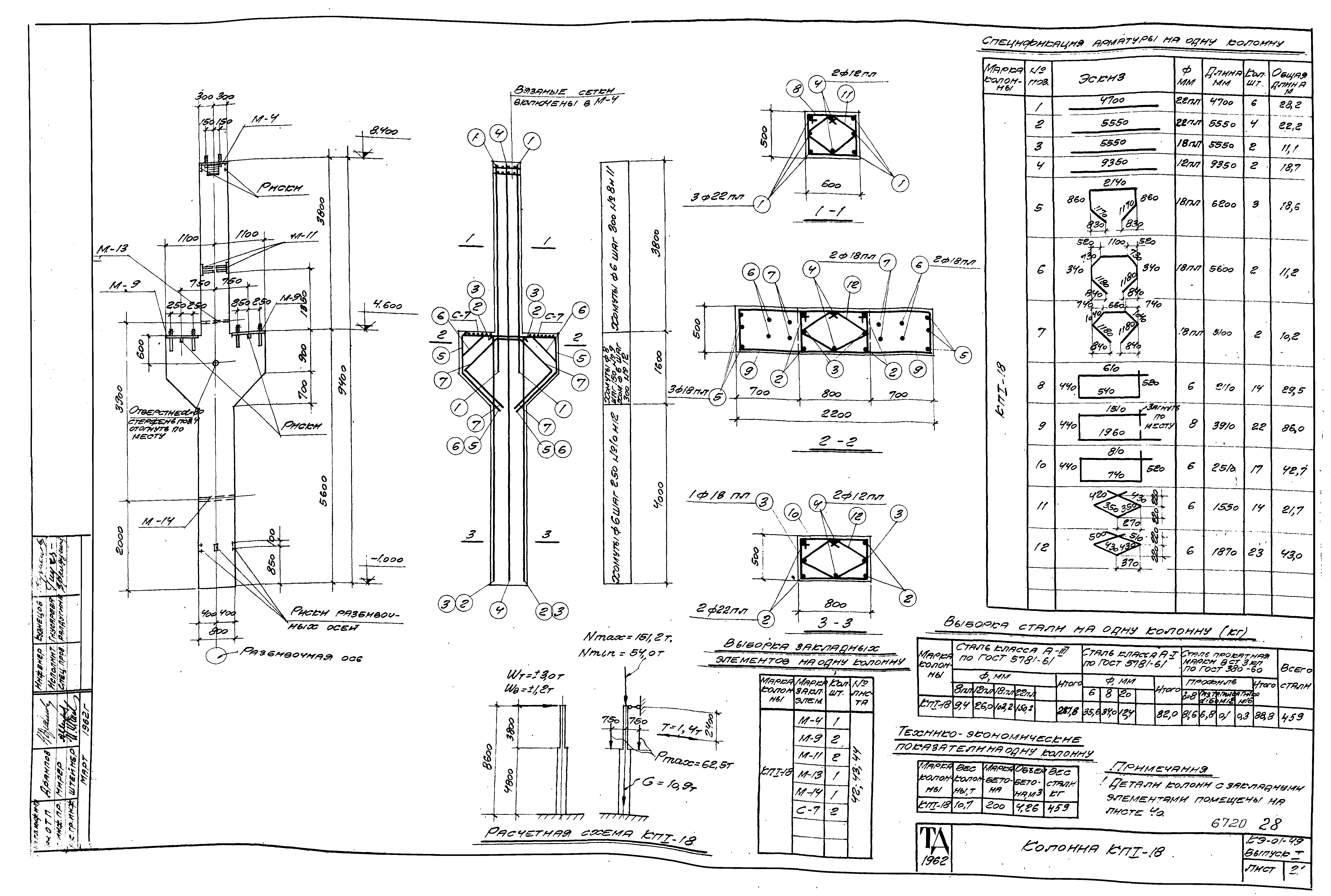
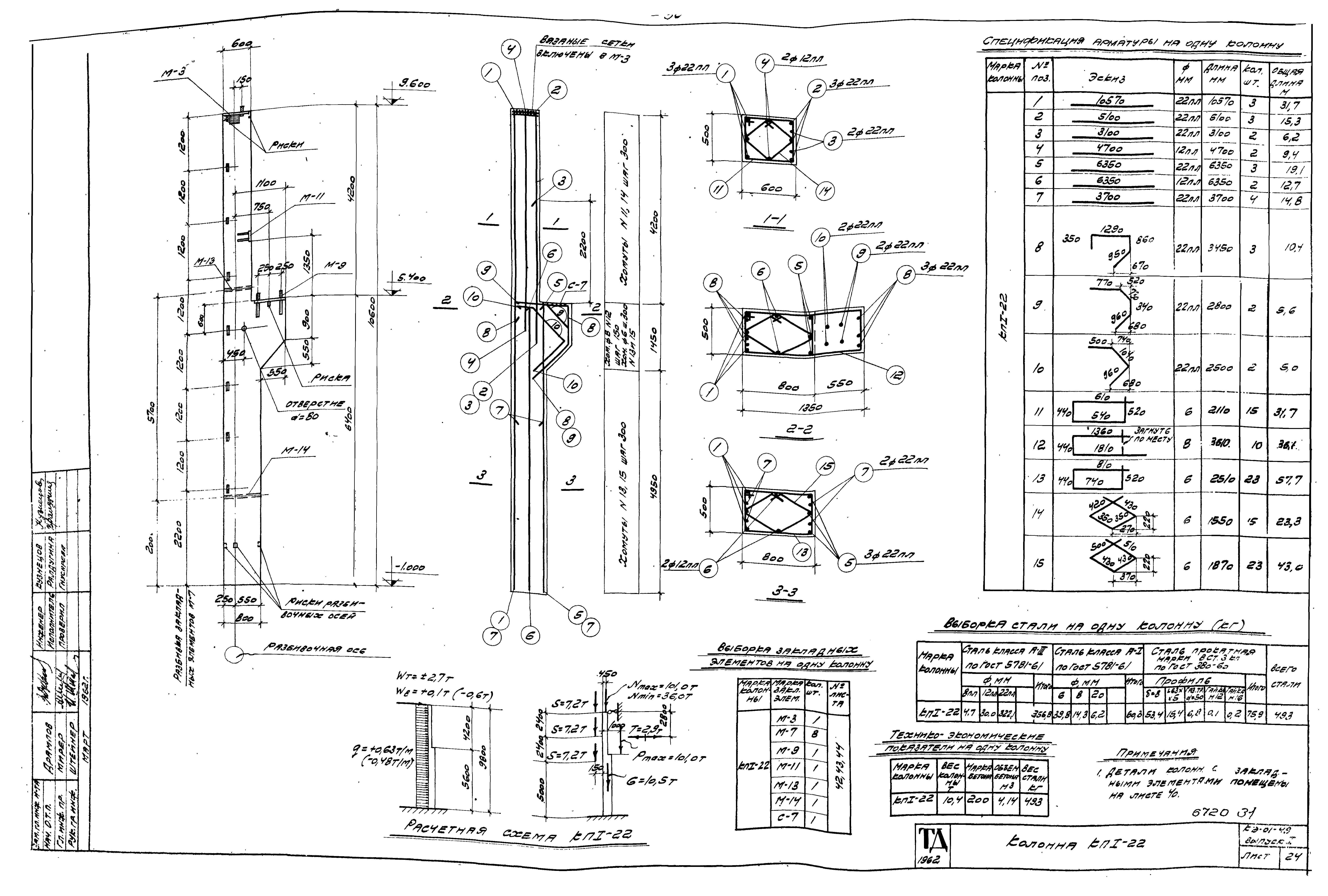
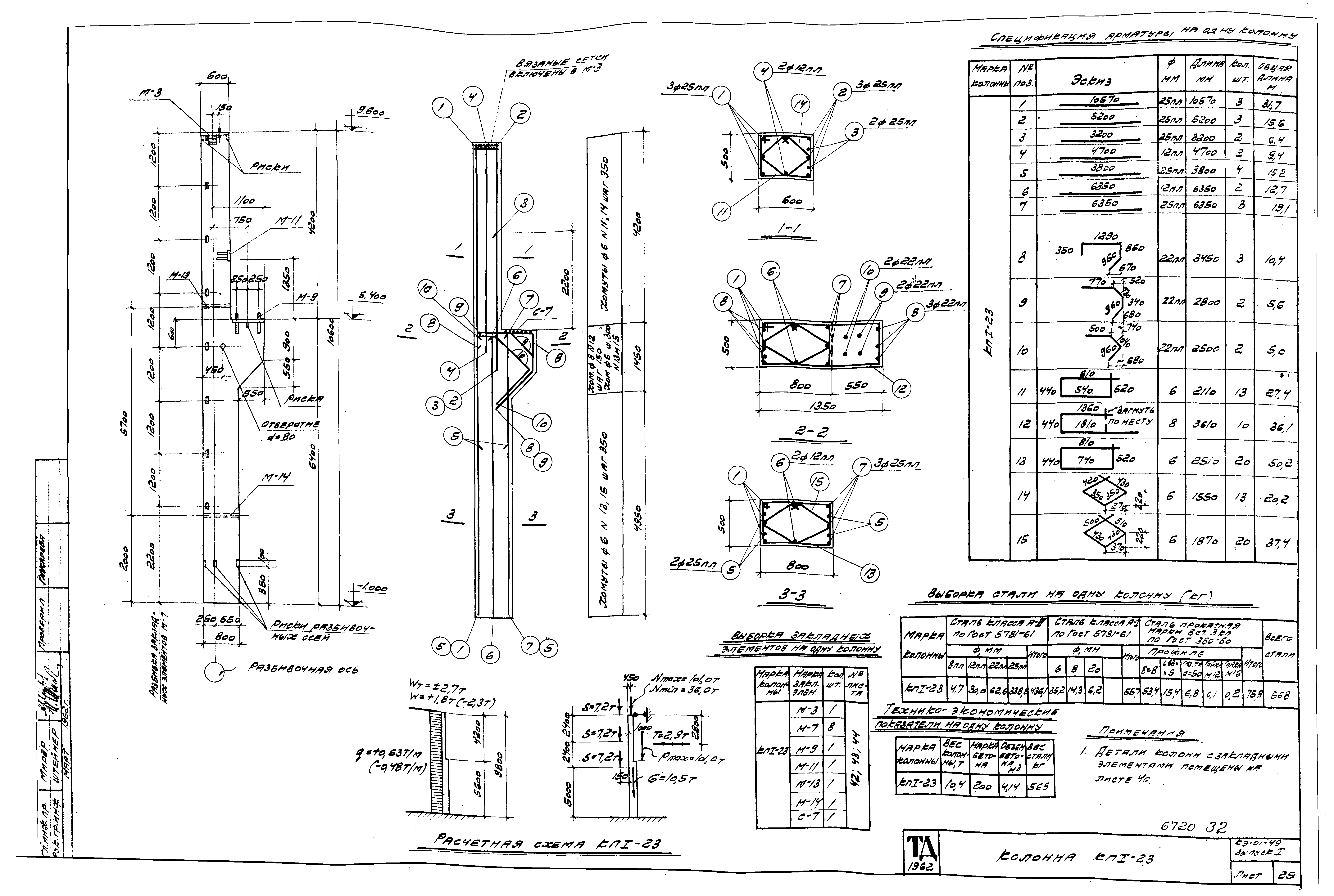
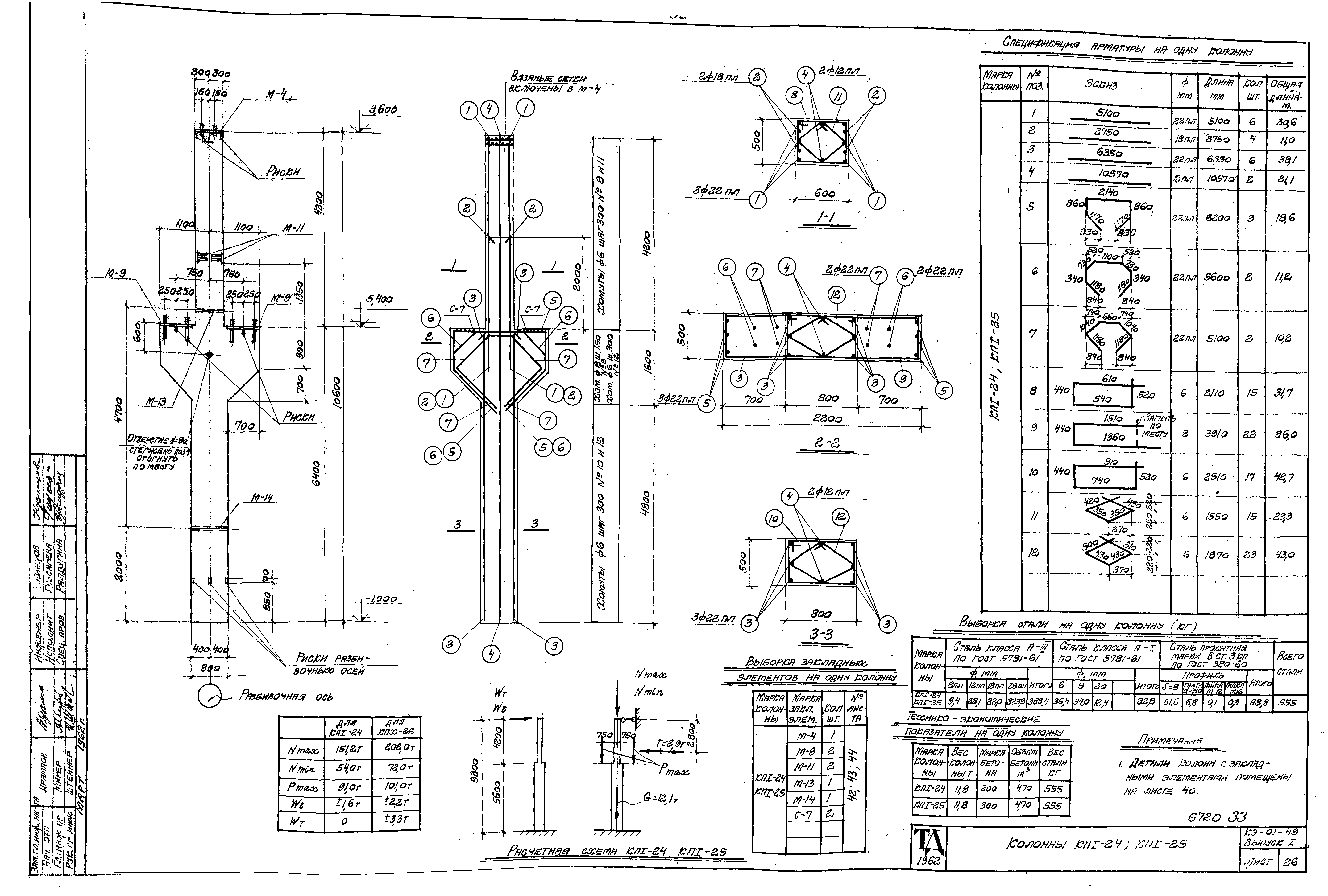
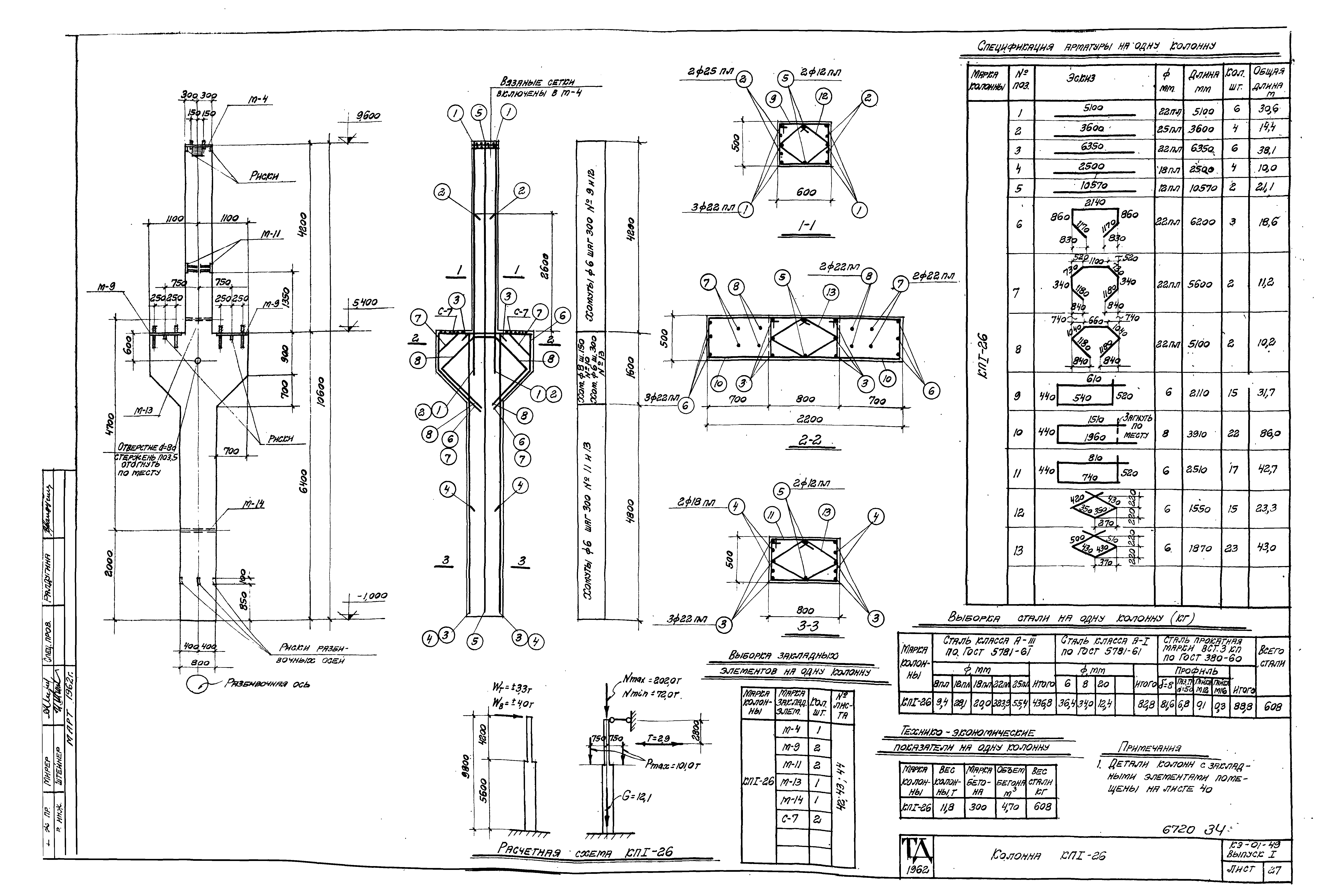
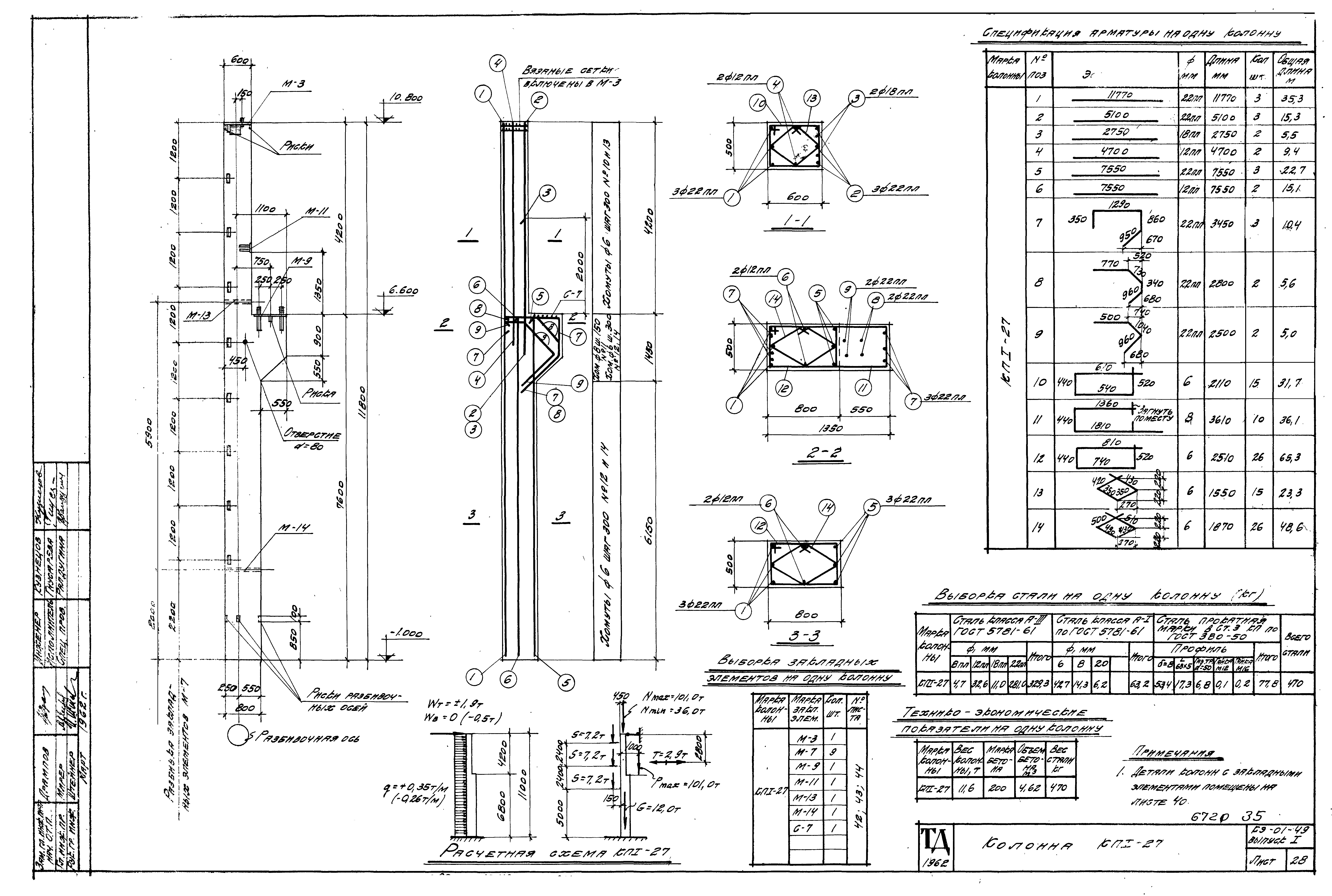
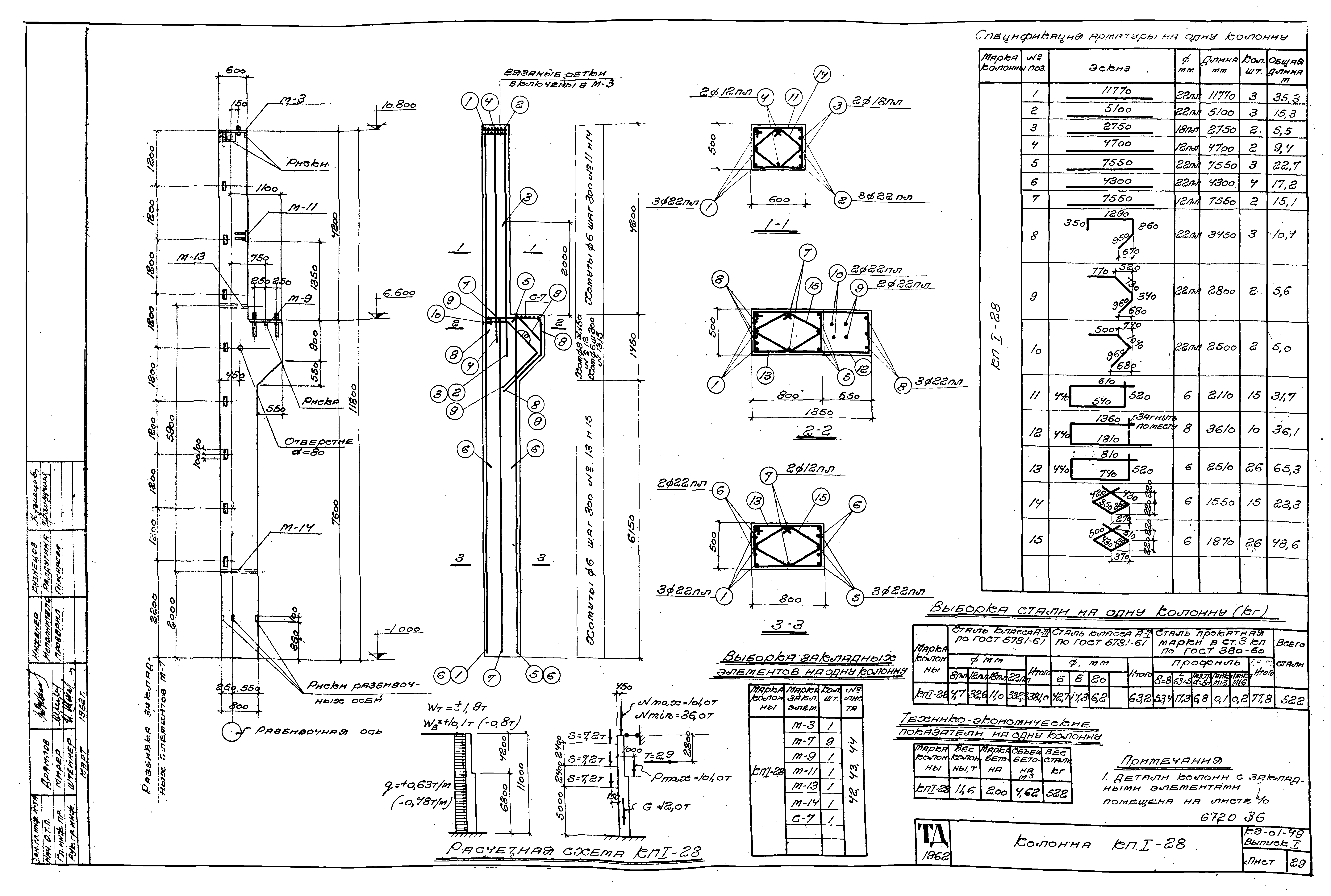
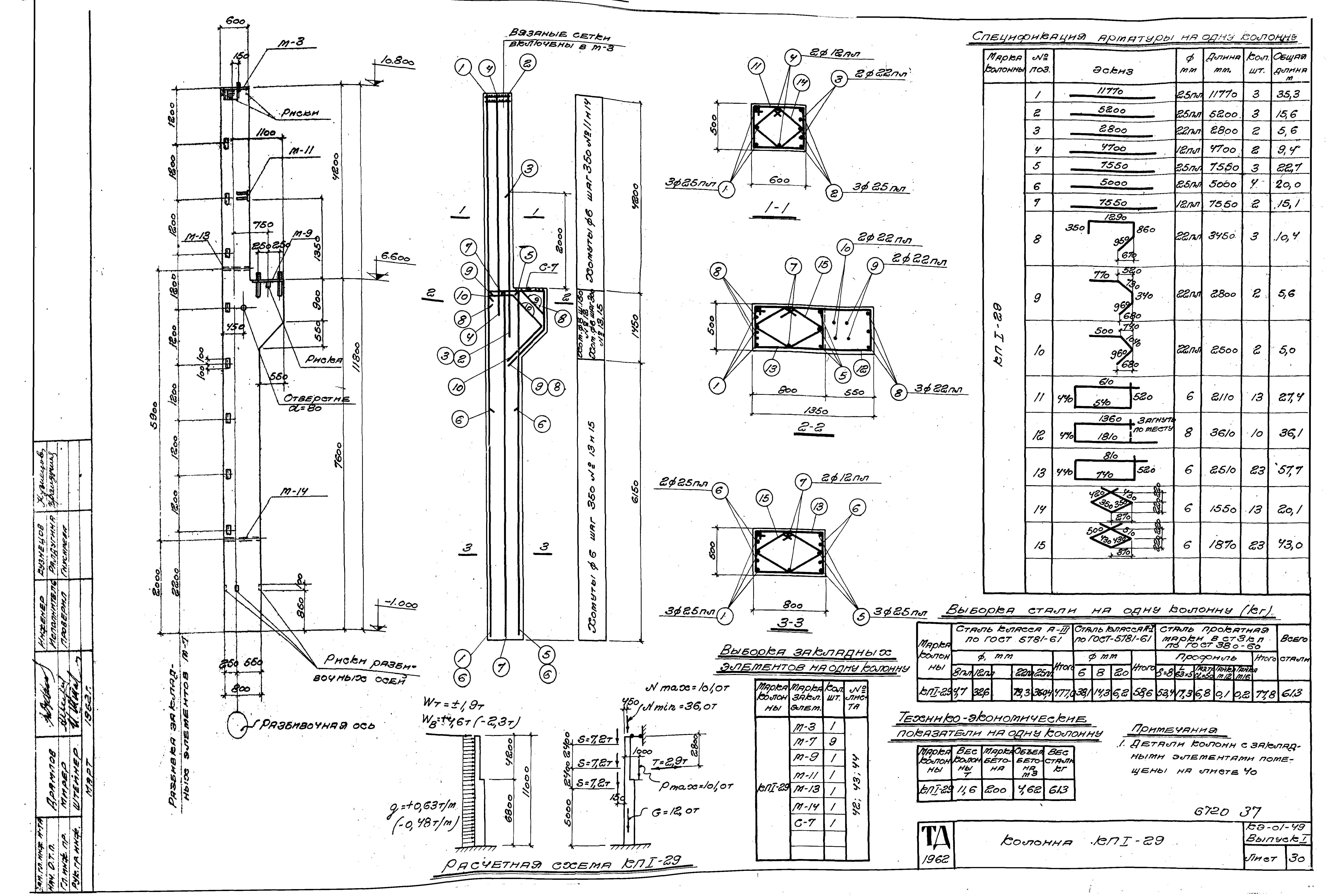
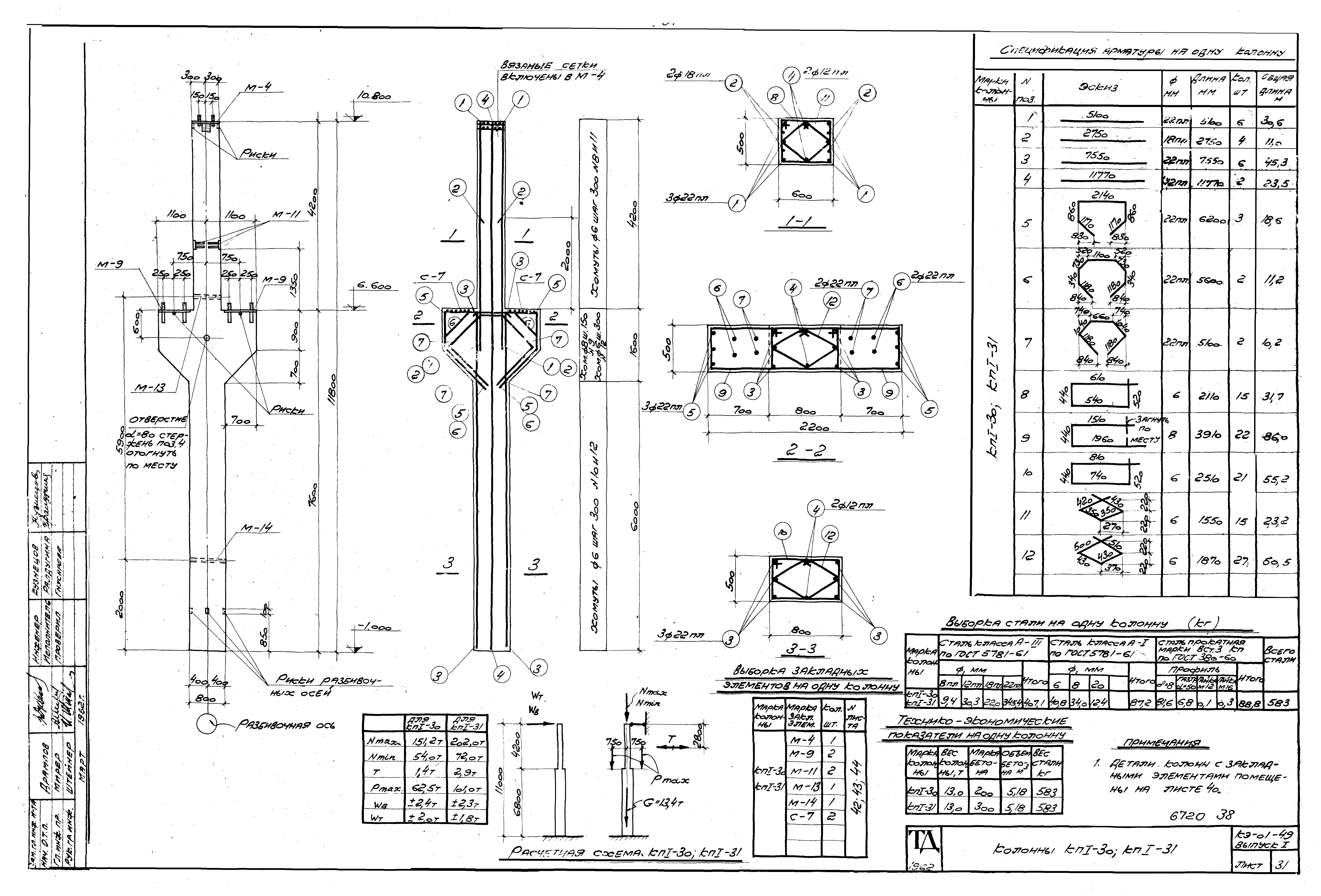
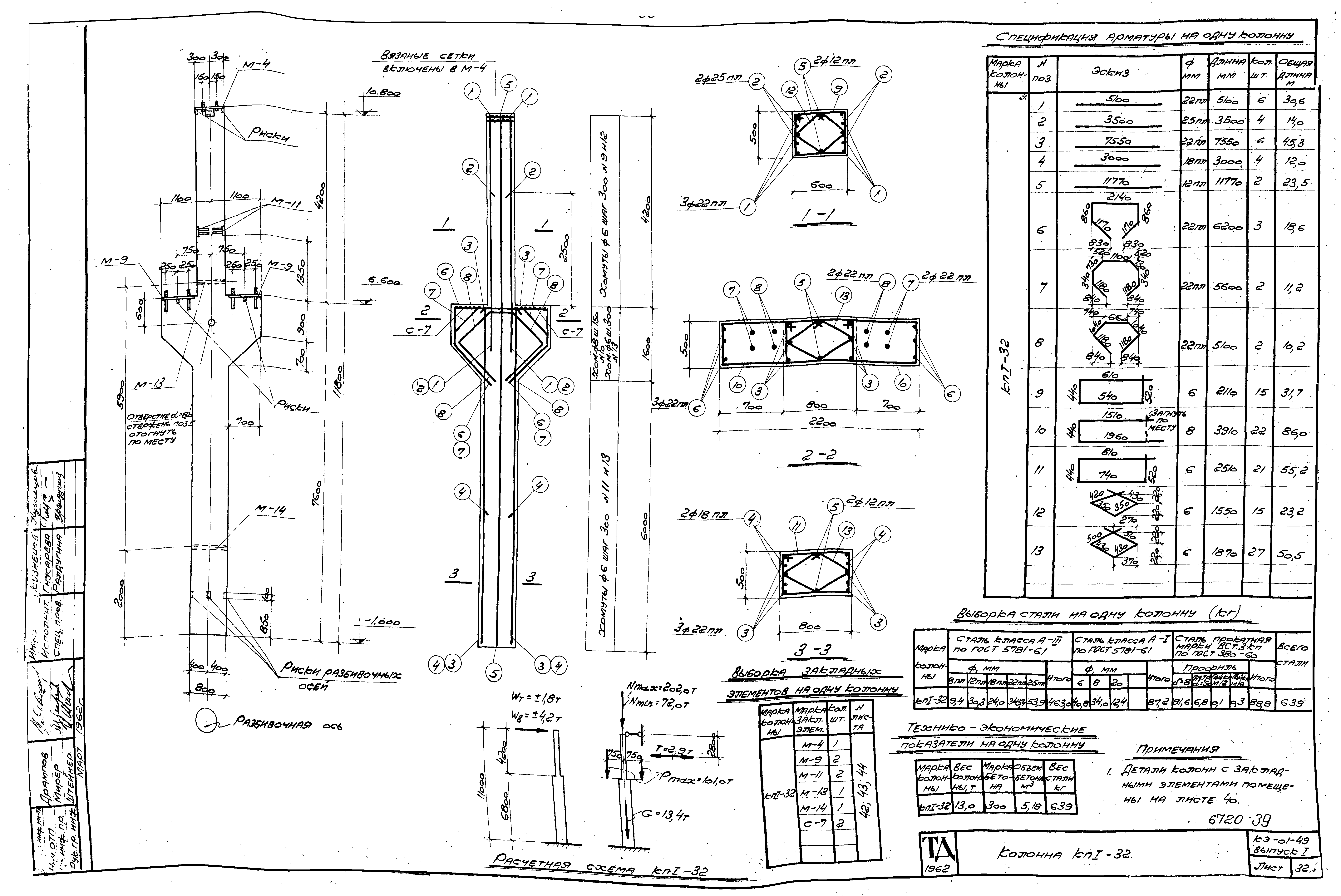
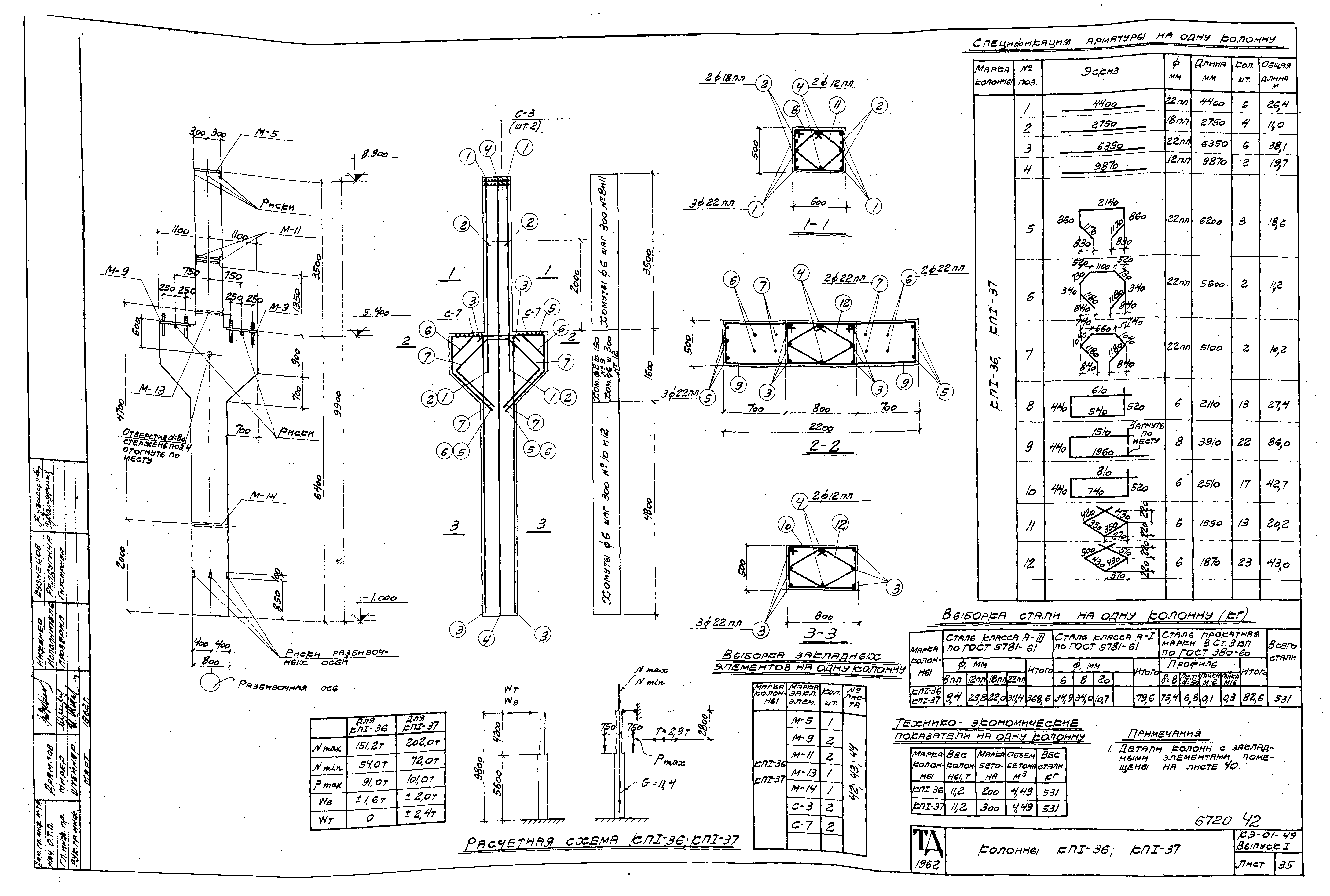
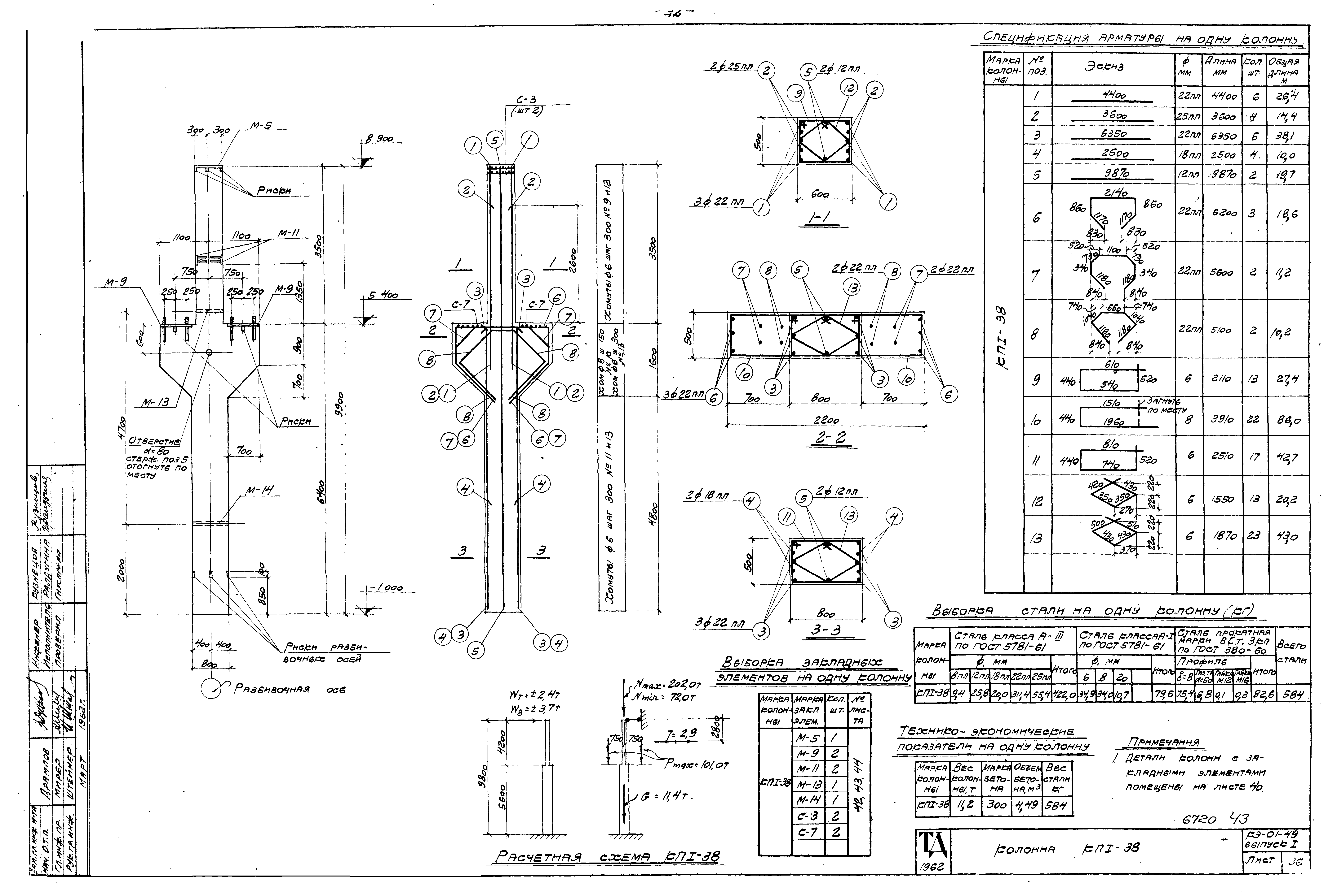
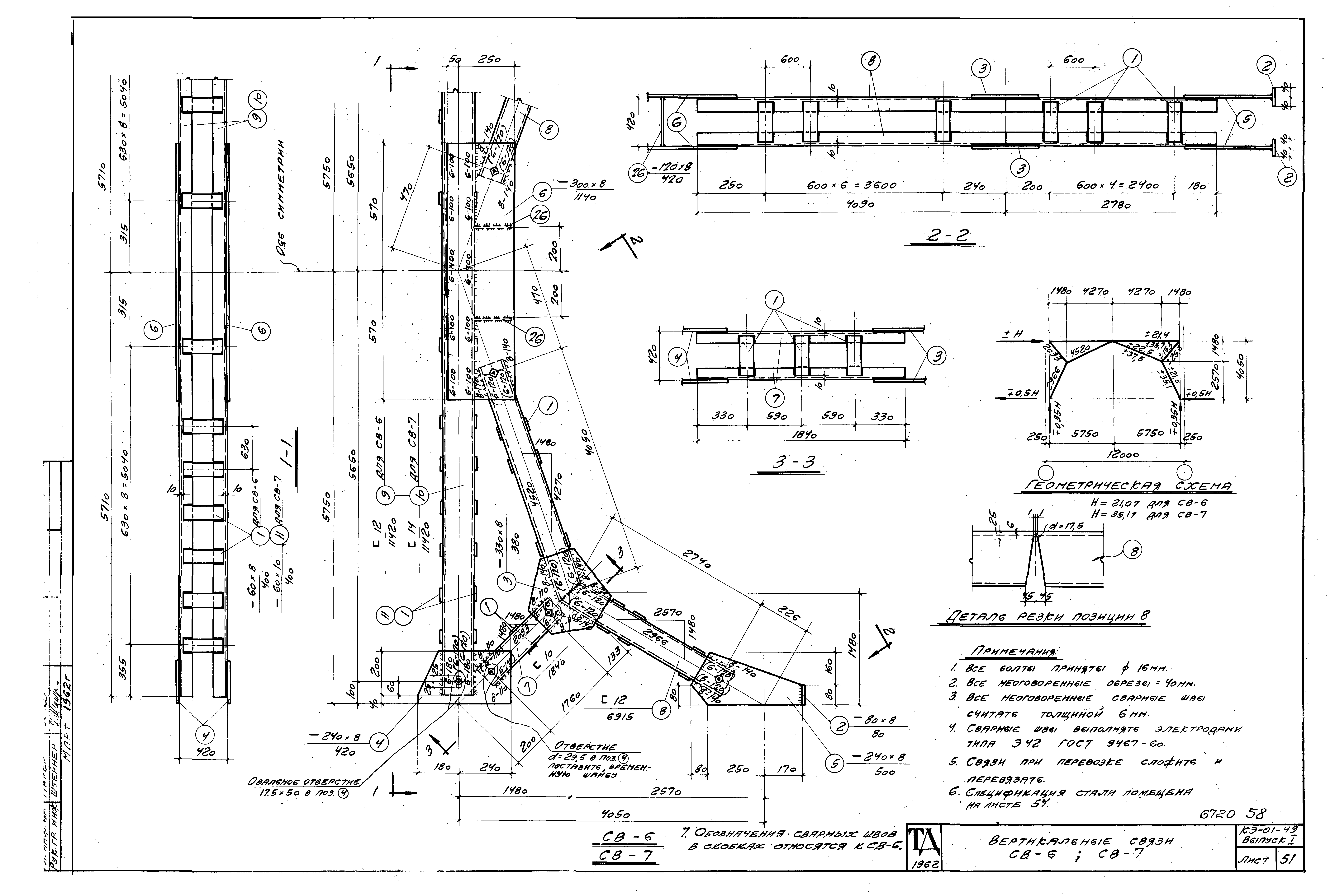
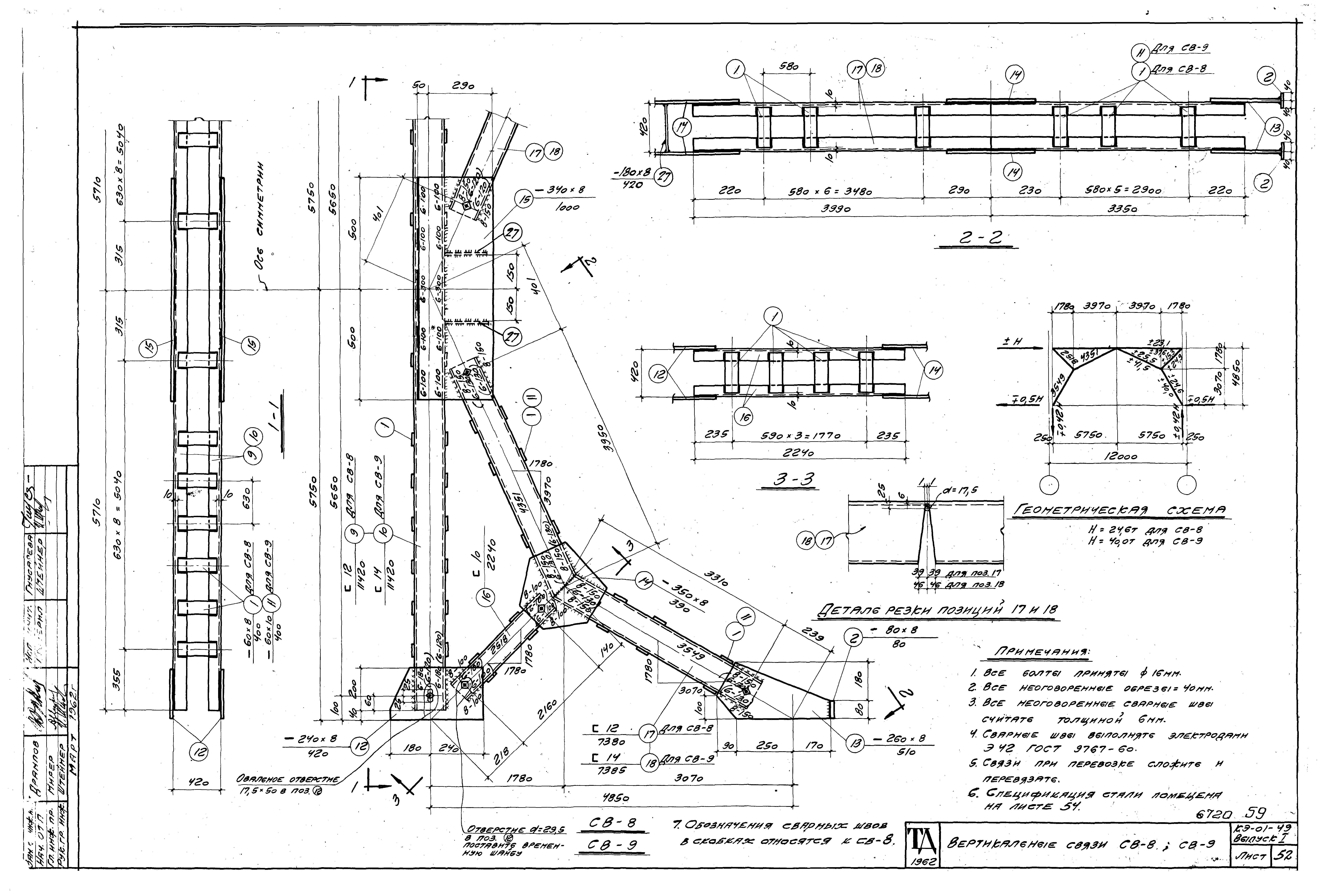
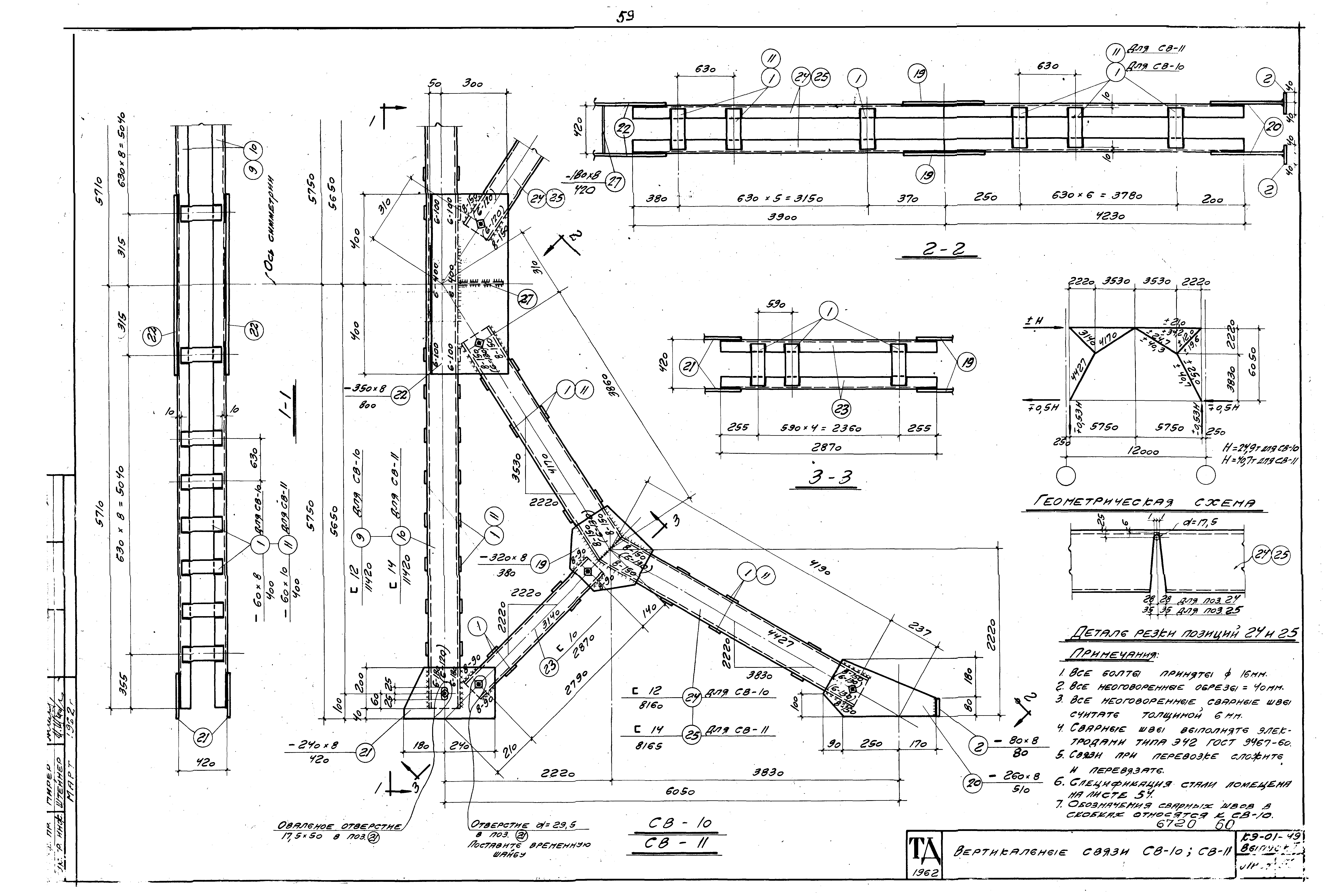
Данный документ представляет собой выпуск 1 серии КЭ-01-49, содержащий рабочие чертежи сборных железобетонных колонн прямоугольного сечения для одноэтажных производственных зданий. В материалах представлены колонны для зданий с пролетами 18 и 24 м, оборудованных кранами грузоподъемностью 10 и 20 т при шаге колонн 6 и 12 м. Документация включает пояснительную записку, схемы подбора, спецификации арматуры и закладных элементов, а также расчетные нагрузки на фундаменты.
ГОСУДАРСТВЕННЫЙ КОМИТЕТ СОВЕТА МИНИСТРОВ СССР ПО ДЕЛАМ СТРОИТЕЛЬСТВА
ТИПОВЫЕ ДЕТАЛИ И КОНСТРУКЦИИ ЗДАНИЙ И СООРУЖЕНИЙ
Серия КЭ-01-49
СБОРНЫЕ ЖЕЛЕЗОБЕТОННЫЕ КОЛОННЫ ПРЯМОУГОЛЬНОГО СЕЧЕНИЯ для одноэтажных производственных зданий
Выпуск 1
РАБОЧИЕ ЧЕРТЕЖИ КОЛОНН ДЛЯ ЗДАНИЙ С ПРОЛЕТАМИ 18 И 24 М, ОБОРУДОВАННЫХ КРАНАМИ ГРУЗОПОДЪЕМНОСТЬЮ 10 и 20 т ПРИ ШАГЕ КРАЙНИХ И СРЕДНИХ КОЛОНН 6 и 12 м
МОСКВА 1962
Выходные данные
РАЗРАБОТАНЫ: Государственным ордена Трудового Красного Знамени проектным институтом ПРОМСТРОЙПРОЕКТ ГОССТРОЯ СССР ПРИ УЧАСТИИ НИИЖБ АС и А СССР.
УТВЕРЖДЕНЫ: Государственным Комитетом Совета Министров СССР по делам строительства. Приказ №247 от 25/III 1962 г.
ЦЕНТРАЛЬНЫЙ ИНСТИТУТ ТИПОВЫХ ПРОЕКТОВ. Москва, Спартаковская ул. 2а.
СОДЕРЖАНИЕ

































































ПОЯСНИТЕЛЬНАЯ ЗАПИСКА
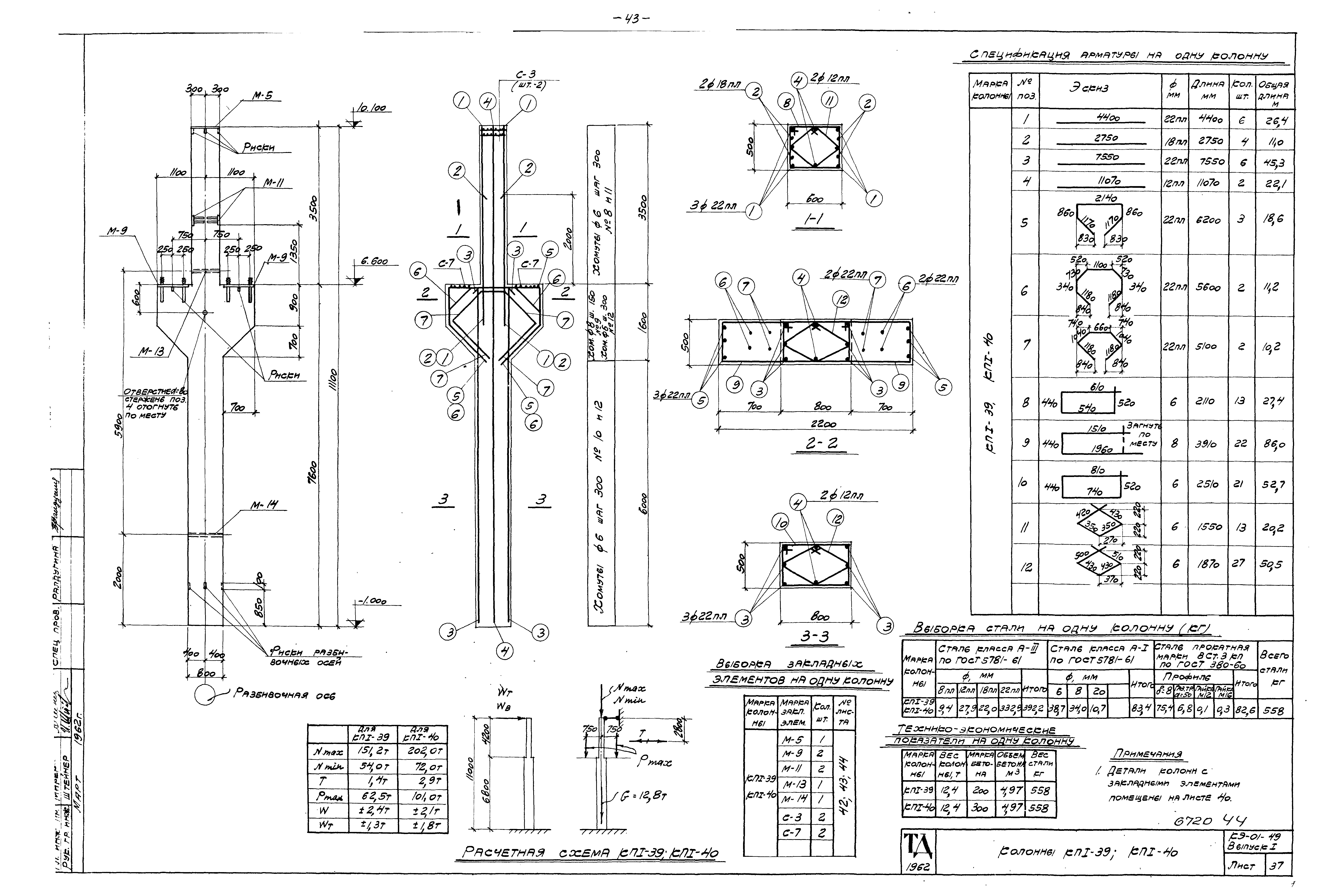
Настоящий выпуск серии КЭ-01-49 содержит рабочие чертежи сборных железобетонных колонн прямоугольного сечения, предназначенных для одноэтажных производственных зданий с пролетами 18 и 24 м, оборудованных мостовыми кранами грузоподъемностью 10 и 20 т, тяжелого и среднего режима работы, с шагом колонн 6 и 12 м.
Колонны разработаны в соответствии с «Типовыми конструкциями зданий для промышленного строительства», утвержденными Госстроем СССР приказом №490 от 15 сентября 1961 г. Колонны рассчитаны на нагрузки в соответствии с главой СНиП II-А.11-62 «Нагрузки и воздействия».
Указания по расчету
При расчете колонн приняты следующие нагрузки:
- От собственного веса конструкций покрытия — 250 кг/м²;
- От снега — 150 кг/м²;
- От крановых нагрузок — в соответствии с нормами проектирования.
Расчет колонн произведен с учетом коэффициентов перегрузки, принятых в нормах проектирования. При подборе колонн следует учитывать, что в местах примыкания вертикальных связей к колоннам предусмотрены дополнительные закладные элементы.
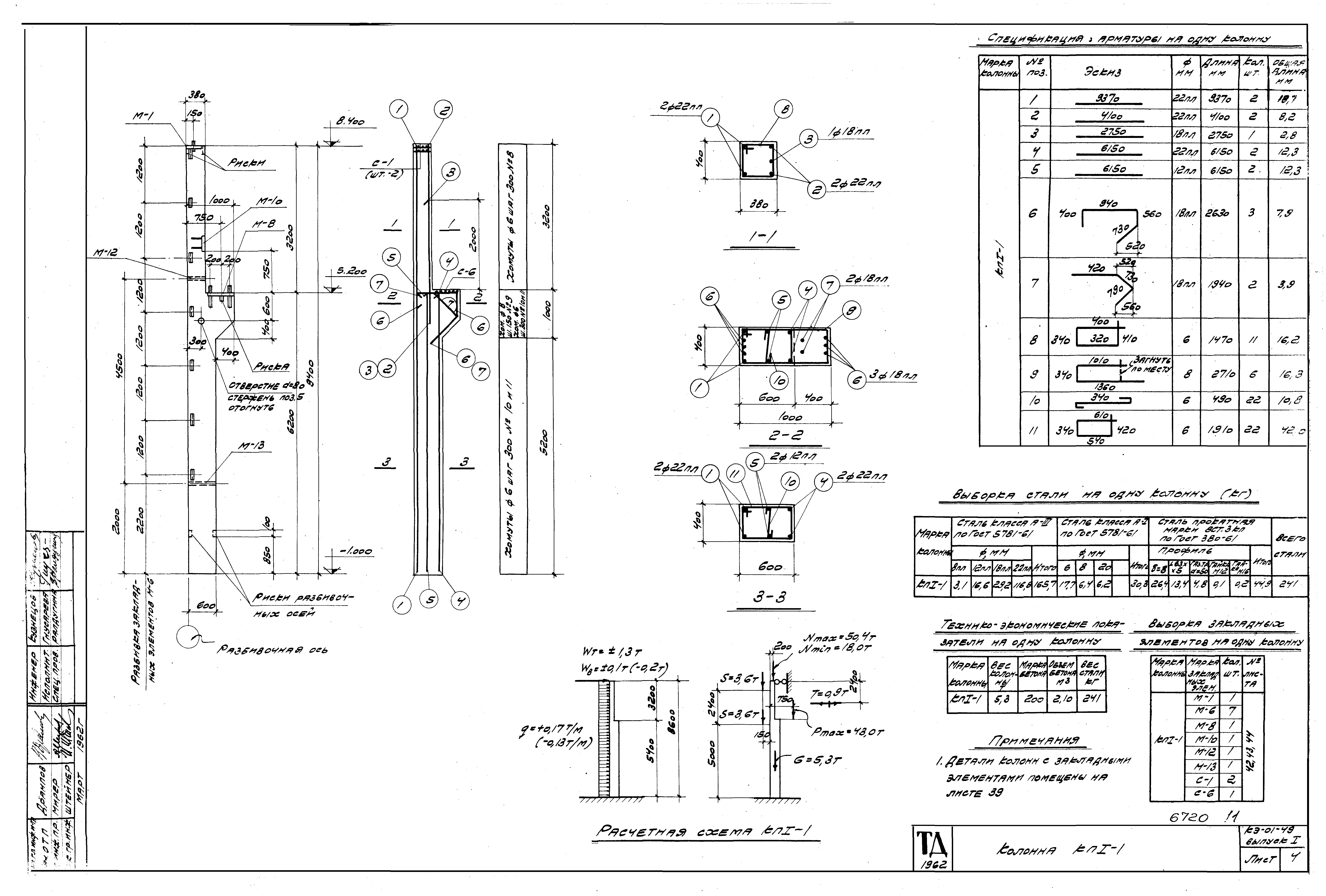
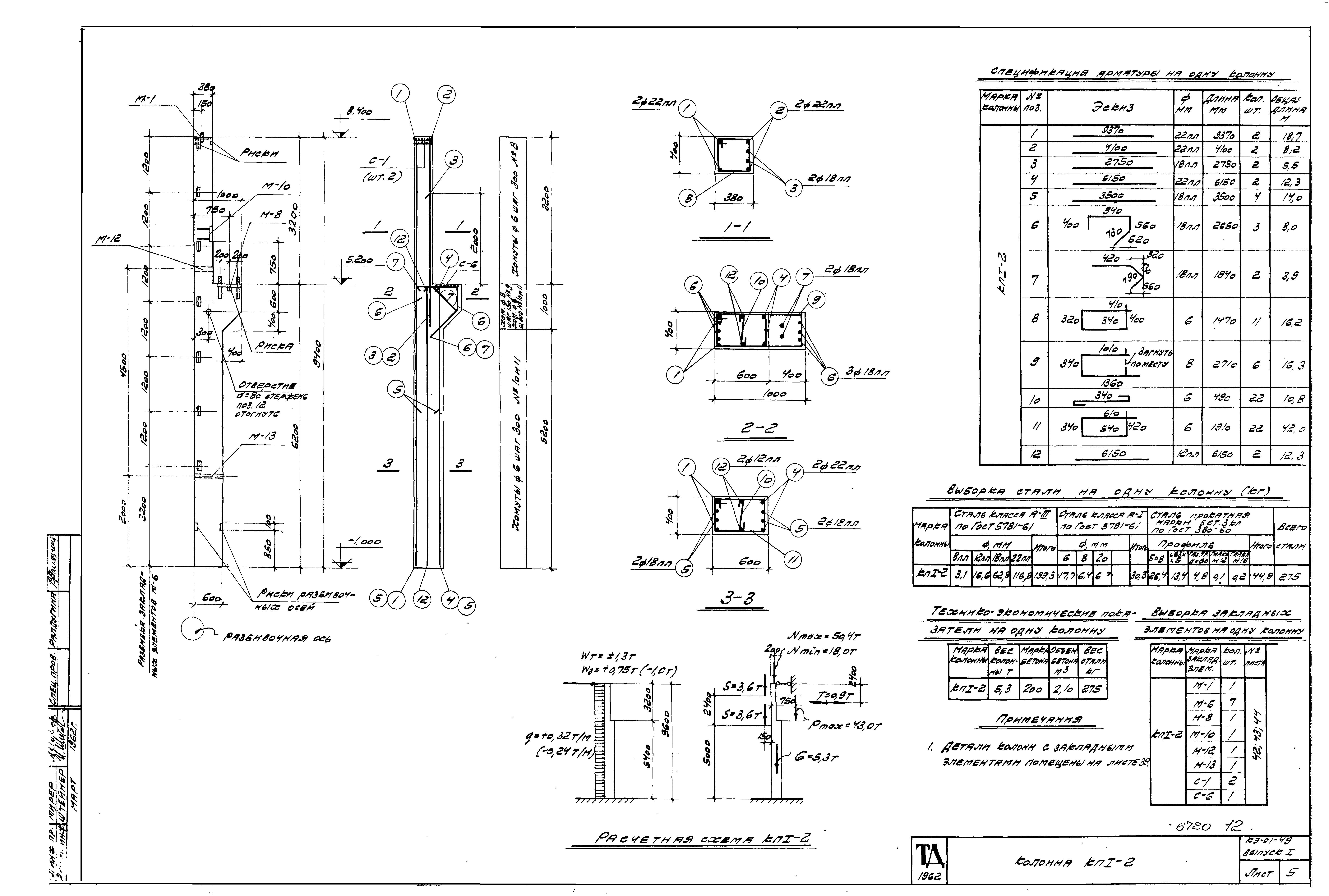
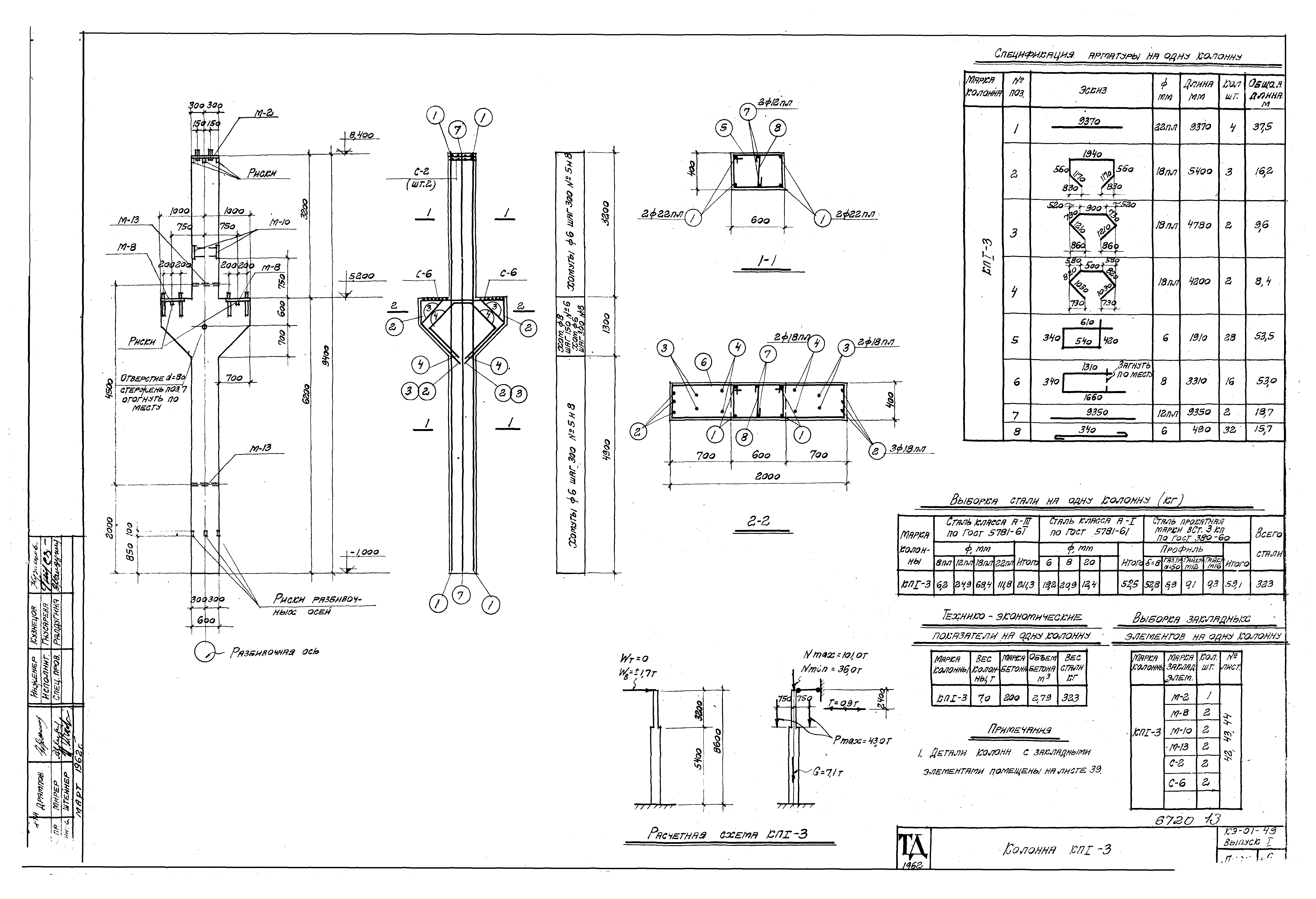
Таблица подбора колонн (пример)
| Марка колонны | Сечение, мм | Вес, т | Объем бетона, м³ | Вес стали, кг |
|---|---|---|---|---|
| КП1-1 | 200 | 3,3 | 200 | 275 |
| КП1-2 | 200 | 3,3 | 200 | 275 |
Технические требования
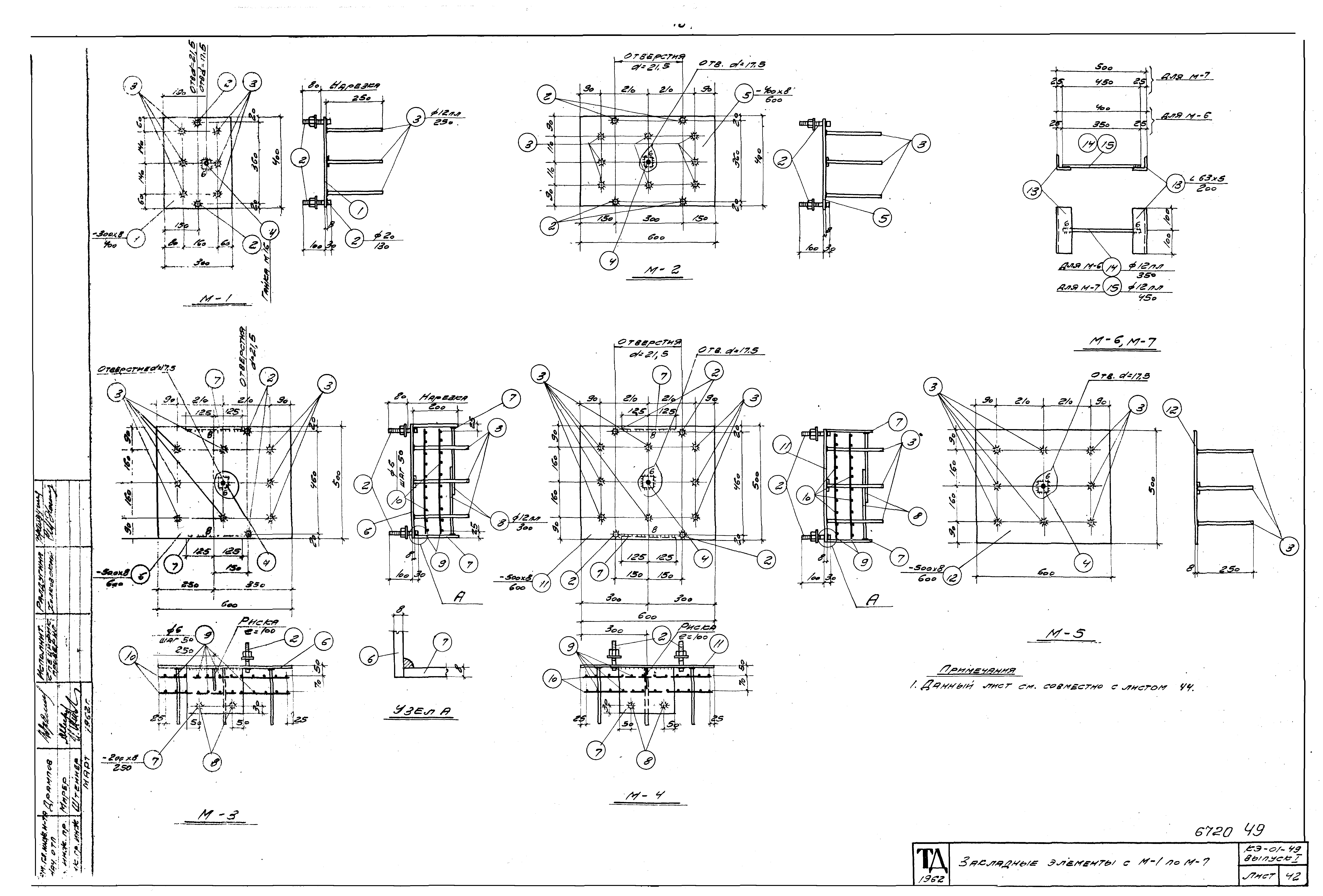
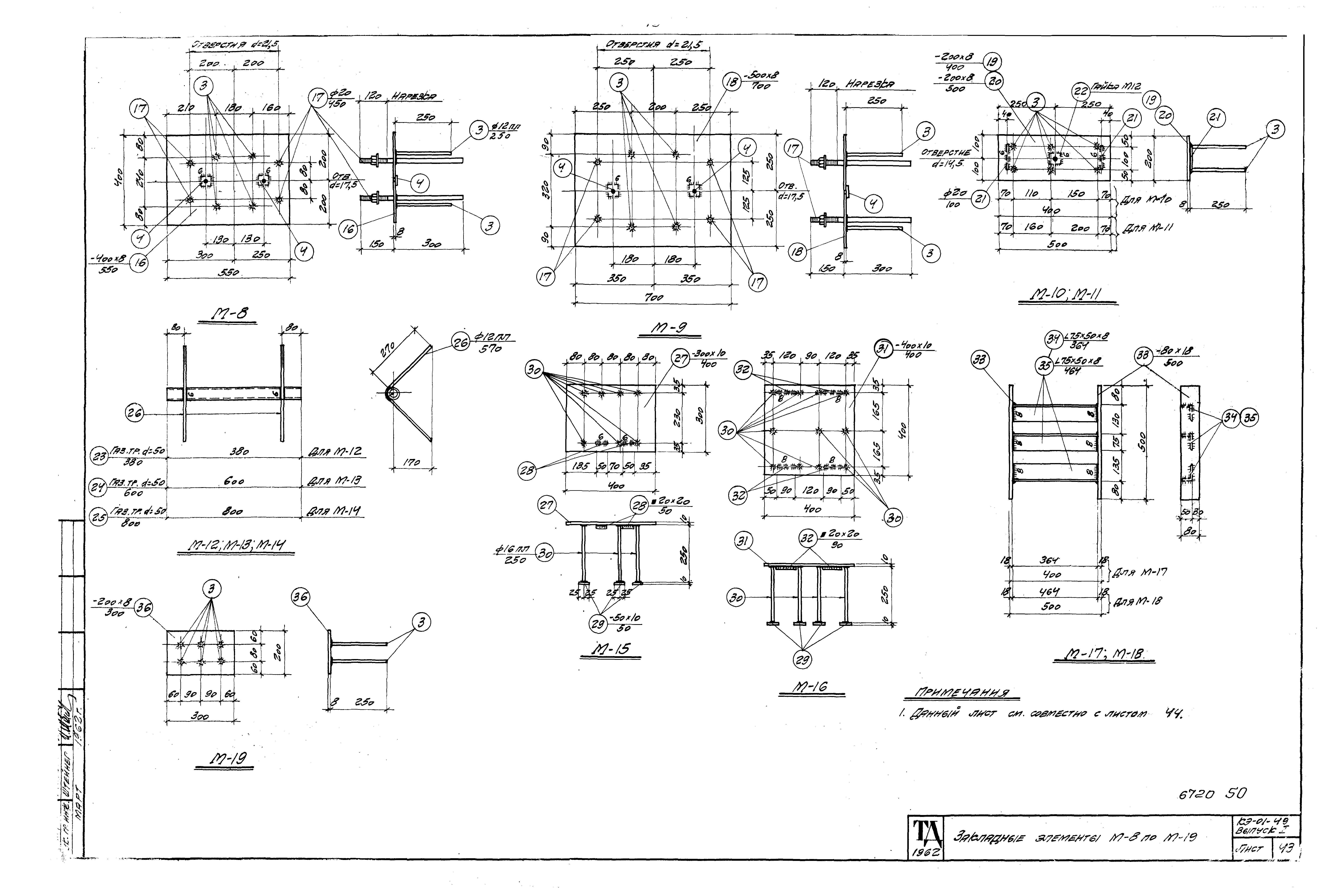
Изготовление колонн должно производиться в соответствии с «Техническими условиями на изготовление и приемку сборных железобетонных и бетонных конструкций и деталей» (ТУ 123-55). Бетон должен соответствовать проектной марке по прочности на сжатие.
Сварка закладных элементов должна производиться в соответствии с «Инструкцией по сварке соединений арматуры и закладных деталей железобетонных конструкций» (СН 109-60).
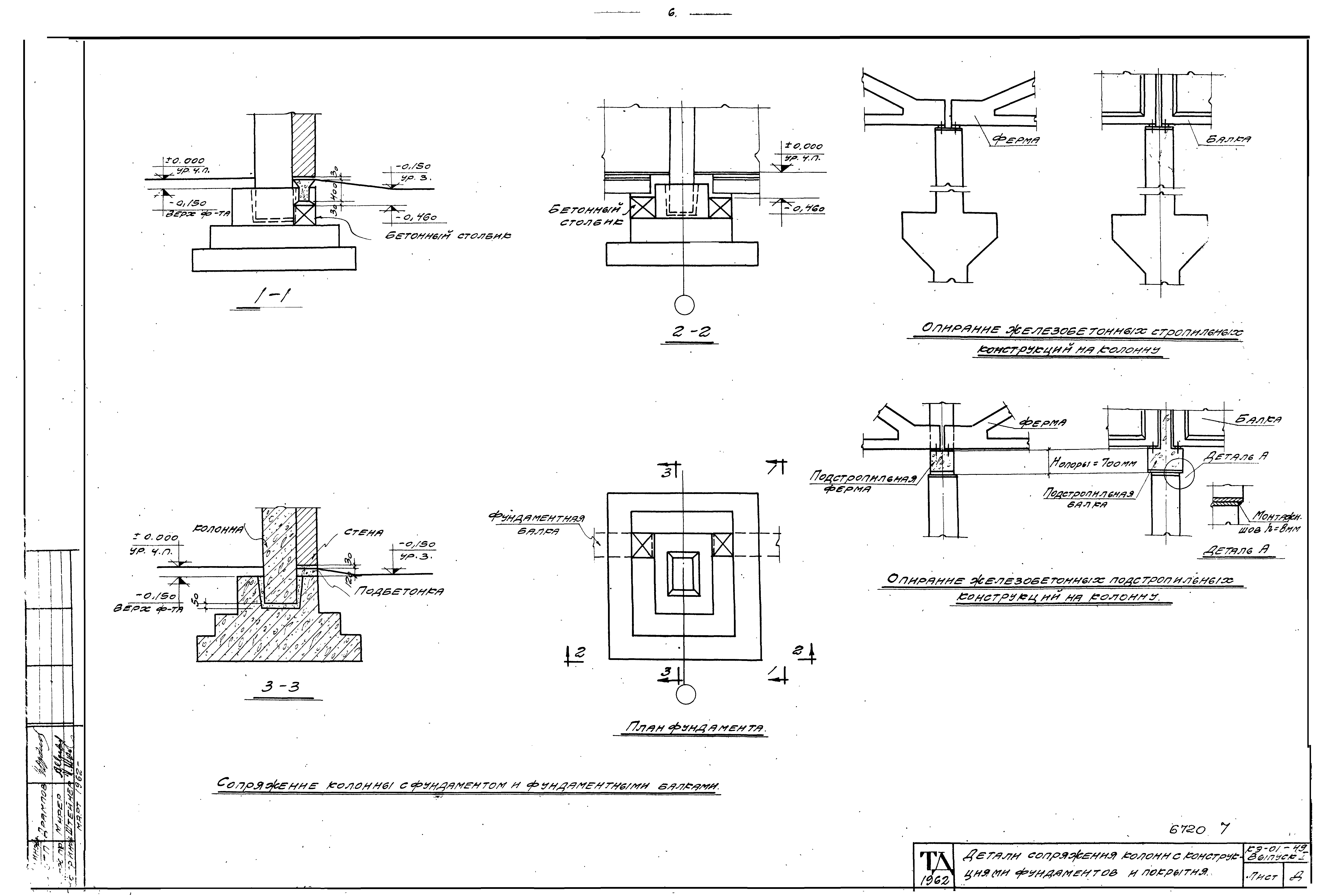
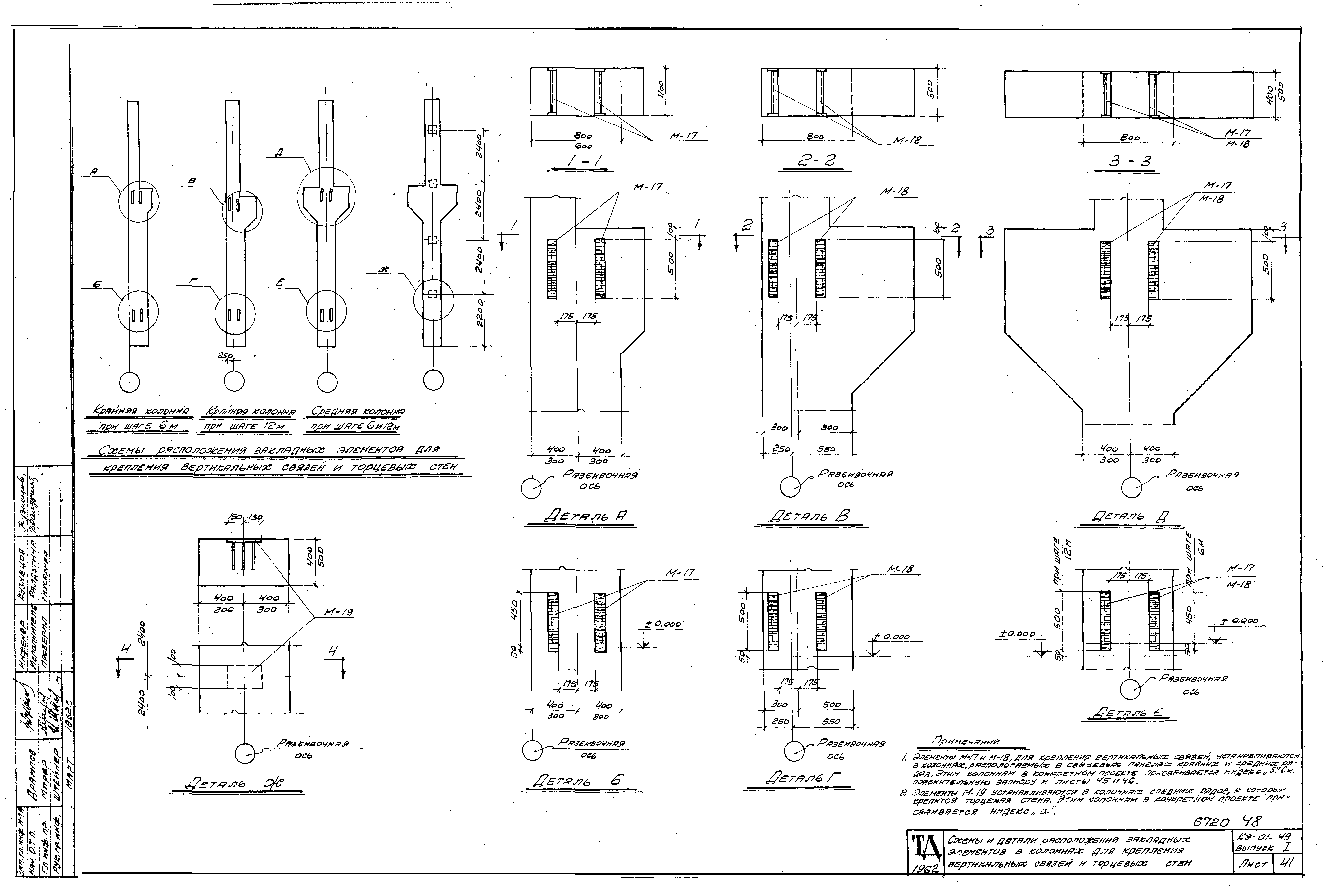
Схемы расположения закладных элементов
На листах 39-41 приведены схемы расположения закладных элементов для крепления вертикальных связей и торцевых стен. Закладные элементы маркируются М-1, М-2 и т.д. в соответствии с чертежами.
Расчетные нагрузки на фундаменты
На листах 46-50 приведены расчетные нагрузки на фундаменты для зданий с пролетами 18 и 24 м при различных шагах колонн. Данные нагрузки необходимы для проектирования фундаментов стаканного типа.
Заключение
Настоящие рабочие чертежи являются обязательными для применения при проектировании и строительстве одноэтажных производственных зданий указанного типа. Все изменения в конструкциях должны быть согласованы с проектной организацией.
