Данное учебно-методическое пособие авторов Е. О. Сучковой и Д. А. Заботина (ННГАСУ, 2019) содержит подробные указания по проведению практических занятий и выполнению ВКР по дисциплинам «Основания и фундаменты» и «Специальные вопросы расчета и проектирования оснований и фундаментов». В работе детально рассмотрены методики определения усилий, расчет продольной и поперечной арматуры, а также проверка на местное сжатие для различных сечений ростверка свайного фундамента.
- Министерство науки и высшего образования Российской Федерации
- Расчет монолитного железобетонного ростверка под стены
- Выходные данные
- Содержание
- Сводная ведомость физико-механических свойств грунтов
- Нагрузки
- Расчет и конструирование ростверка. Сечение 1-1
- а) Определение усилий в ростверке
- Продолжение расчета сечения 1-1
- б) Расчет продольной арматуры
- в) Расчет поперечной арматуры
- г) Расчет на местное сжатие
- Сечение 2-2 и 4-4
- а) Определение усилий
- б) Расчет продольной арматуры
- в) Расчет поперечной арматуры
- г) Расчет на местное сжатие
- Сечение 3-3
- а) Определение усилий
- б) Расчет продольной арматуры
- в) Расчет поперечной арматуры
- г) Расчет на местное сжатие
- Сечение 5-5
- а) Определение усилий
- б) Расчет продольной арматуры
- в) Расчет поперечной арматуры
- г) Расчет на местное сжатие
- Сечение 6-6
- а) Определение усилий
- б) Расчет продольной арматуры
- в) Расчет поперечной арматуры
- г) Расчет на местное сжатие
- Приложения
- Таблица 1. Значения начального модуля упругости бетона
- Таблица 2. Упругая характеристика кладки
- Таблица 3. Расчетное сопротивление сжатию кладки
- Таблица 5. Расчетные сопротивления растяжению продольной арматуры
- Таблица 6. Расчетные сопротивления бетона
- Таблица 7. Расчетные значения сопротивления поперечной арматуры
- Таблица 8. Моменты в неразрезном свайном ростверке
- Список использованных источников
Министерство науки и высшего образования Российской Федерации
Федеральное государственное бюджетное образовательное учреждение высшего образования «Нижегородский государственный архитектурно-строительный университет»
Е. О. Сучкова, Д. А. Заботин
Расчет монолитного железобетонного ростверка под стены
Учебно-методическое пособие для практических занятий и выполнения ВКР(б) студентам направления подготовки 08.03.01 «Строительство», профиль Промышленное и гражданское строительство и специальности 08.05.01 Строительство уникальных зданий и сооружений по дисциплине «Основания и фундаменты», «Специальные вопросы расчета и проектирования оснований и фундаментов»
Нижний Новгород, ННГАСУ, 2019
Выходные данные
УДК 624.156.4(0758)
Сучкова Е. О. Расчет монолитного железобетонного ростверка под стены [Текст]: учеб.- метод. пос / Е. О. Сучкова, Д. А. Заботин; Нижегор. гос. архитектур. — строит. ун — т. — Нижний Новгород: ННГАСУ, 2019. – 39 с.
В пособии приведены указания по проведению практических занятий по дисциплине «Основания и фундаменты», «Специальные расчеты проектирования и расчета оснований и фундаментов», а также рассмотрен вариант расчета ростверка для выполнения ВКР(б).
Предназначено для студентов ННГАСУ по направлению подготовки 08.03.01 Строительство, профиль Промышленное и гражданское строительство и по специальности 08.05.01 Строительство уникальных зданий и сооружений.
© Е. О. Сучкова, Д. А. Заботин, 2019
© ННГАСУ, 2019
Содержание
- Задание — 4
- Расчет и конструирование ростверка — 9
- Схема ростверка — 28
- Схемы каркасов — 29
- Спецификация каркасов — 32
- Приложения — 33
- Список использованных источников — 39


Сводная ведомость физико-механических свойств грунтов
| № | Характеристики | Обоз. | Ед. изм. | ИГЭ-1 | ИГЭ-2 | ИГЭ-3 |
|---|---|---|---|---|---|---|
| — | Тип грунта | — | — | Суглинок | Супесь | песок мелкий |
| — | Разновидность грунта | — | — | текучий | пластичная | средней плотности сложения, влажный |
| А. Нормативные характеристики: | ||||||
| 1 | Плотность грунта | ρ | г/см3 | 1,51 | 1,72 | 1,83 |
| 2 | Плотность частиц | ρs | г/см3 | 2,61 | 2,68 | 2,66 |
| 3 | Природная влажность | W | % | 25 | 18,5 | 13 |
| 4 | Влажность на границе раскатывания | Wp | % | 14 | 16 | — |
| 5 | Влажность на границе текучести | WL | % | 23 | 21 | — |
| 2. Производные: | ||||||
| 6 | Число пластичности | Jp | % | 9 | 5 | — |
| 7 | Показатель текучести | JL | д. ед. | 1,222 | 0,5 | — |
| 8 | Плотность сухого грунта | ρd | г/см3 | 1,21 | 1,45 | 1,62 |
| 9 | Коэффициент пористости | e | д. ед. | 1,161 | 0,846 | 0,643 |
| 10 | Пористость | n | д. ед. | 0,537 | 0,458 | 0,391 |
| 11 | Степень влажности | Sr | д.ед. | 0,562 | 0,586 | 0,538 |
| Б. Расчетные характеристики: | ||||||
| 12 | Удельный вес грунта | γII | кН/м3 | 15,0 | 17,0 | 18,0 |
| 13 | Угол внутреннего трения | φII | ° | 11 | 18 | 32 |
| 14 | Удельное сцепление | СII | кПа | 10 | 9 | — |
| 15 | Модуль деформации | E | кПа | 3737,79 | 8401 | 26667 |
| 16 | Расчетное сопротивление | R0 | кПа | Не норм. | Не нормируется | 200 |
Нагрузки
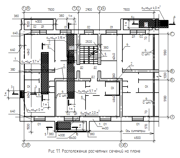
Назначение расчетных сечений и определение грузовых площадей производим в сечениях, где будут действовать разные нагрузки (рис. 1.1.). Нагрузки собираются на 1 погонный метр на отметке -0,300.
| Сечение | n0,II (кН/м) | n0,I (кН/м) |
|---|---|---|
| 1-1 | 406,63 | 472,91 |
| 2-2 | 471,75 | 565,28 |
| 3-3 | 289,79 | 318,77 |
| 4-4 | 471,75 | 565,28 |
| 5-5 | 255,10 | 297,66 |
| 6-6 | 345,46 | 414,13 |
Расчет и конструирование ростверка. Сечение 1-1
Требуется произвести расчет и конструирование ростверка свайного фундамента под стену здания. Ростверк монолитный железобетонный шириной в = 1,12 м и высотой h = 0,5 м. На ростверк опирается фундаментная стенка из блоков ФБС.24.6.6-Т, ФБС.12.6.6-Т и ФБС.9.6.6-Т; ширина стенки вст = 60 см. Класс бетона ростверка В15 и стеновых блоков В7,5. Сваи сечением 30 х 30 см (d = 0,3 м) с шахматным расположением с расстоянием между осями свай а = 0,65 м. Расчетная нагрузка от стены составляет n = 472,91 кН/м (в расчетах n = q).
а) Определение усилий в ростверке
Нагрузка от вышележащей кладки передается на ростверк по треугольной эпюре с максимальной ординатой над осью свай (рис.5.1). Длина полуоснования эпюры нагрузки определяется по формуле:
λ = 3,14 * √(Eb * I / Eb_кладки * вст) = 3,14 * √(240 * 10^3 * 0,0117 / 85,8 * 10^3 * 0,6) = 1,19 м
где Eb — модуль упругости бетона ростверка; I – момент инерции ростверка (I = b * h^3 / 12 = 1,12 * 0,5^3 / 12 = 0,0117 м^4); Eb_кладки – модуль упругости кладки (Eb_кладки = α * k * R = 1500 * 2 * 2860 = 85,8 * 10^3 кПа).
Величина ординаты эпюры нагрузки над гранью сваи: q_max = (q * L_расч) / λ = 472,91 * 0,37 / 1,19 = 147,04 кН.
Продолжение расчета сечения 1-1
Так как выполняется условие λ > L_св (1,19 м > 0,35 м), расчетная схема соответствует рис. 5.1.
Расчетные моменты: M_оп = -(q * L_расч^2) / 12 = -(472,91 * 0,37^2) / 12 = -5,40 кН*м; M_пр = (q * L_расч^2) / 24 = 2,70 кН*м.
Поперечная сила: Q = (q * L_расч) / 2 = 87,49 кН.
б) Расчет продольной арматуры
Принимаем рабочую высоту h0 = 0,43 м. На опоре: ξ = 1 — √(1 — 2 * α_m) = 0,003. Площадь арматуры: As = M_оп / (Rs * (h0 — 0,5 * ξ * h0)) = 5,40 * 10^3 / (350 * 430) = 35,93 мм^2.
Принимаем 8 ø12 А400 с As = 905 мм^2. Фактический процент армирования: 905 / (1120 * 430) * 100 = 0,19%.
в) Расчет поперечной арматуры
Проверка: Q = 87,49 кН < Q_b = 0,6 * Rbt * b * h0 = 0,6 * 750 * 1,12 * 0,43 = 216,72 кН. Расчет не требуется. Принимаем конструктивно ø6 А400 с шагом 200 мм.
г) Расчет на местное сжатие
J = 727,55 кН < ψ * Rb_loc * A_loc = 1 * 13090 * 0,09 = 1178,1 кН. Прочность достаточна.
Сечение 2-2 и 4-4
Ширина в = 1,21 м, высота h = 0,5 м. Ширина стенки вст = 40 см. Расстояние между осями свай а = 0,55 м. Нагрузка n = 565,28 кН/м.
а) Определение усилий
λ = 3,14 * √(240 * 10^3 * 0,0126 / 85,8 * 10^3 * 0,4) = 1,40 м.
q_max = (565,28 * 0,26) / 1,40 = 104,98 кН.
M_оп = -3,18 кН*м; M_пр = 1,59 кН*м; Q = 73,49 кН.
б) Расчет продольной арматуры
As_оп = 21,15 мм^2; As_пр = 10,57 мм^2. Принимаем 8 ø12 А400 (As = 905 мм^2). Процент армирования: 0,17%.
в) Расчет поперечной арматуры
Q = 73,49 кН < Q_b = 234,14 кН. Расчет не требуется. Принимаем конструктивно ø6 А400 с шагом 150 мм.
г) Расчет на местное сжатие
J = 1027,78 кН < 1116,9 кН. Прочность достаточна.
Сечение 3-3
Ширина в = 0,6 м, высота h = 0,5 м. Ширина стенки вст = 60 см. Расстояние между осями свай а = 1,0 м. Нагрузка n = 318,77 кН/м.
а) Определение усилий
λ = 3,14 * √(240 * 10^3 * 0,0063 / 85,8 * 10^3 * 0,6) = 0,97 м.
q_max = (318,77 * 0,74) / 0,97 = 243,19 кН.
M_оп = -14,55 кН*м; M_пр = 7,27 кН*м; Q = 117,94 кН.
б) Расчет продольной арматуры
As_оп = 97,41 мм^2; As_пр = 48,50 мм^2. Принимаем 5 ø12 А400 (As = 565 мм^2). Процент армирования: 0,22%.
в) Расчет поперечной арматуры
Q = 117,94 кН > Q_b = 116,1 кН. Расчет хомутов необходим. Принимаем шаг хомутов S = 14 см.
г) Расчет на местное сжатие
J = 318,77 кН < 1354,05 кН. Прочность достаточна.
Сечение 5-5
Ширина в = 0,5 м, высота h = 0,5 м. Ширина стенки вст = 40 см. Расстояние между осями свай а = 1,05 м. Нагрузка n = 297,66 кН/м.
а) Определение усилий
λ = 3,14 * √(240 * 10^3 * 0,0052 / 85,8 * 10^3 * 0,4) = 1,04 м.
q_max = (297,66 * 0,79) / 1,04 = 226,11 кН.
M_оп = -15,48 кН*м; M_пр = 7,74 кН*м; Q = 117,58 кН.
б) Расчет продольной арматуры
As_оп = 103,90 мм^2; As_пр = 51,69 мм^2. Принимаем 4 ø12 А400 (As = 452 мм^2). Процент армирования: 0,21%.
в) Расчет поперечной арматуры
Q = 117,58 кН > Q_b = 96,75 кН. Расчет хомутов необходим. Принимаем шаг хомутов S = 14 см.
г) Расчет на местное сжатие
J = 283,49 кН < 1384,65 кН. Прочность достаточна.
Сечение 6-6
Ширина в = 1,0 м, высота h = 0,5 м. Ширина стенки вст = 40 см. Расстояние между осями свай а = 0,75 м. Нагрузка n = 414,13 кН/м.
а) Определение усилий
λ = 3,14 * √(240 * 10^3 * 0,0104 / 85,8 * 10^3 * 0,4) = 1,31 м.
q_max = (414,13 * 0,47) / 1,31 = 148,58 кН.
M_оп = -7,62 кН*м; M_пр = 3,81 кН*м; Q = 97,32 кН.
б) Расчет продольной арматуры
As_оп = 50,76 мм^2; As_пр = 25,34 мм^2. Принимаем 8 ø12 А400 (As = 905 мм^2). Процент армирования: 0,21%.
в) Расчет поперечной арматуры
Q = 97,32 кН < Q_b = 193,5 кН. Расчет не требуется. Принимаем конструктивно ø6 А400 с шагом 150 мм.
г) Расчет на местное сжатие
J = 552,17 кН < 1239,3 кН. Прочность достаточна.





Приложения
Таблица 1. Значения начального модуля упругости бетона
| Класс бетона | В10 | В15 | В20 | В25 | В30 | В35 | В40 |
|---|---|---|---|---|---|---|---|
| Eb, МПа · 10^-3 | 19,0 | 24,0 | 27,5 | 30,0 | 32,5 | 34,5 | 36,0 |
Таблица 2. Упругая характеристика кладки
| Вид кладки | α (марка 25-200) |
|---|---|
| 1. Из крупных блоков (тяжелый бетон) | 1500 |
| 2. Из камней (тяжелый бетон) | 1500 |
| 3. Из крупных блоков (пористые заполнители) | 1000 |
| 4. Из крупных блоков (ячеистые автоклавные) | 750 |
Таблица 3. Расчетное сопротивление сжатию кладки
| Класс бетона | Марка блока | R (МПа) при растворе 200 | R (МПа) при растворе 100 | R (МПа) при растворе 25 |
|---|---|---|---|---|
| В15 | 200 | 5,4 | 5,0 | 4,0 |
| В7,5 | 100 | — | 3,1 | 2,4 |
Таблица 5. Расчетные сопротивления растяжению продольной арматуры
| Класс арматуры | Rs (МПа) |
|---|---|
| А240 | 210 |
| А400 | 350 |
| А500 | 435 |
Таблица 6. Расчетные сопротивления бетона
| Вид сопротивления | В10 | В15 | В20 | В25 |
|---|---|---|---|---|
| Сжатие осевое Rb | 6,0 | 8,5 | 11,5 | 14,5 |
| Растяжение осевое Rbt | 0,56 | 0,75 | 0,90 | 1,05 |
Таблица 7. Расчетные значения сопротивления поперечной арматуры
| Класс арматуры | Rsw (МПа) |
|---|---|
| А240 | 170 |
| А400 | 280 |
| А500 | 300 |
Таблица 8. Моменты в неразрезном свайном ростверке
| № | Схема | M_оп | M_пр |
|---|---|---|---|
| 1 | λ > Lсв/2 | -(q*L^2)/12 | (q*L^2)/12 |
| 4 | λ ≥ Lсв | -(q*L^2)/12 | (q*L^2)/24 |
Список использованных источников
- ГОСТ 25100-95. Грунты. Классификация.
- ГОСТ 13579-78. Блоки бетонные для стен подвалов.
- ГОСТ 13580-85. Железобетонные плиты тяжелого бетона.
- СП 22.13330.2011. Основания зданий и сооружений.
- СП 24.13330.2011. Свайные фундаменты.
- СП 63.13330.2012. Бетонные и железобетонные конструкции.
- СП 15.13330.2012. Каменные и армокаменные конструкции.
- СП 20.13330.2011. Нагрузки и воздействия.
- А. А. Кочеткова, Е. О. Сучкова. Расчет и конструирование свайных фундаментов.
