Для армирования балки принята арматура класса А500 с расчетным сопротивлением Rs = 435 МПа и бетон класса В20. αm = M1 / (Rb∙bf’∙h0^2) = 103,56 / (11,5∙10^3∙2,05∙0,365^2) = 0,032
Проверка условия ξ < ξR: ξ = 1 — √1 — 2∙αm = 1 — √1 — 2∙0,032 = 0,032; ξR = 0,8 / (1 + Rs/700) = 0,8 / (1 + 435/700) = 0,493. Условие выполняется: 0,032 < 0,493, следовательно, арматура в сжатой зоне бетона не требуется.
Требуемая площадь продольной рабочей арматуры: As, треб = (bf’ ∙ ξ ∙ h0 ∙ Rb) / Rs = (2050∙0,032∙365∙11,5) / 435 = 633,01 мм2. По сортаменту арматуры принято 3 стержня ∅18 А500 с расчетной площадью As = 763 мм2, схема армирования представлена на рис. 1.4.

На первой опоре: αm = M2 / (Rb∙b∙h0^2) = 81,37 / (11,5∙10^3∙0,2∙0,365^2) = 0,265. Проверка условия ξ < ξR: ξ = 1 — √1 — 2∙αm = 1 — √1 — 2∙0,265 = 0,314. Условие выполняется: 0,314 < 0,493, следовательно, арматура в сжатой зоне бетона не требуется. Требуемая площадь продольной рабочей арматуры: As, треб = (b∙ξ∙h0∙Rb) / Rs = (200∙0,314∙365∙11,5) / 435 = 605,98 мм2.
По сортаменту арматуры принято 3 стержня ∅18 А500 с расчетной площадью As = 763 мм2, схема армирования представлена на рис. 1.5.

Средний пролет балки: αm = M2 / (Rb∙bf’∙h0^2) = 81,37 / (11,5∙10^3∙2,05∙0,365^2) = 0,023. Проверка условия ξ < ξR: ξ = 1 — √1 — 2∙αm = 1 — √1 — 2∙0,023 = 0,023. Условие выполняется: 0,023 < 0,493, следовательно, арматура в сжатой зоне бетона не требуется. Требуемая площадь арматуры: As, треб = (bf' ∙ ξ ∙ h0 ∙ Rb) / Rs = (2050∙0,023∙365∙11,5) / 435 = 454,97 мм2. По сортаменту арматуры принято 2 стержня ∅18 А500 с расчетной площадью As = 509 мм2, схема армирования представлена на рис. 1.6.

На средней опоре: αm = M3 / (Rb∙b∙h0^2) = 71,84 / (11,5∙10^3∙0,2∙0,365^2) = 0,234
Проверка условия ξ < ξR: ξ = 1 — √1 — 2∙αm = 1 — √1 — 2∙0,234 = 0,27. Условие выполняется: 0,27 < 0,493, следовательно, арматура в сжатой зоне бетона не требуется. Требуемая площадь арматуры: As, треб = (b ∙ ξ ∙ h0 ∙ Rb) / Rs = (200∙0,27∙365∙11,5) / 435 = 521,07 мм2. По сортаменту арматуры принято 3 стержня ∅18 А500 с расчетной площадью As = 763 мм2, схема армирования представлена на рис. 1.7.

- 1.4.2 Расчет наклонного сечения
- 2 РАСЧЕТ СБОРНОГО БАЛОЧНОГО ПЕРЕКРЫТИЯ
- 2.1 Компоновка конструктивной схемы
- 2.2 Определение расчетных усилий, нормативных и расчетных характеристик бетона и арматуры
- 2.3 Расчет плиты по предельным состояниям I группы
- 2.3.1 Расчет прочности нормальных сечений
- 2.3.2 Проверка прочности сжатой полосы между наклонными трещинами
- 2.3.3 Расчёт наклонного сечения на действие поперечной силы
1.4.2 Расчет наклонного сечения
Поперечное армирование элемента предварительно назначают с учетом конструктивных требований СП 63.13330.2018 и далее проверяют и уточняют расчетом по наклонным сечениям на действие поперечной силы.
Из условия свариваемости диаметр поперечной арматуры dsw принят не менее 0,25 диаметра продольной арматуры ds и не менее 6 мм, шаг поперечной арматуры определен из условий: S1 ≤ 1/2 h0 = 180 мм; S1 ≤ 300 мм (шаг на опоре); S2 ≤ 3/4 h0 = 270 мм; S2 ≤ 500 мм (шаг в пролете). При этом шаг поперечной арматуры не должен превышать максимально допустимого: Ssw = (Rbt∙b ∙ h0^2) / Qmax = (0,9∙200∙365^2) / 122,59∙10^3 = 195,62 мм
Принято 3 стержня диаметром dsw = 6 мм, с суммарной площадью Asw = 85 мм2 с шагом на опоре S1 = 150 мм и шагом S2 = 250 мм.
Проверка прочности по сжатой полосе между наклонными сечениями: 0,3∙Rb ∙ b ∙ h0 = 0,3∙11,5∙10^3∙0,2∙0,365 = 251,85 кН > Qmax = 195,62 кН, т.е. прочность по сжатой зоне обеспечивается.
Проверка прочности наклонного сечения: Q ≤ Qb + Qsw, где Q – максимальная поперечная сила в наклонном сечении на опоре; Qb – поперечная сила, воспринимаемая бетоном в наклонном сечении; Qsw – поперечная сила, воспринимаемая хомутами в наклонном сечении. Расчет производится при не выгоднейшей длине проекции наклонного сечения. Для определения проекции наклонного сечения предварительно вычисляют параметр Mb. Если qsw ≥ 0,25∙Rbt∙b, то Mb = 1,5∙Rbt∙b∙h0^2; Если qsw < 0,25∙Rbt∙b, то Mb = 6∙h0^2∙qsw, где qsw = (Rsw∙Asw) / Ssw – интенсивность поперечного армирования; где Asw – площадь всех поперечных стержней в одном сечении элемента; Rsw = 170 МПа – расчетное сопротивление поперечной арматуры растяжению (табл. 6.15 СП 63.13330.2018); Ssw – шаг поперечных стержней; Rbt – расчетное сопротивление бетона осевому растяжению, равное 0,9 МПа.
Т.к. qsw = (170∙10^3∙85∙10^-6) / 0,15 = 96,33 кН/м ≥ 0,25∙0,9∙10^3∙0,2 = 45 кН/м, то Mb = 1,5∙Rbt∙b∙h0^2 = 1,5∙0,9∙10^3 ∙ 0,2∙0,365^2 = 35,97 кН∙м.
При действии на элемент равномерно распределенной нагрузки длину проекции наклонного сечения принимают: C = √ (Mb / q1), но, если (2∙h0) / (1 — 0,5∙qsw / (Rbt∙b)) > √ (Mb / q1) или qsw / (Rbt∙b) > 2, то C = √ (Mb / (0,75∙qsw + q1)). При этом в обоих случаях значение C принимают не более 3h0. C ≥ h0 = 0,365 м; C ≤ 3 h0 = 1,095 м, где q1 = q — 0,5∙V = 15,17 — 0,5∙10 = 10,17 кН/м
Т.к. (2∙h0) / (1 — 0,5∙qsw / (Rbt∙b)) = (2∙0,365) / (1 — 0,5∙96,33 / (0,9∙10^3∙0,2)) = 1 м < √ (Mb / q1) = √ (35,97 / 10,17) = 1,88 м; qsw / (Rbt∙b) = 96,33 / (0,9∙10^3∙0,2) = 0,54 < 2, то C = √ (Mb / q1) = √ (35,97 / 10,17) = 1,88 м. Принято C = 0,5 м.
Поперечная сила в конце наклонного сечения определена по формуле: Q = Qmax — q1∙C = 122,59 — 10,17∙0,5 = 117,505 кН. Усилие Qb определено по формуле: Qb = Mb / C = 35,97 / 0,5 = 71,94 кН. При этом должно соблюдаться следующее условие: Qb ≥ 0,5∙Rbt∙b∙h0 = 0,5∙0,9∙10^3∙0,2∙0,365 = 32,85 кН; Qb ≤ 2,5∙Rbt∙b∙h0 = 2,5∙0,9∙10^3∙0,2∙0,365 = 164,25 кН. Qsw = 0,75∙qsw∙C0, где C0 принимают равным C, но не менее h0 и не более 2 h0. C0 ≥ h0 = 0,365; C0 ≤ 2 h0 = 0,73, C0 принято равным 0,73 м. Qsw = 0,75∙96,33∙0,73 = 52,75 кН. Проверка прочности наклонного сечения: Q ≤ Qb + Qsw; 117,505 кН ≤ 71,94 + 52,73 = 124,69 кН; условие выполняется. Подобранные стержни обеспечат необходимую прочность.
2 РАСЧЕТ СБОРНОГО БАЛОЧНОГО ПЕРЕКРЫТИЯ
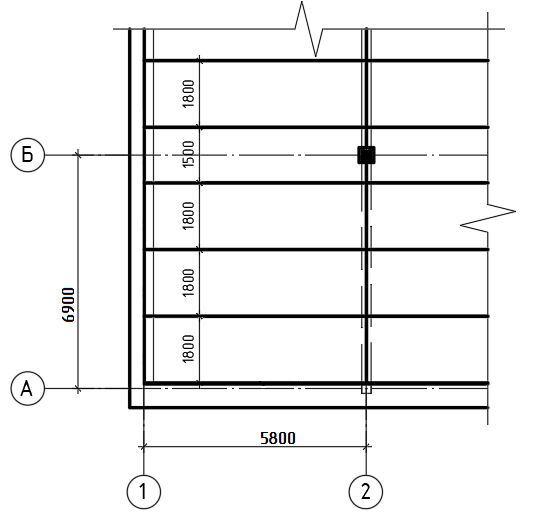
Данные для проектирования: Шаг продольных колонн – 6,9 м; Шаг поперечных колонн – 5,8 м; Временная нагрузка ρn = 10 кПа; Класс бетона – В30; Класс напрягаемой арматуры – А800; Способ натяжения на упоры – механический; Условия твердения – естественные; Тип плиты перекрытия – ребристая; Влажность окружающей среды – 70%.
2.1 Компоновка конструктивной схемы
При компоновке конструктивной схемы (рис. 2.1) принято поперечное направление ригелей.

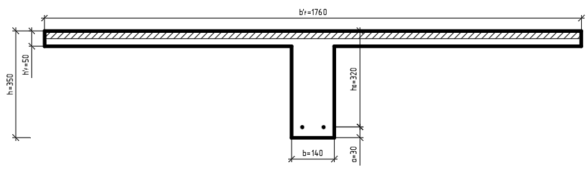
Расчетная ширина плиты: bf’ = Bf’ — 40 = 1800 — 40 = 1760 мм. Расчетный пролет плиты при опирании на ригель поверху: l0 = l — b/2 = 5800 — 250/2 = 5675 мм = 5,675 м. Геометрические размеры ребристой плиты представлены на рис. 2.2.

2.2 Определение расчетных усилий, нормативных и расчетных характеристик бетона и арматуры
Сбор нагрузок на 1 м2 перекрытия (табл. 2.1).
| Наименование нагрузок | Нормативная нагрузка, кН/м2 | Коэффициент надежности по нагрузке γf | Расчетная нагрузка, кН/м2 |
|---|---|---|---|
| Постоянная нагрузка: Собственный вес плиты: δпривед х ρ = 0,105 м х 25 кН/м3; Конструкция пола: керамическая плитка – 7 мм, цементно-песчаная стяжка – 35 мм | 2,63; 0,126; 0,63 | 1,1; 1,2; 1,3 | 2,89; 0,15; 0,82 |
| Итого | 3,39 | — | 3,86 |
| Временная нагрузка — кратковременная — длительная | 10; 6,5; 3,5 | 1,2 | 12; 7,8; 4,2 |
| Итого (постоянная + длительная) | 13,39 | — | 15,86 |
Расчетные нагрузки на 1 м длины при ширине плиты 1,8 м с учетом коэффициента надежности по назначению здания γn = 1: Для расчетов по I группе предельных состояний: q = q(кН/м2)∙Bf’∙γn = 15,86∙1,8∙1 = 28,55 кН/м. Для расчетов по II группе предельных состояний: qtot = qtot(кН/м2)∙Bf’∙γn = 13,39∙1,8∙1 = 12,41 кН/м; ql = ql(кН/м2)∙Bf’∙γn = 6,89∙1,8∙1 = 12,41 кН/м.
Расчетные усилия: Для расчетов по I группе предельных состояний: M = q ∙ l0^2 / 8 = 28,55∙5,675^2 / 8 = 114,94 кН∙м; Q = q∙l0 / 2 = 28,55∙5,675 / 2 = 81,01 кН/м. Для расчетов по II группе предельных состояний: Mtot = qtot∙l0^2 / 8 = 24,10∙5,675^2 / 8 = 97,02 кН∙м = 97,02∙10^6 Н∙мм; Ml = ql∙l0^2 / 8 = 12,41∙5,675^2 / 8 = 49,46 кН∙м = 49,46∙10^6 Н∙мм.
Прочностные характеристики бетона и используемой арматуры: В30: Rb = 17 МПа, Eb = 32,5∙10^3 МПа, Rbt = 1,15 МПа, Rb,n = Rb,ser = 22 МПа, Rbt,ser = 1,75 МПа. А800: Rs = 695 МПа, Es = 2∙10^5 МПа, Rsn = 800 МПа.
2.3 Расчет плиты по предельным состояниям I группы
2.3.1 Расчет прочности нормальных сечений
Приведенное сечение ребристой плиты (рис. 2.3).

M = 114,94 кН∙м; Q = 81,01 кН. Проверка положения нейтральной оси в приведенном сечении: Rb∙bf’∙hf’∙(h0 — hf’/2) ≥ M; 17∙10^3∙1,76∙0,05∙(0,32 — 0,05/2) = 441,32 кН∙м > 114,94 кН∙м, т.е. граница сжатой зоны проходит в полке и расчёт производим как прямоугольного сечения.
Подбор сечения поперечной рабочей арматуры сетки: αm = M / (Rb∙bf’∙h0^2) = 114,94 / (17∙10^3∙1,76∙0,32^2) = 0,03. Проверка условия ξ < ξR: ξ = 1 — √1 — 2∙αm = 1 — √1 — 2∙0,03 = 0,03; ξR = 0,8 / (1 + 0,4∙Rs+400 / 700) = 0,8 / (1 + 0,4∙695+400 / 700) = 0,41. Условие выполняется: 0,03 < 0,41, арматура в сжатой зоне не требуется.
Требуемая площадь арматуры: Asp, треб = (Rb∙bf’∙h0∙ξ) / (Rs∙γs3) = (17∙10^3∙1,76∙0,32∙0,03) / (695∙10^3∙1,1) = 0,000375 м2 ≈ 375 мм2. γs3 – коэффициент условия работы бетона. ξ/ξR = 0,073 < 0,6, то γs3 = 1,1. По сортаменту арматуры принято 2 стержня 2∅16 А800, с площадью Asp = 402 мм2.
2.3.2 Проверка прочности сжатой полосы между наклонными трещинами
Условие прочности по сжатой полосе между наклонными сечениями определено по формуле: Q ≤ 0,3∙Rb∙b ∙ h0; 81,01 кН ≤ 0,3∙17∙10^3∙0,14∙0,32 = 228,48 кН. Прочность по сжатой полосе обеспечена.
2.3.3 Расчёт наклонного сечения на действие поперечной силы
Расчет на действие поперечной силы при отсутствии поперечной арматуры: Q ≤ Qb; Qb ≥ 0,5∙φn∙Rbt∙b ∙ h0; Qb ≤ 2,5∙φn∙Rbt∙b∙h0; φn = 1 + σср / Rb, при 0 < σср ≤ 0,25∙Rb. Примерное усилие обжатия от растянутой предварительно напряженной арматуры, определено по формуле: P = 0,7∙σsp∙Asp = 0,7∙720∙402 = 202608 Н, где σsp – напряжение в предварительно напряженной арматуре, определено по формуле: σsp = 0,9∙Rsn = 0,9∙800 = 720 МПа. σср — среднее сжимающее напряжение в бетоне от продольных сил, определено по формуле: σср = P / A1 = 202608 / (140∙350) = 4,13 МПа. 0 < σср = 4,13 МПа ≤ 0,25∙Rb = 0,25∙17 = 4,25 МПа, следовательно φn = 1 + σср / Rb = 1 + 4,13 / 17 = 1,24.
