- ОБЩИЕ СВЕДЕНИЯ ПО РАЗРАБОТКЕ ТЕХНОЛОГИЧЕСКОЙ КАРТЫ
- РЕКОМЕНДАЦИИ К РАЗРАБОТКЕ И СОДЕРЖАНИЮ РАЗДЕЛОВ ТЕХНОЛОГИЧЕСКОЙ КАРТЫ
- ТЕХНОЛОГИЧЕСКАЯ КАРТА НА ВОЗВЕДЕНИЕ МОНОЛИТНЫХ ЖЕЛЕЗОБЕТОННЫХ КОНСТРУКЦИЙ ТИПОВОГО ЭТАЖА МНОГОЭТАЖНОГО ЖИЛОГО ДОМА (ПРИМЕР)
- 2. Технология и организация выполнения работ
- 3. Требования к качеству и приемке работ
- 4. Потребность в материальных и технических ресурсах
- 5. Калькуляция затрат труда и машинного времени
- 6. Проектирование и расчет графика производства работ
- 7. Охрана труда и требования к безопасности
- 8. Технико-экономические показатели
- ТЕХНОЛОГИЧЕСКАЯ КАРТА НА УСТРОЙСТВО НАРУЖНЫХ СТЕН ЗДАНИЯ (ПРИМЕР)
ОБЩИЕ СВЕДЕНИЯ ПО РАЗРАБОТКЕ ТЕХНОЛОГИЧЕСКОЙ КАРТЫ
Технологическая карта является одним из основных организационно-технологических документов в строительном производстве и разрабатывается для выполнения сложных технологических процессов. ТК может использоваться в составе ППР или применяться как самостоятельный документ.
Технологическая карта содержит решения по составу и последовательности выполнения технологических операций; предусматривает выбор наиболее рационального комплекта строительных машин, оборудования, инструмента и оснастки; определяет потребность в материально-технических и трудовых ресурсах (включая численность рабочих, их профессиональный и квалификационный состав); устанавливает требования к контролю качества и приемке выполненных работ, а также требования к безопасности и охране труда и природоохранные мероприятия.
Состав и содержание технологических карт, порядок их разработки и оформления приведены в МДС 12-29.2006 Методические рекомендации по разработке и оформлению технологической карты.
При разработке технологических карт используется действующая нормативно-техническая документация — государственные стандарты (ГОСТ, ГОСТ Р), своды правил (СП), строительные нормы и правила (СНиП), методические документы строительства (МДС). Следует отметить, что при использовании нормативно-технических документов необходимо учитывать дополнения и изменения, внесенные в них с момента введения в действие.
Расчет потребности в ресурсах производится по производственным, ведомственным и местным нормам расхода материалов.
РЕКОМЕНДАЦИИ К РАЗРАБОТКЕ И СОДЕРЖАНИЮ РАЗДЕЛОВ ТЕХНОЛОГИЧЕСКОЙ КАРТЫ
1. Область применения
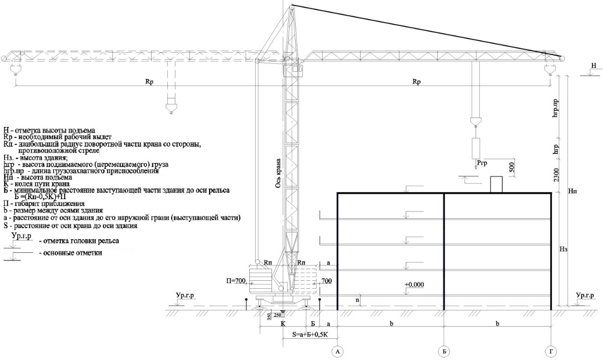
1.1. Характеристика здания. В соответствии с заданием на проектирование в расчетно-пояснительную записку необходимо включить характеристики возводимого объекта — вид несущих конструкций, этажность, длину, ширину здания и т.д. По этим данным вычерчивается план типового этажа (конструктивного элемента) здания, при необходимости приводятся разрезы и фрагменты раскладок сборных конструкций (например плит перекрытий, стеновых панелей). На схемах указывают основные размеры и отметки сооружения.
1.2. Указывается наименование технологического процесса, конструкции или части здания (сооружения), для которых предназначена разрабатываемая технологическая карта.
1.3. Описание места, района и условий строительства: город, область, климатические характеристики.
1.4. Сменность и сроки производства комплекса работ.
1.5. Перечень работ, рассматриваемых технологической картой.
1.6. Используемые машины и механизмы.
1.7. Обозначение и маркировка строительных материалов, применяемых в технологических процессах, рассматриваемых ТК.
ТЕХНОЛОГИЧЕСКАЯ КАРТА НА ВОЗВЕДЕНИЕ МОНОЛИТНЫХ ЖЕЛЕЗОБЕТОННЫХ КОНСТРУКЦИЙ ТИПОВОГО ЭТАЖА МНОГОЭТАЖНОГО ЖИЛОГО ДОМА (ПРИМЕР)
1. Область применения
1.1. Объект — жилое 9-этажное здание с каркасом из монолитного железобетона, с размерами осей в плане 34 800×20 400 мм

.
1.2. Технологическая карта разработана на возведение стен и перекрытий типового этажа. Предусмотрено использование щитовой унифицированной разборно-переставной опалубки Doka.
1.3. Строительство ведется в г. Калуге, климатический район II, подрайон В, зона 2, расчетная температура наружного воздуха t = 21 °C (СП 131.13330.2012 Строительная климатология).
1.4. Работы выполняют в 3 смены, необходимое время на производство полного комплекса работ составляет 12 дней.
1.5. В перечень работ, описываемых технологической картой, включены: арматурные; опалубочные; бетонные, в том числе вспомогательные (подача материалов и уход за бетоном).
1.6. Для выполнения работ применяются башенный кран КБ-420-02, стационарный бетононасос Putzmeister BSA 1005 D3B в комплекте с бетонораздаточной стрелой Putzmeister MXR 32-4.
1.7. В конструкциях используется бетон класса В22,5, в качестве рабочей арматуры применяется А400, конструкционной — А240.
2. Технология и организация выполнения работ
2.1. До начала устройства стен типового этажа должны быть выполнены (подготовлены): плита перекрытия над предшествующим этажом с обеспеченной прочностью; площадки для обработки и укрупнения опалубочных элементов, устройства и подготовки арматурных конструкций; предусмотренные для производства работ строительные машины, инвентарь и приспособления; временное освещение рабочих мест; защитное ограждение по периметру плиты перекрытия предшествующего этажа, закрытые проемы и отверстия; геодезические работы по разбивке (разметке мест размещения палубы стен по проекту); арматурные стержни и изделия в количестве, необходимом для непрерывной работы в течение 5 дней, и комплект опалубки.
2.2. Устройство вертикальных конструкций типового этажа. Расчет 1. Определение геометрических объемов вертикальных монолитных железобетонных конструкций типового этажа

.
3. Требования к качеству и приемке работ
Контроль рассматривается на трех стадиях: входной контроль проектной и технологической документации, используемых строительных материалов (изделий или конструкций); в процессе производства работ (операционный контроль); готовых работ (строительной продукции: выполненных конструкций, смонтированного оборудования, возведенных зданий и сооружений) с оформлением документов о приемке.
| № п/п | Наименование процессов, подлежащих контролю | Предмет контроля | Способ контроля | Ответственный | Технические критерии оценки качества |
|---|---|---|---|---|---|
| 1 | 2 | 3 | 4 | 5 | 6 |
4. Потребность в материальных и технических ресурсах
4.1. Потребность в материальных ресурсах (табл. 15) определяют по объемам работ согласно варианту задания с учетом действующих норм расхода материалов.
| № п/п | Наименование материала | Марка, класс | Исходные данные | Потребное количество | Ед. изм. | Объем работ | Норма расхода |
|---|---|---|---|---|---|---|---|
| 1 | 2 | 3 | 4 | 5 | 6 | 7 |
5. Калькуляция затрат труда и машинного времени
Исходными данными для составления калькуляции (табл. 8) являются ранее определенные перечень и объемы работ, нормы времени рабочих и машин, определяемые по ЕНиР, ГЭСН, ВНиР, стандартам строительных организаций и прочим документам, разработанным по результатам хронометражных измерений на строительных объектах.
| № п/п | Наименование процессов | Ед. изм. | Объем работ | Обоснование по ЕНиР | Состав звена по ЕНиР | Норма времени, чел.-ч | Затраты труда (чел.-ч | чел.-дн.) | Норма машинного времени, маш.-ч | Затраты машинного времени (маш.-ч | маш.-см.) |
|---|---|---|---|---|---|---|---|---|---|
| 1 | 2 | 3 | 4 | 5 | 6 | 7 | 8 | 9 | 10 | 11 | 12 |
6. Проектирование и расчет графика производства работ
Последовательность и продолжительность выполнения строительных процессов определяются при построении графика производства работ. В основу составления графика должны быть положены следующие принципы: использование поточного метода производства, выполнение работ в строгой технологической последовательности, максимальное совмещение работ во времени без нарушения технологии строительства и правил техники безопасности, использование прогрессивных способов выполнения работ, обеспечение равномерной и бесперебойной загрузки машин и рабочих.
| № п/п | Наименование процессов | Ед. изм. | Объем работ | Затраты труда, чел.-дн. | Затраты машинного времени, маш.-см. | Исполнители | Время выполнения работ (Смены | Дни) | Уп.т, % |
|---|---|---|---|---|---|---|---|---|
| 1 | 2 | 3 | 4 | 5 | 6 | 7 | 8 | 9 | 10 |
7. Охрана труда и требования к безопасности
Требования к безопасности при производстве строительных работ должны соответствовать государственным нормативным требованиям охраны труда: «Правила по охране труда в строительстве» (приказ Минтруда России от 01.06.2015 № 336н), «Правила по охране труда при работе на высоте» (приказ Минтруда России от 28.03.2014 № 155н), «Правила по охране труда при погрузочно-разгрузочных работах и размещении грузов» (приказ Минтруда России от 17.09.2014 № 642н); федеральным нормам и правилам в области промышленной безопасности «Правила безопасности опасных производственных объектов, на которых используются подъемные сооружения» (приказ Ростехнадзора от 12.11.2013 № 533).
В разделе по безопасности труда требуется предусмотреть: наличие и действие опасных производственных факторов; принятые решения по охране труда и технике безопасности; мероприятия по обеспечению устойчивости конструкций; схемы опасных зон; требования к безопасной эксплуатации машин; правила ведения сварочных работ; инструкции по использованию средств защиты; указания по предупреждению поражения электротоком.
8. Технико-экономические показатели
При разработке данного раздела определяют следующие показатели: общую продолжительность работ; нормативные затраты труда и машинного времени; проектные трудоемкость и затраты машинного времени; проектную трудоемкость на единицу объема строительной продукции; проектную выработку на одного рабочего (машину) в день; уровень производительности труда.
ТЕХНОЛОГИЧЕСКАЯ КАРТА НА УСТРОЙСТВО НАРУЖНЫХ СТЕН ЗДАНИЯ (ПРИМЕР)
1. Область применения. 1.1. Объект — жилое 9-этажное здание с каркасом из монолитного железобетона, с размерами осей в плане 34 800×20 400 мм. 1.2. Технологическая карта разработана на устройство наружных стен, выполненных по системе «мокрый фасад»

.
2. Технология и организация выполнения работ. 2.1. До начала работ по устройству конструкций наружных стен типового этажа: обеспечивается минимальное опережение работ по устройству железобетонного каркаса здания от горизонта производства работ в 3 этажа; подготавливаются необходимые механизмы, инвентарь и приспособления; выполняется геодезическая разбивка осей; обеспечивается временное электроосвещение рабочих мест; завозятся материалы, необходимые для устройства конструкций наружных стен одного этажа.
